

Hirdetéskód: 8722362
Referenciaszám: 42_osz
Frissítve: ma
Lőrinci eladó családi ház 3+1 fél szobás: 65 millió Ft
65 millió Ft
783 133 Ft/m²
83 m²
1200 m²
3+1 fél szoba
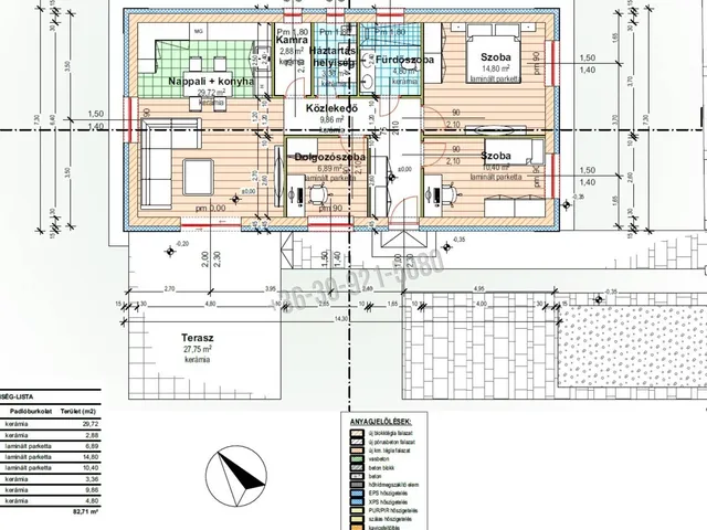
Eladó családi ház Lőrinci Selyp Lőcsei utca 83m2 65000000 Ft
Megvételre kínálunk egy új építésű családi házat Lőrincin, a csendes Lőcsei utcában. Ez a 83 négyzetméteres (+27,75 nm2 terasz) modern ingatlan nem csupán egy otthon, hanem egy életstílus kezdete is. Az ingatlan elhelyezkedése kiváló, hiszen Heves megye ezen részén a természet közelsége és a nyugalom garantált, miközben a főváros elérhetősége is könnyedén biztosított.
A házat egy 20 éves múlttal, s számos referenciával rendelkező, megbízható generálkivitelező cég építi. Igény szerint referencia házakat tudunk mutatni.
A szobákban és nappaliban a hűtésről-fűtésről 1-1 darab parapett fan coil (+ hőszivattyús megtáplálással) gondoskodik, míg a fürdőszobákban elektromos törölközőszárító radiátor található. Korszerű és energiatakarékos megoldások, melyek nemcsak a fenntartási költségeket csökkentik, hanem a környezet védelmét is szolgálják. H-áram leállása előkészítve .
Teherhordó falak 37,5cm vastag Viablokk falazóelemből készülnek, míg a válaszfalak 12,5cm vastag gipszkarton falszerkezettel 50dB léghang gátlással kerülnek beépítésre.
Tetőfedés: beton tetőcserép antracit színben.
Műanyag nyílászárók: kívül belül fehér színben, 3 oldali toktoldóval, 6 kamrás profilból, 3 rétegű üvegezéssel.
Álmennyezet: CD vázszerkezetre szerelt gipszkarton álmennyezet, párazáró fóliával, 30cm vastag üveggyapot hőszigeteléssel, 60x120cm-es hőszigetelt padlásfeljáróval az előszobában elhelyezve.
Kialakítható fedett garázs, beálló, udvar térkövezése, elülső kerítés, redőny és szúnyoghálók a vevők igényei alapján magas minőségben választhatóak.
!FIGYELEM!
Ha szeretne módosítani, legyen bővítés , vagy alakítás, esetleg más településen/utcában felépíteni az ingatlant, természetesen van rá mód! A kivitelező rugalmasan kezeli a kéréseket és mindig találunk olyan megoldást ami mindenkinek megfelelő.
Ingatlantól függetlenül támogatjuk ügyfeleinket HITELFELVÉTEL intézésében!
Rajtunk keresztül kedvezőbb feltételekhez juthat a hitelfelvétel során, ráadásul közvetítői díj nélkül!
Emiatt is forduljon hozzánk bizalommal.
Tulajdonságok
Családi ház
16
Újszerű
Hőszivattyú
2026
A++
Vedd fel a kapcsolatot a hirdetővel
+36 30 921 5
Hitelkalkulátor
Második évtől
279 730 Ft A 13. hónaptól
7,99%
Végig fix Futamidő: 20 év Banki visszahívás
Az OTP Bank munkatársai a neked megfelelő napszakban veszik fel veled a kapcsolatot. A becslés a hirdető által megadott adatokon alapul. A jelen tájékoztatás nem minősül ajánlattételnek és nem teljes körű, az egyes feltételek a hitelbírálat eredményétől függően változhatnak. Kérjük, a részletekről tájékozódj az OTP Bank fiókjaiban vagy az OTP Bank honlapján közzétett vonatkozó Üzletszabályzatokból és Hirdetményekből.
Vedd fel a kapcsolatot a hirdetővel
+36 30 921 5
Vedd fel a kapcsolatot a hirdetővel
+36 30 921 5
UI_KIT.CHARACTER_COUNTER__COMPONENT.REMAINING_SPACE__SR_ONLYUI_KIT.CHARACTER_COUNTER__COMPONENT.MAXIMUM_CHARACTER__SR_ONLY
Hasonló eladó ingatlanok Selyp városrészben
Frissítve: ma

20
64 M Ft 376 471 Ft/m²
Eladó családi ház, Lőrinci
Frissítve: 11 napja

14
63 M Ft 315 000 Ft/m²
Eladó családi ház, Mátraderecske

Frissítve: 5 napja

20
58,6 M Ft
Eladó családi ház, Heves, Kölcsey utca környékén


Fedezd fel a
hasonló házakat!Még további házak Heves megyében 65 M Ft körüli értékben
Tovább a hirdetésekhez Frissítve: 11 napja

20
67,9 M Ft 679 000 Ft/m²
Eladó családi ház, Eger, József Attila utca

Frissítve: 16 napja

20
61,99 M Ft 568 716 Ft/m²
Eladó ikerház, Eger, Károlyváros

Frissítve: 11 napja

20
70 M Ft 583 333 Ft/m²
Eladó sorház, Eger, Leányka utca


Töltsd fel hirdetésed ingyenesen!
Egyszerű