+17 fotó
Hirdetéskód: 8908804
Feltöltve: 1 hónapja
Lőrinci eladó családi ház 3 szobás: 42 millió Ft
42 millió Ft
388 889 Ft/m²
108 m²
2490 m²
3 szoba
Leírás
UPDATE!
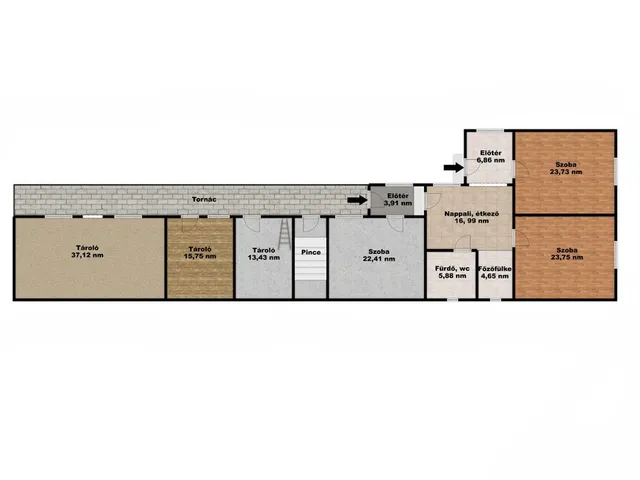
Megvételre kínálok Heves megyében, Lőrinci városban, központtól egy fél lépésre, forgalmas főút mellett, nyugati fekvésű telken épült, 108 nm lakóterületű, 3 szobás, részben felújított, nagy melléképülettel rendelkező, előkertes családi házat.
Jellemzői:
Ingatlan típus: családi ház
Lakótér: 108 nm
Szobák: 3, két szoba felújított, a harmadik befejezésre vár
Fekvés: nyugat
Fényviszonyok: napos
Telekméret: 2490 nm
Építési mód: oldalhatáros, előkertes
Kilátás: udvar, utca
Építés éve: az eredeti épület lehetett a melléképület, később építhették az első részét az ingatlannak, kb 1980-as évek
Állapot: részben felújított
Felújítás: falak, burkolatok, külső-belső nyílászárók, vezetékek, csövek, új villanyóra, szigetelés, új gázóra, konvektorok
Környék: forgalmas főút mellett, rendezett, családi házas övezet, parkos környezet
Út: aszfaltos
Építőanyag: tégla, melléképület vályog és tégla
Falak: stabil szerkezeti állapot, statikai hiba nem látható
Szigetelés: van, 10 cm
Alap: beton
Tető: átlagos állapotú, pala fedés
Födém: borított és borítás nélküli fagerendás
Beázás: nem látható
Ereszcsatorna: van
Kémény: van
Villany: van, új rézvezetékek, új villanyóra
Víz: van
Melegvíz: villanybojlernek hely kialakított
-->Földgáz: van, új óra
-->Fűtés: gázkonvektor
Csatorna: van
Nyílászárók: külső nyílászárók hőszigetelt, műanyag, a hátsó bejárati ajtó régi fa, a beltéri ajtók fa, ablakokon reluxa
Konyha: főzőfülke
Nappali: étkezővel egyben
Kamra: melléképületben
Fürdőszoba: van, zuhanyzós
WC: fürdőben
Udvar és kert: füves, gondozásra vár
Kút: van
Melléképület: több helyiséges, összesen 66 nm, külön lakrésznek, műhelynek ideális
Pince: van
Kerítés: jó állapotú, telek körbekerített
Parkolás: udvarban
Tv/ internet: a településen több szolgáltató elérhető
Birtokbaadás: akár azonnal
Az ingatlan Lőrinci forgalmas főútján helyezkedik el, szép, parkos környezetben. A város ellátottsága kiváló. A központ sétatávolságra van, vásárlási lehetőség, élelmiszerbolt, vegyesbolt, Coop, dohánybolt, posta, vendéglátóegységek, piac, bank, iskola, óvoda, orvosi rendelő, gyógyszertár, park.
Bevásárló központ, Tesco, Aldi, Family Center autóval 8 percre található.
A buszmegálló 450 méterre van, járatok indulnak a környező településekre és Hatvanba, valamint Pásztó, Budapest, Visonta, Eger, Gyöngyös városokba.
A vasútállomás 850 méterre, a vonatok a Hatvan- Somoskőújfalu vonalon közlekednek. A 21-es főút 3 perc autóval, innen 4 percre az M3-as autópálya elérhető, ahonnan Budapest csupán félórás autóút.
Amennyiben az ingatlan megvásárlásához el kell adnia meglévő ingatlanját, ebben is állunk szíves rendelkezésére. Hívjon bizalommal, nézze meg személyesen, majd tegyen egy ajánlatot!
Tulajdonságok
Családi ház
1
Jó állapotú
Gáz (konvektor)
1980
Nem adta meg a hirdető
Vedd fel a kapcsolatot a hirdetővel
+36 70 904 0
Hitelkalkulátor
Második évtől
180 749 Ft A 13. hónaptól
7,99%
Végig fix Futamidő: 20 év Banki visszahívás
Az OTP Bank munkatársai a neked megfelelő napszakban veszik fel veled a kapcsolatot. A becslés a hirdető által megadott adatokon alapul. A jelen tájékoztatás nem minősül ajánlattételnek és nem teljes körű, az egyes feltételek a hitelbírálat eredményétől függően változhatnak. Kérjük, a részletekről tájékozódj az OTP Bank fiókjaiban vagy az OTP Bank honlapján közzétett vonatkozó Üzletszabályzatokból és Hirdetményekből.
Vedd fel a kapcsolatot a hirdetővel
+36 70 904 0
Vedd fel a kapcsolatot a hirdetővel
+36 70 904 0
UI_KIT.CHARACTER_COUNTER__COMPONENT.ACTUAL_CHARACTER__SR_ONLY UI_KIT.CHARACTER_COUNTER__COMPONENT.MAXIMUM_CHARACTER__SR_ONLY
Hasonló eladó ingatlanok Lőrincion
Frissítve: 8 napja
20
44,9 M Ft 280 625 Ft/m²
Eladó családi ház, Lőrinci
Frissítve: 8 napja
17
42,9 M Ft 214 500 Ft/m²
Eladó családi ház, Lőrinci

Frissítve: 1 napja
17
42,9 M Ft 214 500 Ft/m²
Eladó családi ház, Lőrinci


Fedezd fel a
hasonló házakat!Még további házak Heves megyében 42 M Ft körüli értékben
Tovább a hirdetésekhez Frissítve: 8 napja
17
42,9 M Ft 214 500 Ft/m²
Eladó családi ház, Lőrinci

Frissítve: 8 napja
17
42,9 M Ft 214 500 Ft/m²
Eladó családi ház, Lőrinci

Frissítve: 8 napja
17
42,9 M Ft 214 500 Ft/m²
Eladó családi ház, Lőrinci

