+17 fotó
Zenga
Premier
Hirdetéskód: 8991302
Referenciaszám: M327276
Feltöltve: ma
Mezőkovácsháza eladó családi ház 1+1 fél szobás: 39,9 millió Ft
39,9 millió Ft
142,5 ezer Ft/m² *
* A m² árat a hirdető adta meg.
280 m²
784 m²
1+1 fél szoba

Friss hirdetések, amiket nem találsz meg más ingatlankereső portálon.
Fedezd fel elsőként a Zenga Premier címkés eladó ingatlanokat! További részletek A Duna House, OTP Ingatlanpont, Otthon Centrum és további hálózatok új, kizárólagos hirdetéseinek nagy részét a zenga.hu és koltozzbe.hu ingatlankeresőn láthatod legelőször, és a feltöltéstől két hétig nem érhetők el más ingatlankeresőn!
Leírás
Eladó bejáratott étterem Mezőkovácsházán - több évtizedes múlt, sokoldalú hasznosítási lehetőség.
Mezőkovácsházán, Békés vármegyében kínálunk eladásra egy 36 éve működő, szeretett és jól bejáratott vendégkörrel rendelkező melegkonyhás vendéglátóhelyet. Az ingatlan generációkon átívelő családi vállalkozásként üzemelt, azonban a tulajdonosok élethelyzetének változása miatt most új gazdáját keresi. Ideális lehetőség mindazok számára, akik egy működő alapokra építhető vendéglátó egységben gondolkodnak, vagy akár más üzleti tevékenységet valósítanának meg.
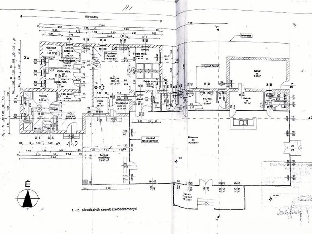
A 279,33 m2 alapterületű, részlegesen felújított épület tágas vendégtere két részre osztható, összesen akár 180 fő befogadására alkalmas. A főétterem 110 fő kényelmes elhelyezését biztosítja, míg a különálló sátor rész további 70 fő fogadására ad lehetőséget, így rendezvények, családi események lebonyolítására is kiváló választás.
Az ingatlan műszaki állapota folyamatosan karbantartott és korszerűsített: 2023-ban új műanyag nyílászárók kerültek beépítésre, 2024-ben pedig megtörtént a villanyhálózat teljes korszerűsítése. Ezen felül két darab, egyenként 5,5 kW teljesítményű GREE légkondicionáló berendezés, valamint modern kamerarendszer is telepítésre került. A konyha fejlesztése folyamatos, jelenlegi állapotában megfelel a HACCP előírásoknak, így az üzemeltetés feltételei adottak.
A vendégtéren túl az ingatlan jól átgondolt kiszolgáló egységekkel rendelkezik: két személyzeti öltöző, mosdókkal, tusolóval és WC-vel, továbbá külön konyhai rész, zöldség-előkészítő és hűtőkamra is helyet kapott.
A 784 m2-es, teljesen körbekerített saroktelek két utcáról is megközelíthető, ami kényelmes parkolási lehetőséget biztosít a vendégek számára. Az ingatlan összközműves, ipari árammal ellátott, érvényes működési engedéllyel rendelkezik, valamint per-, teher- és igénymentes.
Fontos információ, hogy az ingatlan jelenleg a tulajdoni lapon családi házként szerepel, azonban igény esetén ismét vendéglátó egységként üzemeltethető. A vételár tartalmazza a teljes berendezést és az eszközállományt.
Ez az ingatlan kiváló lehetőséget kínál mind befektetők, mind vendéglátásban gondolkodó vállalkozók számára, de sokoldalúságának köszönhetően más üzleti célra is könnyedén átalakítható.
Amennyiben egy stabil alapokra építhető, jól megközelíthető és sok lehetőséget rejtő ingatlant keresel, ez az ajánlat igazán figyelemre méltó.
Tulajdonságok
Családi ház
1
Átlagos
Gázkazán
1990
Nem adta meg a hirdető
Vedd fel a kapcsolatot a hirdetővel

+36 20 405 4
Hitelkalkulátor
Második évtől
171 711 Ft A 13. hónaptól
7,99%
Végig fix Futamidő: 20 év Banki visszahívás
Az OTP Bank munkatársai a neked megfelelő napszakban veszik fel veled a kapcsolatot. A becslés a hirdető által megadott adatokon alapul. A jelen tájékoztatás nem minősül ajánlattételnek és nem teljes körű, az egyes feltételek a hitelbírálat eredményétől függően változhatnak. Kérjük, a részletekről tájékozódj az OTP Bank fiókjaiban vagy az OTP Bank honlapján közzétett vonatkozó Üzletszabályzatokból és Hirdetményekből.
Vedd fel a kapcsolatot a hirdetővel

+36 20 405 4
Vedd fel a kapcsolatot a hirdetővel

+36 20 405 4
UI_KIT.CHARACTER_COUNTER__COMPONENT.ACTUAL_CHARACTER__SR_ONLY UI_KIT.CHARACTER_COUNTER__COMPONENT.MAXIMUM_CHARACTER__SR_ONLY
Hasonló eladó ingatlanok Reformátuskovácsháza városrészben
Frissítve: 23 napja
20
42 millió Ft 466,7 ezer Ft/m²
Eladó családi ház, Mezőkovácsháza
Frissítve: 1 napja
14
41 millió Ft 488,1 ezer Ft/m²
Eladó házrész, Békéscsaba
Frissítve: 14 napja
20
42,5 millió Ft 250 ezer Ft/m²
Eladó családi ház, Csárdaszállás

Fedezd fel a
hasonló házakat!Még további házak Békés megyében 39,9 M Ft körüli értékben
Tovább a hirdetésekhez Frissítve: 11 hónapja
1
42 millió Ft 446,8 ezer Ft/m²
Eladó házrész, Gyula, Újgyula
Frissítve: 23 napja
20
39,9 millió Ft 366,1 ezer Ft/m²
Eladó családi ház, Békéscsaba
Feltöltve: 11 hónapja
1
113 614 Euro
43,74 millió Ft 397,6 ezer Ft/m²
Eladó családi ház, Békésszentandrás
