+14 fotó
Hirdetéskód: 8925614
Referenciaszám: M322999-5171872
Feltöltve: 1 napja
Mezőkövesd eladó családi ház 2 szobás: 19,9 millió Ft
19,9 millió Ft
261 842 Ft/m²
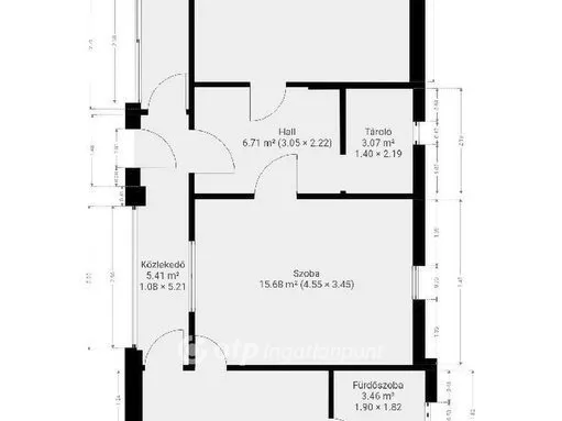
76 m²
791 m²
2 szoba
Eladó Ház, Mezőkövesd
Eladásra kínálok egy 76 m2 alapterületű, 2 szobás, hagyományos hosszú parasztház jellegű ingatlant, amely egy 791 m2-es telken helyezkedik el.
Az épület falazata vályog és tégla, stabil szerkezeti alapokkal. A villamos hálózat részben felújításra került, a vezetékek műanyag védőcsövekben kerültek elhelyezésre a falakban, ami a további korszerűsítést is megkönnyíti.
Fűtése konvektorral megoldott. Az ingatlan korszerűsítést igényel, ugyanakkor méretének és adottságainak köszönhetően kiváló alap lehet egy saját igényekre szabott otthon kialakításához.
A 791 m2-es telek ideális kert, veteményes, pihenőkert vagy akár további fejlesztési lehetőségek kialakítására is.
Ajánlott mindazok számára, akik értéket látnak a hagyományos parasztház hangulatban, és egy jó adottságú ingatlant keresnek elérhető áron.
OTP Banki hátterünknek köszönhetően finanszírozási igényekben (pl. Otthon Start Program, Babaváró, Falusi CSOK, CSOK Plusz, Lakáshitel, Személyi kölcsön stb.), illetve biztosítások tekintetében is díjmentesen, soron kívüli ügyintézéssel segítem ügyfeleim! Referenciaszám: M322999
Referencia szám: M322999
Tulajdonságok
Családi ház
Átlagos
Gáz (konvektor)
1960
Nem adta meg a hirdető
Vedd fel a kapcsolatot a hirdetővel
Piskóti Tibor Lajos OTPip - Miskolc Szemere Bertalan utca 20 - OTP Ingatlanpont Iroda Az iroda összes hirdetése
+36 70 322 2
Hitelkalkulátor
Második évtől
85 641 Ft A 13. hónaptól
7,99%
Végig fix Futamidő: 20 év Banki visszahívás
Az OTP Bank munkatársai a neked megfelelő napszakban veszik fel veled a kapcsolatot. A becslés a hirdető által megadott adatokon alapul. A jelen tájékoztatás nem minősül ajánlattételnek és nem teljes körű, az egyes feltételek a hitelbírálat eredményétől függően változhatnak. Kérjük, a részletekről tájékozódj az OTP Bank fiókjaiban vagy az OTP Bank honlapján közzétett vonatkozó Üzletszabályzatokból és Hirdetményekből.
Vedd fel a kapcsolatot a hirdetővel
Piskóti Tibor Lajos OTPip - Miskolc Szemere Bertalan utca 20 - OTP Ingatlanpont Iroda Az iroda összes hirdetése
+36 70 322 2
Vedd fel a kapcsolatot a hirdetővel
Piskóti Tibor Lajos OTPip - Miskolc Szemere Bertalan utca 20 - OTP Ingatlanpont Iroda Az iroda összes hirdetése
+36 70 322 2
UI_KIT.CHARACTER_COUNTER__COMPONENT.ACTUAL_CHARACTER__SR_ONLY UI_KIT.CHARACTER_COUNTER__COMPONENT.MAXIMUM_CHARACTER__SR_ONLY
Hasonló eladó ingatlanok Mezőkövesden
Feltöltve: 1 hónapja
1
20,5 M Ft 512 500 Ft/m²
Eladó családi ház, Mezőkövesd
Feltöltve: 5 hónapja
8
19,47 M Ft 112 543 Ft/m²
Eladó családi ház, Mezőkövesd, Margit utca 17
Frissítve: 23 napja
9
20,5 M Ft 410 000 Ft/m²
Eladó családi ház, Mezőkövesd


Fedezd fel a
hasonló házakat!Még további házak Mezőkövesden 19,9 M Ft körüli értékben
Tovább a hirdetésekhez Frissítve: 23 napja
9
20,5 M Ft 410 000 Ft/m²
Eladó családi ház, Mezőkövesd

Frissítve: 23 napja
15
20,5 M Ft 512 475 Ft/m²
Eladó családi ház, Mezőkövesd
Frissítve: 9 napja
9
20,5 M Ft 410 000 Ft/m²
Eladó családi ház, Mezőkövesd

