+13 fotó
Hirdetéskód: 8946789
Referenciaszám: M323566-5186094
Frissítve: 1 hónapja
Mezőkövesd eladó családi ház 2 szobás: 21,9 millió Ft
21,9 millió Ft
260,7 ezer Ft/m²
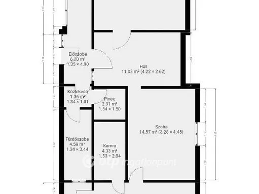
84 m²
2528 m²
2 szoba
Eladó Ház, Mezőkövesd
Mezőkövesden kínálok megvételre egy 84 m2-es családi házat, amely egy rendkívül tágas, 2529 m2-es telken helyezkedik el. Az ingatlan szerkezetileg kiváló állapotú, masszív falazattal rendelkezik (vályog és tégla), így stabil alapot biztosít egy korszerűsítéshez vagy akár teljes megújuláshoz.
A fűtésről konvektorok gondoskodnak. A ház jelenlegi állapota felújítást, korszerűsítést igényel, ugyanakkor elrendezése és adottságai kifejezetten jó lehetőséget kínálnak egy élhető, kényelmes otthon kialakítására.
Az ingatlanhoz tartozik egy különálló, fűtött, három helyiségből álló nyári konyha, amely akár vendégrésznek, vállalkozási célra, műhelynek vagy külön lakrésznek is alkalmas lehet. Emellett garázs is rendelkezésre áll.
A 2529 nm-es telek igazi érték: méretének és elhelyezkedésének köszönhetően szinte olyan érzést nyújt, mintha nem is lennének szomszédok a közvetlen közelben. Kiváló választás lehet gazdálkodásra, állattartásra, nagyobb kert kialakítására, vagy akár további építkezési lehetőségekben gondolkodóknak is.
Az ingatlan remek alapot biztosít azok számára, akik nyugodt környezetben, nagy területen szeretnék megvalósítani saját elképzeléseiket.
OTP Banki hátterünknek köszönhetően finanszírozási igényekben (pl. Otthon Start Program, Babaváró, Falusi CSOK, CSOK Plusz, Lakáshitel, Személyi kölcsön stb.), illetve biztosítások tekintetében is díjmentesen, soron kívüli ügyintézéssel segítem ügyfeleim! Referenciaszám: M323566
Tulajdonságok
Családi ház
Jó állapotú
Gáz (konvektor)
1898
Nem adta meg a hirdető
Vedd fel a kapcsolatot a hirdetővel

Spéth Gábor György
OTPip - Miskolc Szemere Bertalan utca 20 - OTP Ingatlanpont Iroda
Az iroda összes hirdetése +36 20 361 5
Hitelkalkulátor
Második évtől
94 248 Ft A 13. hónaptól
7,99%
Végig fix Futamidő: 20 év Banki visszahívás
Az OTP Bank munkatársai a neked megfelelő napszakban veszik fel veled a kapcsolatot. A becslés a hirdető által megadott adatokon alapul. A jelen tájékoztatás nem minősül ajánlattételnek és nem teljes körű, az egyes feltételek a hitelbírálat eredményétől függően változhatnak. Kérjük, a részletekről tájékozódj az OTP Bank fiókjaiban vagy az OTP Bank honlapján közzétett vonatkozó Üzletszabályzatokból és Hirdetményekből.
Vedd fel a kapcsolatot a hirdetővel

Spéth Gábor György
OTPip - Miskolc Szemere Bertalan utca 20 - OTP Ingatlanpont Iroda
Az iroda összes hirdetése +36 20 361 5
Vedd fel a kapcsolatot a hirdetővel

Spéth Gábor György
OTPip - Miskolc Szemere Bertalan utca 20 - OTP Ingatlanpont Iroda
Az iroda összes hirdetése +36 20 361 5
UI_KIT.CHARACTER_COUNTER__COMPONENT.ACTUAL_CHARACTER__SR_ONLY UI_KIT.CHARACTER_COUNTER__COMPONENT.MAXIMUM_CHARACTER__SR_ONLY
Hasonló eladó ingatlanok Mezőkövesden
Frissítve: 1 napja
9
20,5 millió Ft 410 ezer Ft/m²
Eladó családi ház, Mezőkövesd

Feltöltve: 4 hónapja
1
20,5 millió Ft 512,5 ezer Ft/m²
Eladó családi ház, Mezőkövesd
Frissítve: 1 hónapja
9
20,5 millió Ft 410 ezer Ft/m²
Eladó családi ház, Mezőkövesd


Fedezd fel a
hasonló házakat!Még további házak Mezőkövesden 21,9 M Ft körüli értékben
Tovább a hirdetésekhez Frissítve: 2 napja
17
19,9 millió Ft 261,2 ezer Ft/m²
Eladó családi ház, Mezőkövesd

Frissítve: ma
9
20,5 millió Ft 410 ezer Ft/m²
Eladó családi ház, Mezőkövesd

Frissítve: 2 hónapja
15
20,5 millió Ft 512,5 ezer Ft/m²
Eladó családi ház, Mezőkövesd
