+11 fotó
Hirdetéskód: 8877757
Referenciaszám: 392404
Frissítve: 10 napja
Mogyoród eladó családi ház 3 szobás: 89,9 millió Ft
89,9 millió Ft
956 383 Ft/m²
94 m²
370 m²
3 szoba
Eladó családi ház Mogyoród, 94nm, 89.900.000Ft - Szadai út
KÜLÖNLEGES LEHETŐSÉG MOGYORÓDON ! ! !
ÖNÁLLÓ CSALÁDI HÁZ 2 TERASSZAL ! ! !
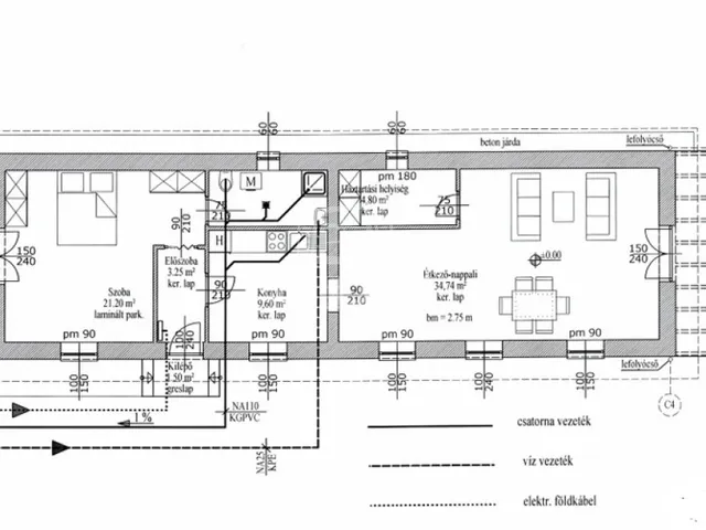
78,39 nm (EGY SZINTEN!) + 2(!) x 16,5 nm terasz kb. 370 nm-es telekrész.
A 2 TERASZ KÜLÖNLEGES ÉLETÉRZÉST BIZTOSÍT, HISZEN EGYIK KELETI, MÁSIK NYUGATI FEKVÉSŰ!
A reggeli napsugaraknál kávézhatunk és az esti lenyugvó nap fényénél akár borozhatunk is.
Eredeti tervek szerint is kérhető, de kérhető plusz 1 szobával, tehát 2 vagy 3 szobásként is, vagy beépített tetőtérrel! /Természetesen ez plusz költség/
Alapból fa födém, de kérhető vasbeton födémmel is (plusz költség).
A kivitelező több referánciával is rendelkezik, korábbi munkái, akár félkész, akár kulcsrakész állapotban megtekinthetőek.
KIVÁLÓ LÓKÁCIÓ:
- Autópálya felhajtó pár percre!
- Buszmegálló gyalog pár percre!
- HÉV megálló gyalog pár percre található!
HÍVJON A RÉSZLETEKÉRT, NE MARADJON LE RÓLA!
Tervezett átadás: 2026. december 31.
NEM A KIVITELEZŐTŐL FÜGG, Ő 6 HÓNAP ALATT MEGÉPÍTI!
A napelem illusztráció, feláras.
U.I.: A képek ugyanazon beruházó által készített hasonló ingatlanban készültek! Az alaprajz a valóságnak 100%-ban megfelelő. ...TOVÁBBI, TÖBBEZRES INGATLAN KÍNÁLAT: www.gdn-ingatlan.hu - GDN azonosító: 392404
Tulajdonságok
Családi ház
1
Új építésű
Gázkazán
2025
33 m²
A+
Vedd fel a kapcsolatot a hirdetővel
+36 20 361 3
Hitelkalkulátor
Második évtől
386 889 Ft A 13. hónaptól
7,99% 8,49%
Végig fix Futamidő: 20 év Banki visszahívás
Az OTP Bank munkatársai a neked megfelelő napszakban veszik fel veled a kapcsolatot. A becslés a hirdető által megadott adatokon alapul. A jelen tájékoztatás nem minősül ajánlattételnek és nem teljes körű, az egyes feltételek a hitelbírálat eredményétől függően változhatnak. Kérjük, a részletekről tájékozódj az OTP Bank fiókjaiban vagy az OTP Bank honlapján közzétett vonatkozó Üzletszabályzatokból és Hirdetményekből.
Vedd fel a kapcsolatot a hirdetővel
+36 20 361 3
Vedd fel a kapcsolatot a hirdetővel
+36 20 361 3
UI_KIT.CHARACTER_COUNTER__COMPONENT.ACTUAL_CHARACTER__SR_ONLY UI_KIT.CHARACTER_COUNTER__COMPONENT.MAXIMUM_CHARACTER__SR_ONLY
Hasonló eladó ingatlanok Mogyoródon
Frissítve: 20 napja
5
92,9 M Ft 844 545 Ft/m²
Eladó sorház, Mogyoród

Frissítve: 20 napja
5
92,9 M Ft 844 545 Ft/m²
Eladó sorház, Mogyoród

Frissítve: 27 napja
17
98,5 M Ft 856 522 Ft/m²
Eladó ikerház, Mogyoród


Fedezd fel a
hasonló házakat!Még további házak Mogyoródon 89,9 M Ft körüli értékben
Tovább a hirdetésekhez Frissítve: 27 napja
16
94,9 M Ft 988 542 Ft/m²
Eladó ikerház, Mogyoród

Frissítve: 27 napja
16
94,9 M Ft 988 542 Ft/m²
Eladó ikerház, Mogyoród

Frissítve: 1 napja
20
98 M Ft 632 258 Ft/m²
Eladó családi ház, Mogyoród, Szántó utca

