+8 fotó
Hirdetéskód: 8930234
Referenciaszám: 11-2959
Feltöltve: 1 napja
Mogyoród eladó családi ház 4 szobás: 91,9 millió Ft
91,9 millió Ft
1 044 318 Ft/m²
88 m²
461 m²
4 szoba
Mogyoród, Ófalu, 88 m²-es, családi ház, 4 szobás, új építésű állapotú
• ÚJ ÉPÍTÉSŰ • FÖLDSZINTES CSALÁDI HÁZ • HŐSZIVATTYÚS • 3 SZOBA + AMERIKAI KONYHÁS NAPPALI •
• HITELEZHETŐ •
A tervezett ÁTADÁS: 2026. vége!
Új építésű ingatlanokra vonatkozó kedvezmények igénybe vehetők!
Mogyoródon tervezési fázisban eladó egy MODERN, önálló családi ház közel a természethez, madárcsicsergős környezetben.
Az ingatlan korszerű, minőségi alapanyagok felhasználásával kerül kivitelezésre.
A kivitelezés építési és látványterv szerint, az egyedi igényekhez alkalmazkodva készül.
A hirdetéshez feltöltött képek látványtervek. A kész házak a kivitelező referenciamunkái.
Telek: 461 nm
Nettó lakótér: 88 nm
A tervezett ÁTADÁS: 2026. vége!
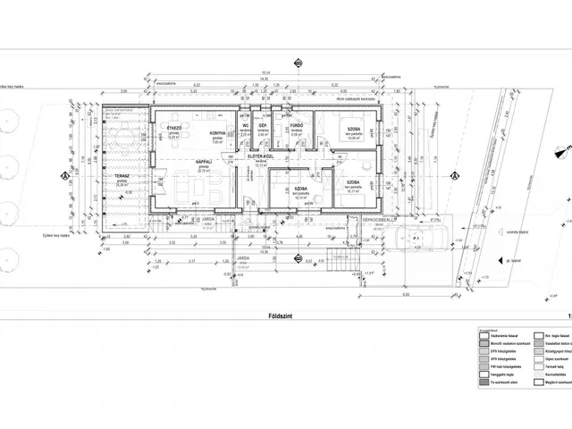
HELYISÉGEK:
- 3 szoba (10 nm, 10 nm, 10 nm)
- nappali-konyha-étkező (35 nm)
- fürdőszoba (6,5 nm)
- külön vécé (2,25 nm)
- előszoba-közlekedő (12,13 nm)
- gépészet (3 nm)
- terasz (25,35 nm)
- kocsibeálló
MŰSZAKI tartalom:
- 15 cm-es EPS hőszigetelő rendszer, PTH 30 N+F tégla
- 8 kW-os hőszivattyú (200 literes HMV és 50 literes puffertartállyal), vizes padlófűtés és használati meleg víz ellátás
- nappaliban 5 kW-os hűtő-fűtő klíma
- színes (nem fehér) nyílászárók, háromrétegű üvegezés
- 3 x 32A bejövő áram, riasztó-előkészítés
- minőségi burkolatok
- térkövezés, gépkocsibeállókkal, terasszal
- elektromos kapumozgatás
- elektromos autótöltő-kiállás
- tetőtérben napelem-csatlakozási pontok, inverter helyének és csatlakozási lehetőségének kialakítása
- saját telek, önálló épület (nem iker!)
Kérésre részletes műszaki tartalmat tudunk küldeni.
INFRASTRUKTÚRA:
- HÉV, busz, M3, M0, M5 autópálya
- 5-10 percen belül elérhető óvoda, bölcsőde, iskola, felnőtt- és gyermekorvosi rendelő, gyógyszertár, posta, több kisebb-nagyobb bevásárlásra alkalmas bolt, illetve az Auchan bevásárlóközpont.
A környéken számos kirándulásra, sportolásra alkalmas helyet találhatunk.
Ár: 91,9 millió Ft
Az ár a végleges KULCSRAKÉSZ átadási árat jelenti!
Amennyiben hirdetésem felkeltette érdeklődését, várom hívását, akár hétvégén is!
• ASZÓD KÖZPONTJÁBAN • NAGY HÁZ • MŰHELY •
• BEFEKTETŐKNEK • VÁLLALKOZÓKNAK •
Eladóvá vált Aszód családi házas környezetében, központi részen egy részben felújítandó, összközműves, földszintes családi ház.
Az ingatlant az 1950-es években építették.
A lakótér: 100 nm. A telek: 504 nm.
A ház:
- 2 előszoba (új nyílászárókkal)
- 3 szoba
- 2 konyha
- kamra
- fürdő vécével
- terasz (beépített)
- csarnok/műhely/garázs – 70 nm
- kazánház
- pince
Fekvése nyugati.
A fűtést gázkazán, a meleg vizet villanybojler biztosítja.
Áram: rézvezetékek, a műhely áramellátása: 380 V.
Az ingatlan szerkezetileg jól megépített, masszív, száraz, jó állapotú.
A lakás fölött nagy padlástér található, amely beépíthető.
Az elmúlt években az eredeti állapothoz képest tovább bővítették.
Az ingatlan adottságait tekintve jó alap lehet korszerű, modern élettér kialakításához is.
Központi elhelyezkedéséből adódóan alkalmas szolgáltatást nyújtó VÁLLALKOZÁSOK üzemeltetésére is.
A KERT gyümölcsfákkal, bokrokkal beültetett, kerti csapról locsolható.
Az ingatlan közlekedése kiváló, buszok állnak rendelkezésre, és a vasútállomás is kb. 10 perc alatt elérhető.
A közelben megtalálható óvoda, bölcsőde, iskola és bevásárlási lehetőségek.
Amennyiben felkeltette érdeklődését, hívjon bizalommal, akár hétvégén is!
Tulajdonságok
Családi ház
Padlófűtés
2026
Nem adta meg a hirdető
Nincs
Vedd fel a kapcsolatot a hirdetővel
Czakó Gabriella Balla Ingatlan - XVI. kerület, Kistarcsa, Csömör, Kerepes, Mogyoród, Gödöllő Az iroda összes hirdetése
+36 70 366 0
Hitelkalkulátor
Második évtől
395 496 Ft A 13. hónaptól
7,99%
Végig fix Futamidő: 20 év Banki visszahívás
Az OTP Bank munkatársai a neked megfelelő napszakban veszik fel veled a kapcsolatot. A becslés a hirdető által megadott adatokon alapul. A jelen tájékoztatás nem minősül ajánlattételnek és nem teljes körű, az egyes feltételek a hitelbírálat eredményétől függően változhatnak. Kérjük, a részletekről tájékozódj az OTP Bank fiókjaiban vagy az OTP Bank honlapján közzétett vonatkozó Üzletszabályzatokból és Hirdetményekből.
Vedd fel a kapcsolatot a hirdetővel
Czakó Gabriella Balla Ingatlan - XVI. kerület, Kistarcsa, Csömör, Kerepes, Mogyoród, Gödöllő Az iroda összes hirdetése
+36 70 366 0
Vedd fel a kapcsolatot a hirdetővel
Czakó Gabriella Balla Ingatlan - XVI. kerület, Kistarcsa, Csömör, Kerepes, Mogyoród, Gödöllő Az iroda összes hirdetése
+36 70 366 0
UI_KIT.CHARACTER_COUNTER__COMPONENT.ACTUAL_CHARACTER__SR_ONLY UI_KIT.CHARACTER_COUNTER__COMPONENT.MAXIMUM_CHARACTER__SR_ONLY
Hasonló eladó ingatlanok Mogyoródon
Frissítve: 24 napja
11
99,9 M Ft 818 852 Ft/m²
Eladó ikerház, Mogyoród
Frissítve: 18 napja
16
94,9 M Ft 988 542 Ft/m²
Eladó ikerház, Mogyoród

Frissítve: 4 napja
20
98 M Ft 632 258 Ft/m²
Eladó családi ház, Mogyoród


Fedezd fel a
hasonló házakat!Még további házak Mogyoródon 91,9 M Ft körüli értékben
Tovább a hirdetésekhez Frissítve: ma
15
84,99 M Ft 825 146 Ft/m²
Eladó ikerház, Mogyoród

Frissítve: 22 napja
20
98 M Ft 632 258 Ft/m²
Eladó családi ház, Mogyoród, Szántó utca

Frissítve: 18 napja
17
98,5 M Ft 856 522 Ft/m²
Eladó ikerház, Mogyoród


