+17 fotó
Hirdetéskód: 8794836
Referenciaszám: M307301-5088153
Feltöltve: ma
Nagybajcs eladó családi ház 2+1 fél szobás: 46,99 millió Ft
46,99 millió Ft
546 395 Ft/m²
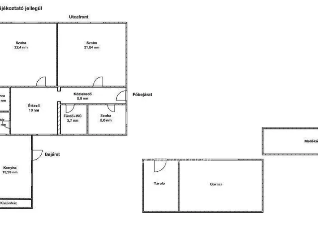
86 m²
1240 m²
2+1 fél szoba
Eladó Ház, Nagybajcs
Költözz Nagybajcsra és alakítsd ki álmaid otthonát!
Szereted a nagy telket, a csendes környéket és van affinitásod a barkácsoláshoz? Akkor ezt nézd meg! 1240 nm-es telek, rajta egy 86 nm-es, tégla építésű ház, amit úgy újíthatsz fel, ahogy csak szeretnél.
2 nagy szoba + 1 félszoba, külön étkező és konyha, garázs az udvarban
A ház felújítandó, de a lehetőség benne van: varázsolj belőle otthont vagy épp befektetést!
Csendes utcában, közel a természethez és Győrhöz is.
Az ingatlan megfelel azOtthon Start Hitelprogramfeltételeinek.
Hívj fel és nézzük meg együtt ezt a kivételes lehetőséget!
Referenciaszám: M307301
Tulajdonságok
Családi ház
Felújítandó
Gázkazán
1954
Nem adta meg a hirdető
Vedd fel a kapcsolatot a hirdetővel
+36 70 250 0
Hitelkalkulátor
Második évtől
202 224 Ft A 13. hónaptól
7,99%
Végig fix Futamidő: 20 év Banki visszahívás
Az OTP Bank munkatársai a neked megfelelő napszakban veszik fel veled a kapcsolatot. A becslés a hirdető által megadott adatokon alapul. A jelen tájékoztatás nem minősül ajánlattételnek és nem teljes körű, az egyes feltételek a hitelbírálat eredményétől függően változhatnak. Kérjük, a részletekről tájékozódj az OTP Bank fiókjaiban vagy az OTP Bank honlapján közzétett vonatkozó Üzletszabályzatokból és Hirdetményekből.
Vedd fel a kapcsolatot a hirdetővel
+36 70 250 0
Vedd fel a kapcsolatot a hirdetővel
+36 70 250 0
UI_KIT.CHARACTER_COUNTER__COMPONENT.REMAINING_SPACE__SR_ONLYUI_KIT.CHARACTER_COUNTER__COMPONENT.MAXIMUM_CHARACTER__SR_ONLY
Hasonló eladó ingatlanok Nagybajcson
Frissítve: 2 napja
20
46,99 M Ft 546 396 Ft/m²
Eladó családi ház, Nagybajcs

Frissítve: 2 napja
20
46,99 M Ft 546 395 Ft/m²
Eladó családi ház, Nagybajcs

Frissítve: 1 napja
20
46,99 M Ft 546 395 Ft/m²
Eladó családi ház, Nagybajcs


Fedezd fel a
hasonló házakat!Még további házak Győr-Moson-Sopron megyében 46,99 M Ft körüli értékben
Tovább a hirdetésekhez Frissítve: 28 napja
20
44,9 M Ft 504 494 Ft/m²
Eladó családi ház, Mórichida, Hunyadi utca

Frissítve: 7 napja
15
49,9 M Ft 623 750 Ft/m²
Eladó családi ház, Győr

Feltöltve: 1 éve
1
48 M Ft 369 231 Ft/m²
Eladó családi ház, Rábaszentmihály, Rákóczi utca 4

Töltsd fel hirdetésed ingyenesen!
Egyszerű