

+18 fotó
Hirdetéskód: 8715783
Referenciaszám: M295203-4849366
Frissítve: 3 napja
Nagyér eladó családi ház 3 szobás: 4,6 millió Ft
4,6 millió Ft
47 917 Ft/m²
96 m²
1998 m²
3 szoba
Eladó Ház, Nagyér
Csak az OTP Ingatlanpont kínálatában!
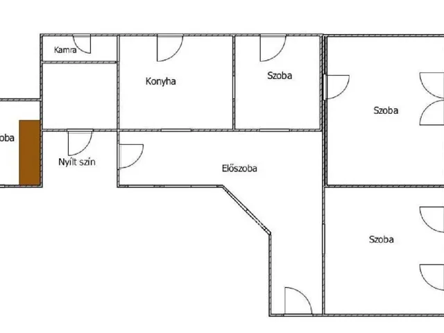
Eladó Csongrád-Csanád vármegyében, Nagyér község központjához közel, egy 3 szoba, előszoba/közlekedő, konyha, kamra, fürdőszoba helyiségekből álló, felújítandó állapotú, 100 m2-es, vegyes falazatú (nagyrészt tégla és vályog) családi ház!
A ház 1940 körül épült, ahhoz 2000 m2-es nagy telek tartozik, pár frissen ültetett gyümölcsfával. A telken góré és tároló található.
A ház szerkezetileg és statikailag jó állapotban van.
A nyílt szín mellett, a padlásfeljáró melletti helyiségben került kialakításra egy nagyobb fürdőszoba, mely a nyílt színnel és így a ház hosszú közlekedőjével egybe nyitható. A tető is jó állapotú.
A ház felújítása pár éve megkezdődött: a tulaj minden szobába új ablakokat szereltetett be. A napfényes előszoba fix ablakai a régiek. A fürdőszoba kialakítása megkezdődött: ide be lett szerezve a vadiúj csempe és a vadiúj dizájner zuhanykabin káddal. Ezek a berendezések mind maradnak a házban, részei a vételárnak. Itt maradnak továbbá a friss függönykarnisok és pár új beltéri ajtó is. A ház le lett betonozva és pár helyen falazás is történt új téglákkal.
Víz, villany, gáz van a házban, jelenleg szüneteltetve vannak, a minimális villany kivételével. Világítás jelenleg csak egy szobában van, a többiben nincs lámpa, egyébként a világítás mindenhol be van vezetve és működőképes.
A háznak fűtése jelenleg nincs (a régi le lett szerelve), de ki lett építve a hálózat radiátoros egyedi gázfűtéshez.
A ház mind párok, mind családok számára tökéletes lehet jó elhelyezkedése, méretei és adottságai alapján! Bár a ház felújítását be kell fejezni, kifejezetten hangulatos otthon alakítható ki belőle. Csendes helyen van, de a központhoz közel, a házhoz tartozó nagy telek is sok lehetőséget rajt magában.
A község rendezett, van bolt, orvos, gyógyszertár, védőnő, óvoda és alsó tagozatos általános iskola is, mind a házhoz közel. A községben könyvtár is működik, van közösségi élet is.
Mezőhegyes 12 perc, Tótkomlós 5 perc alatt elérhető autóval.
Az ingatlan tehermentes, arra hitel, babaváró támogatás is felvehető, melynek elintézésében szintén gyors és szakértő segítséget nyújtunk önnek igény esetén!
A ház az adásvétel után kisebb kipakolást követően birtokba vehető!
Ha felkeltettem érdeklődését, keressen bizalommal!
Vagy esetleg ingatlant adna el? Akkor is keressen bátran a megadott telefonszámon! Akár ingyenes árkalkulációt is szívesen végzünk Önnek, további kötöttségek nélkül!
Érdeklődni: Szlovák Ibolya +36704550993
Referencia szám: M295203-ZE
Tulajdonságok
Családi ház
Felújítandó
Egyéb
1940
Nem adta meg a hirdető
Vedd fel a kapcsolatot a hirdetővel
+36 70 455 0
Hitelkalkulátor
Ehhez az ingatlanhoz az általad és a hirdető által megadott adatok alapján nem tudunk kalkulációt adni. Kérj visszahívást az OTP Bank ügyintézőjétől, aki segít megfelelő hitelkonstrukciót találni.
Banki visszahívás
Az OTP Bank munkatársai a neked megfelelő napszakban veszik fel veled a kapcsolatot. A becslés a hirdető által megadott adatokon alapul. A jelen tájékoztatás nem minősül ajánlattételnek és nem teljes körű, az egyes feltételek a hitelbírálat eredményétől függően változhatnak. Kérjük, a részletekről tájékozódj az OTP Bank fiókjaiban vagy az OTP Bank honlapján közzétett vonatkozó Üzletszabályzatokból és Hirdetményekből.
Vedd fel a kapcsolatot a hirdetővel
+36 70 455 0
Vedd fel a kapcsolatot a hirdetővel
+36 70 455 0
UI_KIT.CHARACTER_COUNTER__COMPONENT.REMAINING_SPACE__SR_ONLYUI_KIT.CHARACTER_COUNTER__COMPONENT.MAXIMUM_CHARACTER__SR_ONLY
Hasonló eladó ingatlanok Nagyéren
Frissítve: 10 napja

20
4,6 M Ft 47 917 Ft/m²
Eladó családi ház, Nagyér

Frissítve: 6 napja

20
4,6 M Ft 47 917 Ft/m²
Eladó családi ház, Nagyér

Frissítve: 1 napja

10
4,88 M Ft 39 675 Ft/m²
Eladó családi ház, Nagyér, Szabadság utca 45.
Frissítve: 6 napja

20
4,6 M Ft 47 917 Ft/m²
Eladó családi ház, Nagyér

Frissítve: ma

7
4,99 M Ft 131 886 Ft/m²
Eladó családi ház, Óföldeák
Frissítve: ma

7
4,99 M Ft 99 800 Ft/m²
Eladó családi ház, Szatymaz

Töltsd fel hirdetésed ingyenesen!
Egyszerű