

+18 fotó
Hirdetéskód: 8612663
Referenciaszám: M307290
Frissítve: 12 napja
Nagykáta eladó családi ház 3 szobás: 23,9 millió Ft
23,9 millió Ft
287 952 Ft/m² *
* A m² árat a hirdető adta meg.
83 m²
2542 m²
3 szoba
Leírás
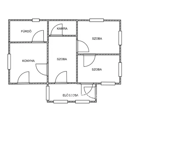
Budapesttől 60 km-re, Pest vármegye, Nagykáta városában felújítandó családi ház eladó. A 83 nm-es alapterületű, vályog falazatú ház egy 2542 nm-es telken helyezkedik el. A telek a mérete miatt meg is osztható. Az ingatlanban kialakításra került három szoba, konyha, előszoba, fürdőszoba wc-vel, kamra. Az ingatlan egy csendes kis utcában helyezkedik el, kiváló szomszédsággal. A város tömegközlekedését a helyi és menetrend szerinti autóbusz forgalom, valamint a vasútvonal biztosítja. Nagykátán elérhetők üzletek, strand és gyógyfürdő, bölcsődék, óvodák, általános és középiskolák is, így ideális választás gyermekes családok számára.
A vásárlás finanszírozásában az OTP kedvező hitelkonstrukcióival. Használja ki a lehetőséget, hogy kedvezőbb kamatozású OTP Bank hitelhez juthat, ha az OTP Ingatlanpont kínálatából választja ki a tökéletes otthont. Az adás-vétel lebonyolításához korrekt ügyvédi közreműködést tudunk biztosítani.
Tulajdonságok
Családi ház
1
Felújítandó
Egyéb kazán
1960
Nem adta meg a hirdető
Vedd fel a kapcsolatot a hirdetővel
+36 70 358 2
Hitelkalkulátor
Második évtől
102 855 Ft A 13. hónaptól
7,99%
Végig fix Futamidő: 20 év Banki visszahívás
Az OTP Bank munkatársai a neked megfelelő napszakban veszik fel veled a kapcsolatot. A becslés a hirdető által megadott adatokon alapul. A jelen tájékoztatás nem minősül ajánlattételnek és nem teljes körű, az egyes feltételek a hitelbírálat eredményétől függően változhatnak. Kérjük, a részletekről tájékozódj az OTP Bank fiókjaiban vagy az OTP Bank honlapján közzétett vonatkozó Üzletszabályzatokból és Hirdetményekből.
Vedd fel a kapcsolatot a hirdetővel
+36 70 358 2
Vedd fel a kapcsolatot a hirdetővel
+36 70 358 2
UI_KIT.CHARACTER_COUNTER__COMPONENT.REMAINING_SPACE__SR_ONLYUI_KIT.CHARACTER_COUNTER__COMPONENT.MAXIMUM_CHARACTER__SR_ONLY
Hasonló eladó ingatlanok Nagykátán
Frissítve: 1 hónapja

1
21,9 M Ft 228 125 Ft/m²
Eladó családi ház, Nagykáta, Iskola u
Frissítve: 2 hónapja

1
26 M Ft 260 000 Ft/m²
Eladó családi ház, Nagykáta
Frissítve: 1 éve

12
21,99 M Ft 229 063 Ft/m²
Eladó családi ház, Nagykáta

Fedezd fel a
hasonló házakat!Még további házak Pest megyében 23,9 M Ft körüli értékben
Tovább a hirdetésekhez Frissítve: 22 napja

19
21,9 M Ft 219 000 Ft/m²
Eladó családi ház, Nagykáta
Frissítve: 16 napja

9
25,9 M Ft 323 750 Ft/m²
Eladó családi ház, Nagykáta

Frissítve: 14 napja

9
25,9 M Ft 323 750 Ft/m²
Eladó családi ház, Nagykáta


Töltsd fel hirdetésed ingyenesen!
Egyszerű