

+6 fotó
Hirdetéskód: 8730601
Referenciaszám: M313694-5050791
Frissítve: ma
Nagykőrös eladó családi ház 4 szobás: 64,25 millió Ft
64,25 millió Ft
690 860 Ft/m²
93 m²
501 m²
4 szoba
Eladó Ház, Nagykőrös
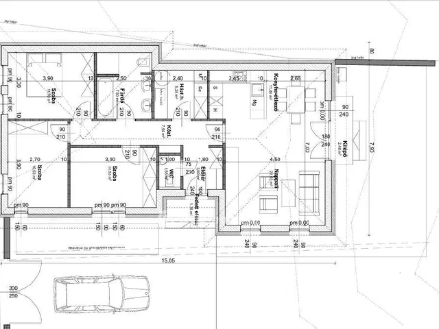
Pest vármegye, Nagykőrös kertvárosi részén 2026. év végén átadásra kerülő 93,5 m2 hasznos nettó alapterületű új tégla építésű családi ház 501 m2 nagyságú telken eladó. A lakóépület a Belváros szélén, csendes aszfaltozott utcában, rendezett családi házak szomszédságában épül fel. A lakóházba fedett előtéren keresztül juthatunk be, melyben egy nappali, egy konyha-étkező, három szoba, egy fürdőszoba-WC helyiség, egy külön nyíló WC-helyiség, egy közlekedő, egy háztartási helyiség és egy előszoba kap helyet. A ház téglából készül, 15 cm-es homlokzati szigeteléssel, hőszigetelt lépésálló födémmel, vörös cserépfedéssel. A külső műanyag nyílászárók 3 rétegű üveggel készülnek, a belsők jó minőségű dekor ajtók lesznek. A szobák laminált padló-, a többi helyiség járólap borítást kap. Az ingatlan vizes helyiségei minőségi fal- és aljzat burkolatot, a belső falak és a mennyezet magas kidolgozottságú fehér festést kapnak (hidegburkolatok 10.000 Ft/nm-ig, melegburkolatok 8.000 Ft/nm-ig választhatók). A telek összközműves: a villany-, a városi víz-, a gáz-ellátás és a szennyvíz-elvezetés telken belül kiépítettek. A ház hűtéséhez a klíma, valamint a nyílászárókon az elektromos redőny előkészítése kiépítésre kerül. Az otthon melegét hőszivattyú biztosítja, padlófűtéses hőleadással. A házban a gépészeti kiállások (mosógép, szárítógép, főzőlap, mosogatógép, stb.), a teljes elektromos kiépítés (lámpapontok, aljzatok, kapcsolók, internetpontok) és a napelemes rendszer előkészítése megtörténik. A gépjármű beálló kialakítása az utcáról udvarba és az utcafronti járda kialakítása szintén benne van az árban. Az ár a telket is tartalmazza.
Az ingatlan elhelyezkedése kiváló, a közelben többféle bevásárlási lehetőség, egészségügyi intézmény, gyógyszertár, bank, posta, kormányhivatal néhány száz méteres körzeten belül elérhető. A hirdetés tájékoztató jellegű, az ingatlanról pontos adatokat a megtekintést követően a tulajdonos által elmondottak alapján tudunk garantálni.
A vásárlás finanszírozásában az OTP kedvezőbb kamatozású hitelkonstrukcióival és egyéb banki termékek kínálatával tudunk segíteni, díjmentesen, sorban állás nélkül! Az adásvételi szerződés lebonyolításához korrekt ügyvédi közreműködést tudunk ajánlani. Amennyiben felkeltettem érdeklődését, hívjon bizalommal! Eladó ingatlanokat keresünk meglévő és külföldi partnereink számára!
Referencia szám: M313694-ZE
Tulajdonságok
Családi ház
Új építésű
Hőszivattyú
2025
Nem adta meg a hirdető
Vedd fel a kapcsolatot a hirdetővel
Bosznainé Hajdú Katalin Éva Kecskemét Nagykőrösi utca 13 - OTP Ingatlanpont Iroda Az iroda összes hirdetése
+36 30 345 5
Hitelkalkulátor
Második évtől
276 503 Ft A 13. hónaptól
7,99% 8,49%
Végig fix Futamidő: 20 év Banki visszahívás
Az OTP Bank munkatársai a neked megfelelő napszakban veszik fel veled a kapcsolatot. A becslés a hirdető által megadott adatokon alapul. A jelen tájékoztatás nem minősül ajánlattételnek és nem teljes körű, az egyes feltételek a hitelbírálat eredményétől függően változhatnak. Kérjük, a részletekről tájékozódj az OTP Bank fiókjaiban vagy az OTP Bank honlapján közzétett vonatkozó Üzletszabályzatokból és Hirdetményekből.
Vedd fel a kapcsolatot a hirdetővel
Bosznainé Hajdú Katalin Éva Kecskemét Nagykőrösi utca 13 - OTP Ingatlanpont Iroda Az iroda összes hirdetése
+36 30 345 5
Vedd fel a kapcsolatot a hirdetővel
Bosznainé Hajdú Katalin Éva Kecskemét Nagykőrösi utca 13 - OTP Ingatlanpont Iroda Az iroda összes hirdetése
+36 30 345 5
UI_KIT.CHARACTER_COUNTER__COMPONENT.REMAINING_SPACE__SR_ONLYUI_KIT.CHARACTER_COUNTER__COMPONENT.MAXIMUM_CHARACTER__SR_ONLY
Hasonló eladó ingatlanok Nagykőrösön
Frissítve: 11 napja

20
Ideiglenes ütem - 2023-03-22 13:34 / Vajda Márk
59,4 M Ft 544 954 Ft/m²
Eladó családi ház, Nagykőrös

Frissítve: 11 napja

20
Ideiglenes ütem - 2023-03-22 13:34 / Vajda Márk
62,83 M Ft 515 000 Ft/m²
Eladó családi ház, Nagykőrös

Frissítve: 11 napja

20
Ideiglenes ütem - 2023-03-22 13:34 / Vajda Márk
62,32 M Ft 515 000 Ft/m²
Eladó családi ház, Nagykőrös


Fedezd fel a
hasonló házakat!Még további házak Nagykőrösön 64,25 M Ft körüli értékben
Tovább a hirdetésekhez Frissítve: 11 napja

16
60 M Ft 250 000 Ft/m²
Eladó családi ház, Nagykőrös

Frissítve: ma

16
60 M Ft 250 000 Ft/m²
Eladó családi ház, Nagykőrös

Frissítve: 1 napja

15
65,9 M Ft 470 714 Ft/m²
Eladó családi ház, Nagykőrös

Töltsd fel hirdetésed ingyenesen!
Egyszerű