+14 fotó
Hirdetéskód: 8948656
Referenciaszám: M324854-5187503
Frissítve: ma
Nagykőrös eladó családi ház 3+1 fél szobás: 33 millió Ft
33 millió Ft
330 ezer Ft/m²
100 m²
459 m²
3+1 fél szoba
Eladó Ház, Nagykőrös
Polgári stílusú családi ház eladó - Budapesttől kb. 1 órára, Pest vármegyében!
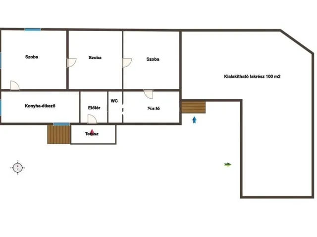
Budapesttől mintegy 80 km-re, jó elhelyezkedéssel kínálok megvételre egy összesen kb. 180 nm-es, polgári stílusú családi házat, amely egy 459 nm-es saroktelken helyezkedik el, és két utcáról is megközelíthető.
Az ingatlan a piac közelében található, így frekventált elhelyezkedése miatt akár vállalkozás számára is kiváló lehetőség.
Az épület masszív tégla falazatú és száraz szerkezetű, a tető a közelmúltban teljes cserén esett át, cserépfedéssel.
A ház egyik felében jelenleg egy kb. 100 nm-es, 3 szobás lakrész található, amelyhez pince is tartozik, míg az épület másik része felújításra vár, így az új tulajdonos saját elképzelései szerint alakíthatja ki.
Az ingatlan adottságai lehetővé teszik akár két külön lakrész kialakítását is.
A kedvező négyzetméter ár, a központ közeli elhelyezkedés, valamint a jó megközelíthetőség miatt az ingatlan befektetésnek, többgenerációs otthonnak vagy vállalkozás számára is remek választás lehet.
Az ingatlan készpénzes vevőt vár.
További információért vagy megtekintés egyeztetéséhez keress bizalommal!
Energetikai tanúsitvány nem áll rendelkezésre, elkészitése folymatban van.
Az energetikai tanúsítvány készítése folyamatban van, amint rendelkezésre áll, úgy azzal a hirdetés frissítésre kerül.
Tulajdonságok
Családi ház
Jó állapotú
Gáz (konvektor)
1970
Nem adta meg a hirdető
Vedd fel a kapcsolatot a hirdetővel
+36 70 459 4
Hitelkalkulátor
Második évtől
142 017 Ft A 13. hónaptól
7,99%
Végig fix Futamidő: 20 év Banki visszahívás
Az OTP Bank munkatársai a neked megfelelő napszakban veszik fel veled a kapcsolatot. A becslés a hirdető által megadott adatokon alapul. A jelen tájékoztatás nem minősül ajánlattételnek és nem teljes körű, az egyes feltételek a hitelbírálat eredményétől függően változhatnak. Kérjük, a részletekről tájékozódj az OTP Bank fiókjaiban vagy az OTP Bank honlapján közzétett vonatkozó Üzletszabályzatokból és Hirdetményekből.
Vedd fel a kapcsolatot a hirdetővel
+36 70 459 4
Vedd fel a kapcsolatot a hirdetővel
+36 70 459 4
UI_KIT.CHARACTER_COUNTER__COMPONENT.ACTUAL_CHARACTER__SR_ONLY UI_KIT.CHARACTER_COUNTER__COMPONENT.MAXIMUM_CHARACTER__SR_ONLY
Hasonló eladó ingatlanok Nagykőrösön
Frissítve: 2 napja
20
35 millió Ft 269,2 ezer Ft/m²
Eladó családi ház, Nagykőrös

Frissítve: 1 hónapja
14
35 millió Ft 286,9 ezer Ft/m²
Eladó családi ház, Nagykőrös

Feltöltve: 3 éve
12
35,99 millió Ft 183,6 ezer Ft/m²
Eladó családi ház, Nagykőrös


Fedezd fel a
hasonló házakat!Még további házak Nagykőrösön 33 M Ft körüli értékben
Tovább a hirdetésekhez Frissítve: 13 napja
10
34,9 millió Ft 290,8 ezer Ft/m²
Eladó családi ház, Nagykőrös

Frissítve: 12 napja
10
34,9 millió Ft 290,8 ezer Ft/m²
Eladó családi ház, Nagykőrös

Frissítve: 22 napja
8
34,99 millió Ft 402,2 ezer Ft/m²
Eladó családi ház, Nagykőrös, Kecskeméti út

