+17 fotó
Zenga
Premier
Hirdetéskód: 8975126
Referenciaszám: M327230
Feltöltve: 1 napja
Nyirád eladó családi ház 3+1 fél szobás: 58 millió Ft
58 millió Ft
568 628 Ft/m² *
* A m² árat a hirdető adta meg.
102 m²
1712 m²
3+1 fél szoba

Friss hirdetések, amiket nem találsz meg más ingatlankereső portálon.
Fedezd fel elsőként a Zenga Premier címkés eladó ingatlanokat! További részletek A Duna House, OTP Ingatlanpont, Otthon Centrum és további hálózatok új, kizárólagos hirdetéseinek nagy részét a zenga.hu és koltozzbe.hu ingatlankeresőn láthatod legelőször, és a feltöltéstől két hétig nem érhetők el más ingatlankeresőn!
Leírás
Eladó családi ház Nyirád.
Csendes, barátságos, szépen aszfaltozott utcában kínálunk eladásra egy két külön bejáratú lakrésszel rendelkező családi házat.
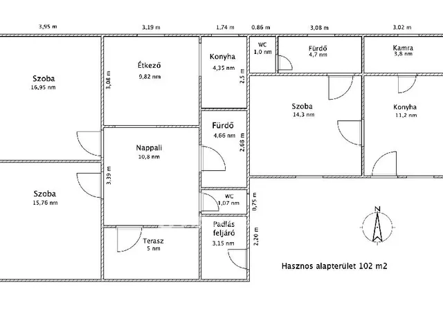
Az utcafronti, 67 négyzetméteres lakrészben két szoba, konyha, étkező, fürdőszoba és külön WC található. A bejáratnál egy hangulatos, kisebb külső terasz biztosít kellemes pihenési lehetőséget.
A hátsó, külön bejárattal rendelkező, 35 négyzetméteres lakrész egy szobából, konyhából, kamrából, valamint fürdőszobából és WC-ből áll, így akár többgenerációs együttélésre vagy kiadásra is alkalmas.
Az udvaron garázs, több kisebb melléképület, valamint egy termények tárolására szolgáló verem is helyet kapott.
A fűtést három cserépkályha, valamint az első lakrész nappalijában elhelyezett klímaberendezés biztosítja. A gáz a telken belül megtalálható, azonban az ingatlanba nincs bevezetve.
Az ingatlan felújítandó állapotú, így új tulajdonosa saját igényei szerint alakíthatja.
A kert gondozott, füvesített, színes virágokkal és fákkal, kellemes, nyugodt környezetet teremtve. Igény esetén kiskert is könnyedén kialakítható.
Amennyiben az ingatlan felkeltette érdeklődését, keressen bizalommal. Az OTP Ingatlanpont teljes körű ügyintézéssel áll az eladók és a vevők rendelkezésére. A kínálatunkból választott ingatlan finanszírozásához kedvezményes hitelkonstrukciót kínálunk. Az adásvételi szerződés megkötéséhez igény szerint megbízható ügyvédi közreműködést biztosítunk, és segítséget nyújtunk az adásvételhez kapcsolódó ügyek intézéséhez is. Az ingatlanról készült alaprajz, illetve fényképfelvételek az OTP ingatlanpont szellemi tulajdonát képezik. Amennyiben felkeltette érdeklődését az általam kínált ingatlan, NE SZALASSZA EL EZT A FIGYELEMRE MÉLTÓ LEHETŐSÉGET, HÍVJON MA!
Tulajdonságok
Családi ház
1
Átlagos
Cserépkályha
1982
Nem adta meg a hirdető
Vedd fel a kapcsolatot a hirdetővel
+36 30 100 9
Hitelkalkulátor
Második évtől
249 606 Ft A 13. hónaptól
7,99%
Végig fix Futamidő: 20 év Banki visszahívás
Az OTP Bank munkatársai a neked megfelelő napszakban veszik fel veled a kapcsolatot. A becslés a hirdető által megadott adatokon alapul. A jelen tájékoztatás nem minősül ajánlattételnek és nem teljes körű, az egyes feltételek a hitelbírálat eredményétől függően változhatnak. Kérjük, a részletekről tájékozódj az OTP Bank fiókjaiban vagy az OTP Bank honlapján közzétett vonatkozó Üzletszabályzatokból és Hirdetményekből.
Vedd fel a kapcsolatot a hirdetővel
+36 30 100 9
Vedd fel a kapcsolatot a hirdetővel
+36 30 100 9
UI_KIT.CHARACTER_COUNTER__COMPONENT.ACTUAL_CHARACTER__SR_ONLY UI_KIT.CHARACTER_COUNTER__COMPONENT.MAXIMUM_CHARACTER__SR_ONLY
Hasonló eladó ingatlanok Nyirádon
Feltöltve: 11 napja
19
63 M Ft 776 341 Ft/m²
Eladó családi ház, Nyirád

Frissítve: 7 hónapja
1
55 M Ft 348 101 Ft/m²
Eladó családi ház, Zirc
Frissítve: 11 napja
20
57,9 M Ft 827 143 Ft/m²
Eladó családi ház, Felsőörs

Fedezd fel a
hasonló házakat!Még további házak Veszprém megyében 58 M Ft körüli értékben
Tovább a hirdetésekhez Frissítve: 2 napja
20
56 M Ft 400 000 Ft/m²
Eladó családi ház, Tapolca
Frissítve: 11 napja
20
59,8 M Ft 511 111 Ft/m²
Eladó családi ház, Pápa

Frissítve: 11 napja
13
55 M Ft 611 111 Ft/m²
Eladó családi ház, Balatonfőkajár, Szabó Dezső
