+7 fotó
Hirdetéskód: 8952041
Referenciaszám: M323666-5189810
Frissítve: 1 napja
Nyíregyháza eladó családi ház 8 szobás: 79 millió Ft
79 millió Ft
431 694 Ft/m²
183 m²
702 m²
8 szoba
Eladó Ház, Nyíregyháza
Nyíregyházán, a Szarvas utcában eladó egy többfunkciós, üzleti célra is kiválóan alkalmas, emeletes családi ház + különálló garázs
A 183 m2-es lakóház két szintes, a lakó- és üzleti funkciók jól elkülöníthetők, így ideális választás lehet vállalkozás és lakhatás együttes megvalósítására, vagy befektetési célra is.
A családi ház tetőtere részben beépített, amely növeli a hasznos alapterületet és a kihasználhatóságot.
Az utcafronti részen üzlethelyiség került kialakításra, amely kiváló lehetőséget biztosít kereskedelmi vagy szolgáltató tevékenység működtetésére. Az épület további része jelenleg két különálló lakóegységként elkülönítve, albérletként hasznosítva működik, így az ingatlan már most is bevételtermelő.
A lakóházzal együtt kerül értékesítésre az udvar hátsó részében található 24 m2-es különálló garázs is, amely a telek hátsó oldaláról is megközelíthető, megkönnyítve a parkolást és a közlekedést.
Az ingatlan adottságai miatt több generáció együttélésére, vállalkozás működtetésére vagy befektetésként történő hasznosításra is kiváló lehetőséget kínál. A lakóegységek külön mérőórákkal szereltek, gáz cirkós fűtéssel. A családi ház műanyag ablakokkal rendelkezik.
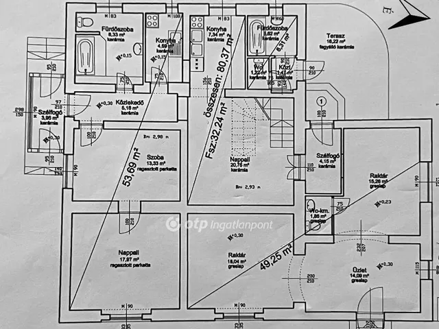
Helyiségek:
- Déli oldali apartman, földszinten: 2db szoba, közlekedő, Fürdő + WC, konyha
- Nyugati oldali apartman: Földszinten: Nappali, konyha, fürdőszoba, WC, közlekedő, Emeleten: 2db szoba, fürdőszoba + WC, gardrób, társalgó, közlekedő
- Utcafronti üzlethelyiség: 3db szoba (raktárak + üzlethelyiség), WC
- Pince
- különálló garázs
A belső terek jelenlegi elrendezését az alaprajzok mutatják.
Elhelyezkedés és parkolás:
- Kiváló tömegközlekedési kapcsolatok
- Parkolás közterületen
- Udvari beállási lehetőség
- Utcafrontról megközelíthető különálló garázs
Az elhelyezkedése miatt jó megközelíthetőséget biztosít, így üzleti szempontból is kedvező adottságokkal rendelkezik.
Hivatkozási szám: M323666
További kérdéseire készséggel válaszolok akár hétvégén is! Kedvezményes kamatozású lakásvásárlási és felújítási hitelek, valamint CSOK és Babaváró ügyintézés az OTP hátterével irodánkban.
Tulajdonságok
Családi ház
Átlagos
Gázkazán
1922
Nem adta meg a hirdető
Vedd fel a kapcsolatot a hirdetővel
+36 30 274 9
Hitelkalkulátor
Második évtől
339 980 Ft A 13. hónaptól
7,99%
Végig fix Futamidő: 20 év Banki visszahívás
Az OTP Bank munkatársai a neked megfelelő napszakban veszik fel veled a kapcsolatot. A becslés a hirdető által megadott adatokon alapul. A jelen tájékoztatás nem minősül ajánlattételnek és nem teljes körű, az egyes feltételek a hitelbírálat eredményétől függően változhatnak. Kérjük, a részletekről tájékozódj az OTP Bank fiókjaiban vagy az OTP Bank honlapján közzétett vonatkozó Üzletszabályzatokból és Hirdetményekből.
Vedd fel a kapcsolatot a hirdetővel
+36 30 274 9
Vedd fel a kapcsolatot a hirdetővel
+36 30 274 9
UI_KIT.CHARACTER_COUNTER__COMPONENT.ACTUAL_CHARACTER__SR_ONLY UI_KIT.CHARACTER_COUNTER__COMPONENT.MAXIMUM_CHARACTER__SR_ONLY
Hasonló eladó ingatlanok Érkert városrészben
Frissítve: 7 napja
10
79 M Ft 431 694 Ft/m²
Eladó családi ház, Nyíregyháza, Érkert

Frissítve: 1 napja
10
79 M Ft 431 694 Ft/m²
Eladó családi ház, Nyíregyháza, Érkert

Frissítve: 11 napja
8
85 M Ft 708 333 Ft/m²
Eladó ikerház, Nyíregyháza


Fedezd fel a
hasonló házakat!Még további házak Nyíregyházán 79 M Ft körüli értékben
Tovább a hirdetésekhez Frissítve: 11 napja
6
74,9 M Ft 645 690 Ft/m²
Eladó ikerház, Nyíregyháza

Frissítve: 11 napja
7
80 M Ft 707 965 Ft/m²
Eladó ikerház, Nyíregyháza

Frissítve: 1 hónapja
13
80 M Ft 470 588 Ft/m²
Eladó sorház, Nyíregyháza
