+13 fotó
Hirdetéskód: 8841338
Referenciaszám: M317093-5117400
Feltöltve: 1 napja
Nyíregyháza eladó családi ház 5 szobás: 128 millió Ft
128 millió Ft
748 538 Ft/m²
171 m²
384 m²
5 szoba
Eladó Ház, Nyíregyháza
Új építésű, modern ikerház eladó Nyíregyházán, prémium minőség, egyedi igények szerint!
Eladásra kínáljuk Nyíregyháza egyik kedvelt, csendes utcájában, a Folyóka utcában épülő új építésű ikerház, kettő lakásból az 1. -es számu lakás eladó(keleti fele) mely, 171nm hasznos alapterülettel, saját garázzsal és nagy terasszal. Az ingatlan jelenleg kb. 50%-os készültségű, szerkezetkész állapotban van, így a belső burkolatok és szaniterek saját ízlés szerint választhatók!
Főbb jellemzők:
-Lakás elhelyezkedése: ikerház keleti fele, külön bejárattal
-Hasznos alapterület: 171 nm
-Telek területe: 384 nm (magán használattal)
-Készültségi fok: kb. 50%, szerkezetkész állapot
-Várható átadás: kulcsrakész állapot egyedi egyeztetéssel
Szerkezeti és műszaki adatok:
-Építési mód: 30 cm Porotherm tégla falazat, 15 cm külső hőszigeteléssel
-Födém: előregyártott vasbeton födém földszint és emelet felett
-Tető: lapostető PVC vízszigeteléssel, 30 cm hőszigeteléssel
-Alapozás: vasbeton sávalap
-Homlokzat: fehér nemesvakolat és barna díszburkolat kombináció
-Nyílászárók: antracit színű, háromrétegű hőszigetelt műanyag ablakok
-Garázskapu: szekcionált, automata kivitel
-Fűtés: korszerű hőszivattyús rendszer, energiatakarékos, környezetbarát megoldás
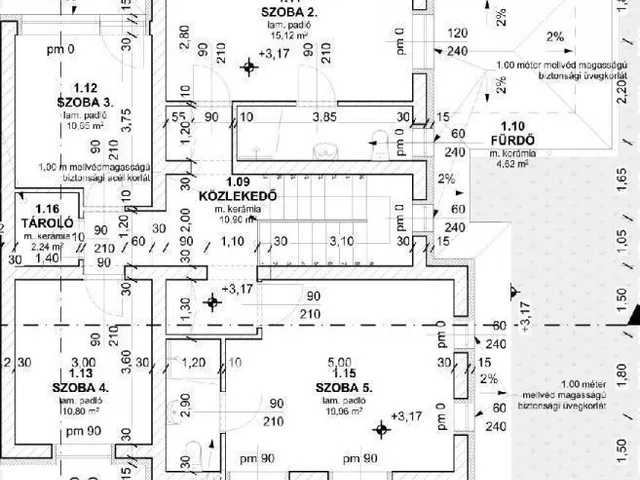
Belső elrendezés, családbarát kialakítás:
-Földszint (93,77 nm):
-Tágas nappali, étkező, konyha egybenyitott tér
-Előtér és közlekedő
-Földszinti szoba (10,5 nm) dolgozónak vagy vendégszobának ideális
-Háztartási helyiség (mosógép, WC, kézmosó)
-Tároló (5,2 nm)
-Garázs (16,8 nm) közvetlen lakáskapcsolattal
-Fedett bejárati terasz
Emelet (77,77 nm):
-4 kényelmes hálószoba
-2 fürdőszoba (zuhanyzó + WC + mosdó)
-Közlekedő és tárolóhelyiség
-Világos, jól szellőző helyiségek, nagy ablakfelületekkel és praktikus alaprajzzal.
Extra jellemzők:
-Padló- és radiátoros fűtés kombinációja
-Burkolatok és szaniterek igény szerint választhatók
-Fagyálló kerámia teraszburkolat
-Biztonsági üvegkorlátok, rozsdamentes szerelvények
-Korszerű hő- és vízszigetelés minden szerkezeti rétegben
Környék és elhelyezkedés:
A Folyóka utca nyugodt, családi házas övezet, mégis közel mindenhez, iskola, óvoda, bolt, buszmegálló, orvosi rendelő pár percen belül elérhető.
A telek sík, jól megközelíthető, asfaltos úton, zöld környezetben, magas zöldfelületi aránnyal (53,6%).
Miért különleges ez az ingatlan:
-Új építésű, lapostetős, modern megjelenésű ház
-Energiatakarékos hőszivattyús fűtés
-Tégla, vasbeton födém, prémium anyagok
-Szerkezetkész, de igény szerint befejezhető, egyedi kialakítási lehetőség
-Csendes, biztonságos, családbarát környék
Az ingatlan szerkezetkész állapotban is megvásárolható 70 500 000 forintért, a kivitelezés folyamatosan zajlik, és a készültségi fok előrehaladtával az ár arányosan növekszik.
Kiváló ár-érték arány, kulcsrakészre tervezett befejezéssel.
További információért vagy megtekintésért keressen bizalommal, akár hétvégén is. Irodánkban elérhetők kedvezményes lakásvásárlási és felújítási hitelek, valamint CSOK és Babaváró ügyintézés az OTP hátterével.
Tulajdonságok
Családi ház
Új építésű
Hőszivattyú
2025
Nem adta meg a hirdető
Vedd fel a kapcsolatot a hirdetővel
+36 70 546 3
Hitelkalkulátor
Második évtől
550 854 Ft A 13. hónaptól
7,99% 8,49%
Végig fix Futamidő: 20 év Banki visszahívás
Az OTP Bank munkatársai a neked megfelelő napszakban veszik fel veled a kapcsolatot. A becslés a hirdető által megadott adatokon alapul. A jelen tájékoztatás nem minősül ajánlattételnek és nem teljes körű, az egyes feltételek a hitelbírálat eredményétől függően változhatnak. Kérjük, a részletekről tájékozódj az OTP Bank fiókjaiban vagy az OTP Bank honlapján közzétett vonatkozó Üzletszabályzatokból és Hirdetményekből.
Vedd fel a kapcsolatot a hirdetővel
+36 70 546 3
Vedd fel a kapcsolatot a hirdetővel
+36 70 546 3
UI_KIT.CHARACTER_COUNTER__COMPONENT.REMAINING_SPACE__SR_ONLYUI_KIT.CHARACTER_COUNTER__COMPONENT.MAXIMUM_CHARACTER__SR_ONLY
Hasonló eladó ingatlanok Nyíregyházán
Frissítve: 17 napja
20
135 M Ft 838 509 Ft/m²
Eladó családi ház, Nyíregyháza, Hargita utca

Frissítve: 17 napja
20
135 M Ft 630 841 Ft/m²
Eladó családi ház, Nyíregyháza

Frissítve: 17 napja
20
129 M Ft 430 000 Ft/m²
Eladó családi ház, Nyíregyháza


Fedezd fel a
hasonló házakat!Még további házak Nyíregyházán 128 M Ft körüli értékben
Tovább a hirdetésekhez Frissítve: 17 napja
16
120,7 M Ft 851 199 Ft/m²
Eladó ikerház, Nyíregyháza

Frissítve: 17 napja
15
120 M Ft 197 466 Ft/m²
Eladó családi ház, Nyíregyháza, Csongor utca

Frissítve: 17 napja
12
129 M Ft 921 429 Ft/m²
Eladó családi ház, Nyíregyháza


