+17 fotó
Hirdetéskód: 8838492
Referenciaszám: M318959-5115338
Feltöltve: 4 napja
Nyírtelek eladó családi ház 4+1 fél szobás: 59,9 millió Ft
59,9 millió Ft
320 321 Ft/m²
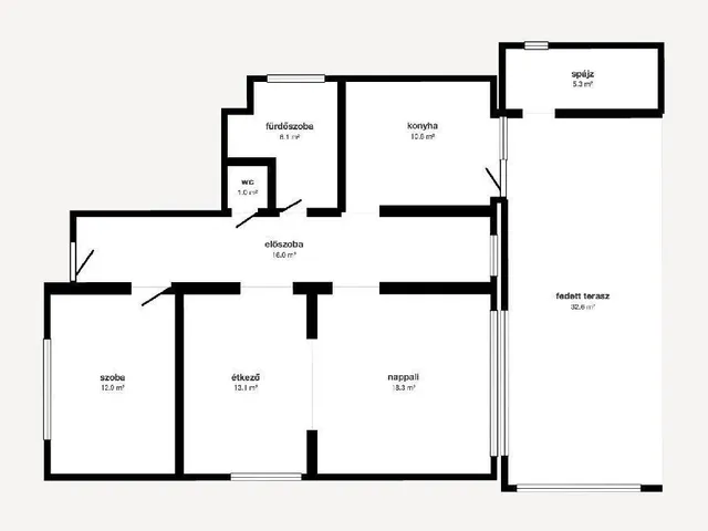
187 m²
4257 m²
4+1 fél szoba
Eladó Ház, Nyírtelek
Nyírtelken venne tágas családi házat?
Akkor ez az Ön kihagyhatatlan lehetősége!
Nyírtelken eladó egy tágas, kivételes adottságokkal rendelekző családi ház.
Az ingatlan vegyes falazattal épült, szilikát és tufa felhasználásával, stabil szerkezettel rendelkezik. Hasznos alapterülete 187 négyzetméter, két szinten kialakítva 4 tágas szobával, amely jól átgondolt térszerkezetet és kényelmes életteret biztosít.
A fűtés többféle megoldással is megoldott, vegyes tüzelésű kazán, kombi rendszer és kandalló is rendelkezésre áll, így a fenntartás rugalmasan alakítható.
A földszinten fa nyílászárók találhatók, míg az emeleti szinten korszerű műanyag nyílászárók kerültek beépítésre, hozzájárulva a jobb hőszigeteléshez és komfortérzethez.
Az épülethez egy szép, tágas, fedett terasz is tartozik, amely kiváló helyszíne lehet családi összejöveteleknek vagy pihenésnek.
A telek mérete 4257 négyzetméter, amely bőséges lehetőséget kínál kertészkedésre, gazdálkodásra vagy további fejlesztésekre. Az ingatlan csendes, nyugodt környezetben helyezkedik el, rendezett, barátságos szomszédsággal.
A mindennapi élethez szükséges intézmények könnyen elérhetők, körülbelül 1,5 kilométeres távolságon belül megtalálható gyógyszertár, óvoda, iskola, orvosi és fogorvosi rendelő is.
Ez az ingatlan kiváló lehetőség mindazok számára, akik tágas életteret, nagy telket és nyugodt környezetet keresnek Nyírtelken.
Az ingatlan alkalmas Csok Pluszra illetve Otthon Start Programra is.
OTP Banki hátterünknek köszönhetően finanszírozási igényekben (pl. Otthon Start Hitelprogram, Babaváró, Falusi CSOK, CSOK Plusz, Lakáshitel, Személyi kölcsön stb.), illetve biztosítások tekintetében is díjmentesen, soron kívüli ügyintézéssel segítem ügyfeleim! Referenciaszám: M318959
Tulajdonságok
Családi ház
Jó állapotú
Gázkazán
1995
Nem adta meg a hirdető
Vedd fel a kapcsolatot a hirdetővel
Harsányi Nikolett OTPip - Nyíregyháza Bocskai utca 18-20 - OTP Ingatlanpont Iroda Az iroda összes hirdetése
+36 30 722 0
Hitelkalkulátor
Második évtől
257 782 Ft A 13. hónaptól
7,99%
Végig fix Futamidő: 20 év Banki visszahívás
Az OTP Bank munkatársai a neked megfelelő napszakban veszik fel veled a kapcsolatot. A becslés a hirdető által megadott adatokon alapul. A jelen tájékoztatás nem minősül ajánlattételnek és nem teljes körű, az egyes feltételek a hitelbírálat eredményétől függően változhatnak. Kérjük, a részletekről tájékozódj az OTP Bank fiókjaiban vagy az OTP Bank honlapján közzétett vonatkozó Üzletszabályzatokból és Hirdetményekből.
Vedd fel a kapcsolatot a hirdetővel
Harsányi Nikolett OTPip - Nyíregyháza Bocskai utca 18-20 - OTP Ingatlanpont Iroda Az iroda összes hirdetése
+36 30 722 0
Vedd fel a kapcsolatot a hirdetővel
Harsányi Nikolett OTPip - Nyíregyháza Bocskai utca 18-20 - OTP Ingatlanpont Iroda Az iroda összes hirdetése
+36 30 722 0
UI_KIT.CHARACTER_COUNTER__COMPONENT.REMAINING_SPACE__SR_ONLYUI_KIT.CHARACTER_COUNTER__COMPONENT.MAXIMUM_CHARACTER__SR_ONLY
Hasonló eladó ingatlanok Nyírteleken
Frissítve: 16 napja
20
64,9 M Ft 405 625 Ft/m²
Eladó családi ház, Nyírtelek

Frissítve: 28 napja
20
64,9 M Ft 405 625 Ft/m²
Eladó családi ház, Nyírtelek

Frissítve: 4 napja
20
64,9 M Ft 405 625 Ft/m²
Eladó családi ház, Nyírtelek


Fedezd fel a
hasonló házakat!Még további házak Szabolcs-Szatmár-Bereg megyében 59,9 M Ft körüli értékben
Tovább a hirdetésekhez Frissítve: 4 napja
20
64,9 M Ft 405 625 Ft/m²
Eladó családi ház, Nyírtelek

Frissítve: 23 napja
20
64,9 M Ft 405 625 Ft/m²
Eladó családi ház, Nyírtelek

Frissítve: ma
20
64,9 M Ft 405 625 Ft/m²
Eladó családi ház, Nyírtelek

