+3 fotó
Hirdetéskód: 8937076
Referenciaszám: HZ045815-5179339
Frissítve: ma
Ócsa eladó családi ház 4 szobás: 94,9 millió Ft
94,9 millió Ft
958,6 ezer Ft/m²
99 m²
500 m²
4 szoba
Eladó ház, Ócsa
Eladó új építésű önálló családi ház Ócsán!
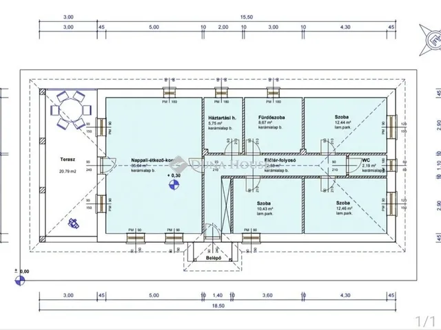
Ócsán kínálunk megvételre egy 99,96 négyzetméteres, új építésű önálló családi házat, melynek átgondolt belső elrendezése három külön nyíló szobából, fürdőszobából, külön WC-ből, háztartási helyiségből, valamint amerikai konyhás nappaliból áll, ahonnan közvetlen kijárat nyílik egy 20 négyzetméteres teraszra.
Az épület beton alapra, Porotherm 30-as téglából épül, fa födémmel.
A külső falakon 15 cm vastag hőszigetelés kerül kialakításra, a padlóban 10 cm lépésálló hőszigeteléssel, míg a födémen 25 cm vastag szigetelés biztosítja az energiatakarékos működést.
A fűtést korszerű hőszivattyús rendszer látja el padlófűtéssel, a nappaliban pedig egy klíma is felhelyezésre kerül.
Az ingatlanban gáz nem kerül kialakításra.
A 500 négyzetméteres telken kocsibeálló is helyet kap, a homlokzat és egyes külső elemek színe még választható, legyen szó modern antracit megjelenésről vagy mediterrán stílusú kialakításról.
A ház várható átadása 2026 2. negyedévének végén, illetve a 3. negyedév elején történik, így jelenleg még lehetőség van az ingatlan belső kialakítását és egyes részleteit a saját igények szerint formálni.
A burkolatok (hideg/meleg): 7000 Ft.-/ nm-ig választhatóak. (További árinformációk a műszaki tartalomban érhetők el.)
Ez az ingatlan ideális választás mindazok számára, akik egy új, korszerű, energiatakarékos otthont keresnek nyugodt környezetben, Ócsán.
Az energetikai tanúsítvány készítése folyamatban van, amint rendelkezésre áll, úgy azzal a hirdetés frissítésre kerül.
Érd: Dévai Éva, tel: +36303506820, e-mail: devai.eva@dh.hu
Referencia szám: HZ045815-ZE
Tulajdonságok
Családi ház
Új építésű
Hőszivattyú
2026
Nem adta meg a hirdető
Vedd fel a kapcsolatot a hirdetővel

+36 29 769 7
Hitelkalkulátor
Második évtől
408 406 Ft A 13. hónaptól
7,99% 8,49%
Végig fix Futamidő: 20 év Banki visszahívás
Az OTP Bank munkatársai a neked megfelelő napszakban veszik fel veled a kapcsolatot. A becslés a hirdető által megadott adatokon alapul. A jelen tájékoztatás nem minősül ajánlattételnek és nem teljes körű, az egyes feltételek a hitelbírálat eredményétől függően változhatnak. Kérjük, a részletekről tájékozódj az OTP Bank fiókjaiban vagy az OTP Bank honlapján közzétett vonatkozó Üzletszabályzatokból és Hirdetményekből.
Vedd fel a kapcsolatot a hirdetővel

+36 29 769 7
Vedd fel a kapcsolatot a hirdetővel

+36 29 769 7
UI_KIT.CHARACTER_COUNTER__COMPONENT.ACTUAL_CHARACTER__SR_ONLY UI_KIT.CHARACTER_COUNTER__COMPONENT.MAXIMUM_CHARACTER__SR_ONLY
Hasonló eladó ingatlanok Ócsán
Frissítve: 1 hónapja
20
94,9 millió Ft 784,3 ezer Ft/m²
Eladó ikerház, Ócsa
Frissítve: 14 napja
20
90 millió Ft 600 ezer Ft/m²
Eladó családi ház, Ócsa

Frissítve: 20 napja
15
93 millió Ft 531,4 ezer Ft/m²
Eladó családi ház, Ócsa

Fedezd fel a
hasonló házakat!Még további házak Ócsán 94,9 M Ft körüli értékben
Tovább a hirdetésekhez Frissítve: 22 napja
20
93,9 millió Ft 626 ezer Ft/m²
Eladó családi ház, Ócsa

Frissítve: 2 napja
20
89 millió Ft 370,8 ezer Ft/m²
Eladó családi ház, Ócsa

Frissítve: ma
20
93,9 millió Ft 626 ezer Ft/m²
Eladó családi ház, Ócsa

