+1 fotó
Hirdetéskód: 8692864
Referenciaszám: 213306909
Frissítve: 2 napja
Őrbottyán eladó családi ház 3+2 fél szobás: 98,9 millió Ft
98,9 millió Ft
791,2 ezer Ft/m²
125 m²
500 m²
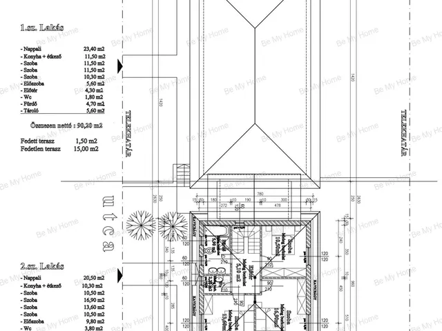
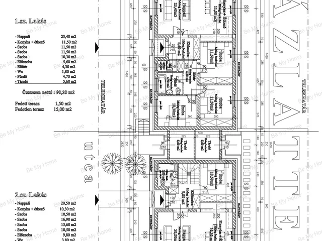
3+2 fél szoba
Őrbottyánban, horgásztó közelében, új építésű tégla családi ház leköthető 2026-os átadással
Őrbottyán belterületi részén újépítésű ház leköthető!
Horgásztó közelében nappali + 3 hálószobás téglaházak eladók 500 nm-es telekkel!
Az egyik ház 90 nm-es + teraszok, egyszintes, nappali + 3 hálós, a másik ház 2 szinten 114.7 nm + teraszok, nappali + 3 hálós.
Ez a hirdetés az 2.számú lakásról szól, mely kétszintes!
Főbb jellemzők:
- csendes, nyugodt részen, sok zölddel mindenfelé
- 500 nm-es saját, leválasztott telekkel
- a teljes telek 1000 nm, melyre 2 ház épül, az egyik 2 szintes lesz, a másik egy szintes. Jelenleg mindkét fele eladó! A 2 épület között a tárolók helyezkednek el.
- a telek 19 méter széles, 56 méter utcafrontos, remek telek!
- gyönyörű tujasor takar az egyik szomszéd felé és sok fa található a telekhatárokon
- a 2 ingatlanra ügyvédi használati megosztó szerződés készül!
- az építkezés elindult, kb. 6-8 hónap alatt elkészül
Műszaki jellemzők:
- Porotherm okos tégla
- hőszivattyús fűtés
- cserépfedés
- klíma kiállás
- autóbeállási lehetőség a kertben
- külön tároló
- murvás földút van jelenleg a főbb úttól nem messze
Előny:
- A természetben vásárolhat egy újépítésú házat, mely nem külterületi, nem zártkerti, hanem belterületi ingatlan, így értéke is magasabb, illetve bármely bank hitelezi!
Díjtalan, banksemleges hitelügyintézésben segítünk!
Tulajdonságok
Családi ház
2
Új építésű
Hőszivattyú
2025
A+
Vedd fel a kapcsolatot a hirdetővel
+36 30 239 6
Hitelkalkulátor
Második évtől
425 621 Ft A 13. hónaptól
7,99% 8,49%
Végig fix Futamidő: 20 év Banki visszahívás
Az OTP Bank munkatársai a neked megfelelő napszakban veszik fel veled a kapcsolatot. A becslés a hirdető által megadott adatokon alapul. A jelen tájékoztatás nem minősül ajánlattételnek és nem teljes körű, az egyes feltételek a hitelbírálat eredményétől függően változhatnak. Kérjük, a részletekről tájékozódj az OTP Bank fiókjaiban vagy az OTP Bank honlapján közzétett vonatkozó Üzletszabályzatokból és Hirdetményekből.
Vedd fel a kapcsolatot a hirdetővel
+36 30 239 6
Vedd fel a kapcsolatot a hirdetővel
+36 30 239 6
UI_KIT.CHARACTER_COUNTER__COMPONENT.ACTUAL_CHARACTER__SR_ONLY UI_KIT.CHARACTER_COUNTER__COMPONENT.MAXIMUM_CHARACTER__SR_ONLY
Hasonló eladó ingatlanok Őrszentmiklós városrészben
Frissítve: 10 hónapja
1
106 millió Ft 378,6 ezer Ft/m²
Eladó családi ház, Őrbottyán, Őrszentmiklós
Frissítve: 3 hónapja
10
97,5 millió Ft 1,04 millió Ft/m²
Eladó családi ház, Őrbottyán
Frissítve: 23 napja
3
92 millió Ft 981,8 ezer Ft/m²
Eladó ikerház, Őrbottyán


Fedezd fel a
hasonló házakat!Még további házak Őrbottyánban 98,9 M Ft körüli értékben
Tovább a hirdetésekhez Frissítve: 23 napja
3
97,5 millió Ft 1,04 millió Ft/m²
Eladó ikerház, Őrbottyán

Frissítve: 23 napja
3
97,5 millió Ft 1,04 millió Ft/m²
Eladó ikerház, Őrbottyán

Frissítve: ma
3
89,5 millió Ft 962,4 ezer Ft/m²
Eladó ikerház, Őrbottyán

