+13 fotó
Hirdetéskód: 8854604
Referenciaszám: 391574
Frissítve: 16 napja
Őrbottyán eladó családi ház 4 szobás: 105,5 millió Ft
105,5 millió Ft
1 159 341 Ft/m²
91 m²
360 m²
4 szoba
Eladó családi ház Őrbottyán, 91nm, 105.500.000Ft - Kálvária domb
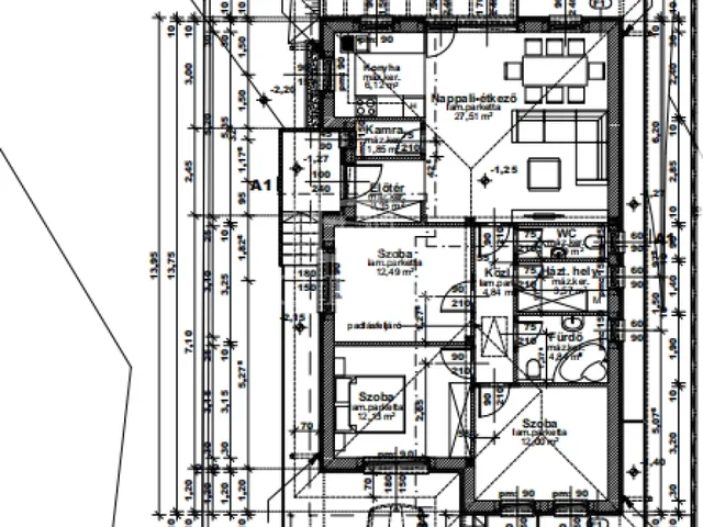
Eladásra kínálunk egy új építésű családi házat Őrbottyánban, a Kálvária dombon.
A ház alapterülete 91 négyzetméter, melyhez egy 360 négyzetméteres kert is tartozik.
A házban összesen 4 szoba található, ideális választás lehet nagyobb családok számára is.
A fűtésről modern hőszivattyús rendszer gondoskodik, ami környezetbarát és gazdaságos megoldás.
A 16 négyzetméteres teraszról gyönyörű kilátás nyílik a kertre, ami kertvárosi hangulatot áraszt.
A környék csendes és nyugodt, tökéletes hely a mindennapi pihenéshez és kikapcsolódáshoz.
Tervezett átadás legkésőbb 2026. augusztus
Hitel, CSOK Plusz, OSP felvehető, állunk rendelkezésére.
ID:391574 ...TOVÁBBI, TÖBBEZRES INGATLAN KÍNÁLAT: www.gdn-ingatlan.hu - GDN azonosító: 391574
Tulajdonságok
Családi ház
1
Új építésű
Hőszivattyú
2026
16 m²
A+
Vedd fel a kapcsolatot a hirdetővel
+36 30 960 7
Hitelkalkulátor
Második évtől
454 024 Ft A 13. hónaptól
7,99% 8,49%
Végig fix Futamidő: 20 év Banki visszahívás
Az OTP Bank munkatársai a neked megfelelő napszakban veszik fel veled a kapcsolatot. A becslés a hirdető által megadott adatokon alapul. A jelen tájékoztatás nem minősül ajánlattételnek és nem teljes körű, az egyes feltételek a hitelbírálat eredményétől függően változhatnak. Kérjük, a részletekről tájékozódj az OTP Bank fiókjaiban vagy az OTP Bank honlapján közzétett vonatkozó Üzletszabályzatokból és Hirdetményekből.
Vedd fel a kapcsolatot a hirdetővel
+36 30 960 7
Vedd fel a kapcsolatot a hirdetővel
+36 30 960 7
UI_KIT.CHARACTER_COUNTER__COMPONENT.ACTUAL_CHARACTER__SR_ONLY UI_KIT.CHARACTER_COUNTER__COMPONENT.MAXIMUM_CHARACTER__SR_ONLY
Hasonló eladó ingatlanok Őrbottyánban
Frissítve: 21 napja
4
95,5 M Ft 710 038 Ft/m²
Eladó ikerház, Őrbottyán

Frissítve: 6 napja
3
97,5 M Ft 1 040 444 Ft/m²
Eladó ikerház, Őrbottyán

Frissítve: ma
4
95,5 M Ft 712 687 Ft/m²
Eladó ikerház, Őrbottyán


Fedezd fel a
hasonló házakat!Még további házak Őrbottyánban 105,5 M Ft körüli értékben
Tovább a hirdetésekhez Frissítve: 1 hónapja
10
97,5 M Ft 1 037 234 Ft/m²
Eladó családi ház, Őrbottyán
Frissítve: 21 napja
4
95,5 M Ft 710 038 Ft/m²
Eladó ikerház, Őrbottyán

Frissítve: 6 napja
3
97,5 M Ft 1 040 444 Ft/m²
Eladó ikerház, Őrbottyán


