+10 fotó
Hirdetéskód: 8810423
Referenciaszám: U0048998
Frissítve: 12 napja
Paks eladó családi ház 4 szobás: 199 millió Ft
199 millió Ft
1 170 588 Ft/m²
170 m²
312 m²
4 szoba
Pakson Dunai panorámás családi ház eladó
Pakson Dundi panorámás, 170 nm-es álomotthon nagy terasszal eladó.
Szereti a kényelmet és a csendet, a tágas, világos tereket? Szeretne egy minőségi otthont a családjának extrákkal?
Ezt a házat Önnek ajánlom!
Az ingatlan téglából épül, minőségi alapanyagok felhasználásával egy többszörös szakmai díjnyertes vállalkozás kivitelezésével. Hogy milyen legyen az otthona hangulata? Ez a döntés az Ön kezében van. Ötletadónak mellékelek pár fotót.
Főbb jellemzői:
-ez a ház várhatóan 2026-ban kerül megépítésre Porotherm 38 X-therm téglából megfelelő szigeteléssel (A+ energetika, alacsony rezsiköltség)
-nyílászárók 3 rétegű, fa szerkezetű ablakok hőszigetelő üvegezéssel, elektromos redőnnyel és rovarhálóval szerelve
-hőszivattyús rendszerről működtetett padlófűtés és mennyezet hűtés gondoskodik a lakók kényelméről
-mivel az ingatlan még a kivitelezési fázis előtt áll, így Önnek módjában áll a belső terek igény szerinti alakítására, a burkolatok magválasztására (adott keretek között)
-a jelenlegi tervek alapján az ingatlan elosztása tökéletes lesz egy nagyobb család számára is:
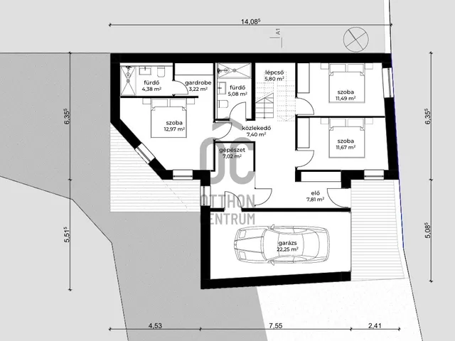
-a földszinten kap helyet a három szoba, melyből az egyik magában foglal egy privát fürdőt gardróbbal, valamint egy ajtót, amin keresztül a hátsó teraszra juthatunk, és madárcsicsergést hallgatva fogyaszthatjuk a reggeli kávét. Ezen a szinten van még egy fürdő, a gépészet és a garázs, illetve a felső szintre vezető lépcső
-a felső szinten kerül kialakításra a tágas, napfényes nappali, étkező, konyha, kamra, mosdó és a 40 négyzetméteres impozáns terasz, ahonnan napkeltétől napnyugtáig gyönyörködhetünk a Dunai panorámában
- lehetőség van még jacuzzi, illetve szauna kialakítására akár a teraszon is
Legyen az Öné ez az álomotthon! Bővebb információért hívjon még ma!
Teljes körű pénzügyi megoldások ügyintézése díjmentesen:
* Bankfüggetlen hitelcenterünk díjmentesen versenyezteti minden bank és hitelintézet ajánlatát.
* Önnek nincs más dolga, mint beszélgetni munkatársunkkal, majd a megversenyeztetett ajánlatokból kiválasztani a hosszútávon is a legmegfelelőbb konstrukciót.
* Szakértőnk több mint 20 éves szakmai tapasztalattal és egyedi igényekre szabott, fogyasztóbarát lakáshitelekkel, babaváró hitellel, teljes körű CSOK ügyintézéssel várja Önt.
* Előre egyeztetett időpontban.
Pakson Dunai panorámás álomotthon várja leendő tulajdonosát
Tulajdonságok
Családi ház
Új építésű
Hőszivattyú
2026
40 m²
Nem adta meg a hirdető
Vedd fel a kapcsolatot a hirdetővel
+36 70 465 6
Hitelkalkulátor
Második évtől
856 405 Ft A 13. hónaptól
7,99% 8,49%
Végig fix Futamidő: 20 év Banki visszahívás
Az OTP Bank munkatársai a neked megfelelő napszakban veszik fel veled a kapcsolatot. A becslés a hirdető által megadott adatokon alapul. A jelen tájékoztatás nem minősül ajánlattételnek és nem teljes körű, az egyes feltételek a hitelbírálat eredményétől függően változhatnak. Kérjük, a részletekről tájékozódj az OTP Bank fiókjaiban vagy az OTP Bank honlapján közzétett vonatkozó Üzletszabályzatokból és Hirdetményekből.
Vedd fel a kapcsolatot a hirdetővel
+36 70 465 6
Vedd fel a kapcsolatot a hirdetővel
+36 70 465 6
UI_KIT.CHARACTER_COUNTER__COMPONENT.REMAINING_SPACE__SR_ONLYUI_KIT.CHARACTER_COUNTER__COMPONENT.MAXIMUM_CHARACTER__SR_ONLY
Hasonló eladó ingatlanok Óváros városrészben
Frissítve: 22 napja
20
198 M Ft 247 500 Ft/m²
Eladó családi ház, Nagymányok

Frissítve: 24 napja
20
198 M Ft 247 500 Ft/m²
Eladó családi ház, Nagymányok

Frissítve: 16 napja
20
180 M Ft 600 000 Ft/m²
Eladó családi ház, Sióagárd

Frissítve: 17 napja
20
180 M Ft 600 000 Ft/m²
Eladó családi ház, Sióagárd

Frissítve: 17 napja
20
180 M Ft 600 000 Ft/m²
Eladó családi ház, Sióagárd

Frissítve: 16 napja
20
198 M Ft 247 500 Ft/m²
Eladó családi ház, Nagymányok


Töltsd fel hirdetésed ingyenesen!
Egyszerű
