+17 fotó
Hirdetéskód: 8974121
Referenciaszám: M322487-5186438
Feltöltve: 2 napja
Pápa eladó családi ház 3 szobás: 49,9 millió Ft
49,9 millió Ft
519 792 Ft/m²
96 m²
1020 m²
3 szoba
Eladó Ház, Pápa
Eladásra kínálok Pápán, az alsóvárosrészen egy 1974-ben, nagyméretű B30-as téglából épült, 100 m2-es, 3 szobás családi házat, amelyhez 1020 m2-es, tágas telek tartozik.
Az ingatlan masszív, betonfödémes szerkezetű, statikailag jó állapotban van. Magas lábazatának köszönhetően száraz, nem vizes épület, stabil alapokkal rendelkezik. Az állószékes tetőszerkezet megfelelő állapotú, így akár tetőtér-beépítésben is lehet gondolkodni.
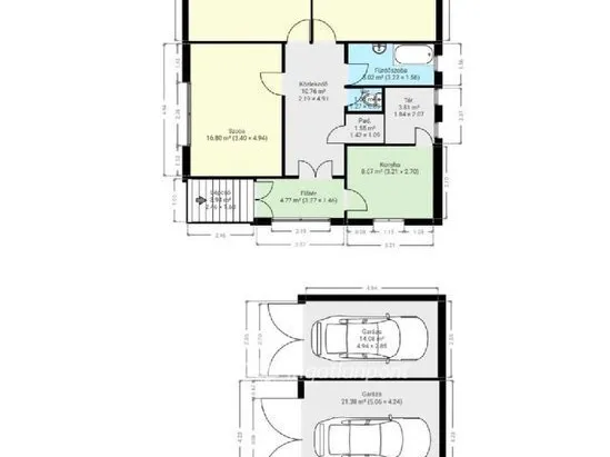
A ház elrendezése három külön nyíló szobából, konyhából, kamrából, előtérből, közlekedőből és fürdőszobából áll, valamint padlástér is rendelkezésre áll. Fűtéséről gázkonvektorok gondoskodnak. A nyílászárók részben fa, részben műanyag kivitelűek.
Az ingatlan felújítandó állapotú, ugyanakkor kiváló lehetőséget kínál arra, hogy új tulajdonosa saját elképzelései szerint alakítsa át. A belső falak átgondolt módosításával korszerűbb, tágasabb életteret lehet kialakítani - akár amerikai konyhás nappalival, akár nagyobb család számára ideális elosztással.
A telken egy nagyobb és egy kisebb, tégla falazatú garázs, tároló, valamint egy különálló melléképület is található, amely korábban gazdasági célokat szolgált. A telek hátsó része jelenleg kihasználatlan, így kertészkedésre, veteményes vagy gyümölcsös kialakítására, illetve pihenőkert megvalósítására is alkalmas.
Az ingatlan ideális választás lehet azok számára, akik stabil szerkezetű házat keresnek jó adottságokkal, és saját ízlésükre formálnák jövőbeli otthonukat.
49900000 Ft
Ha kérdése van, vagy szeretné megtekinteni az ingatlant, hívjon bizalommal!
Kontráth Ilona 30/5421272
Referencia szám: M322487
Tulajdonságok
Családi ház
Felújítandó
Gáz (konvektor)
1974
Nem adta meg a hirdető
Vedd fel a kapcsolatot a hirdetővel
+36 30 542 1
Hitelkalkulátor
Második évtől
214 747 Ft A 13. hónaptól
7,99%
Végig fix Futamidő: 20 év Banki visszahívás
Az OTP Bank munkatársai a neked megfelelő napszakban veszik fel veled a kapcsolatot. A becslés a hirdető által megadott adatokon alapul. A jelen tájékoztatás nem minősül ajánlattételnek és nem teljes körű, az egyes feltételek a hitelbírálat eredményétől függően változhatnak. Kérjük, a részletekről tájékozódj az OTP Bank fiókjaiban vagy az OTP Bank honlapján közzétett vonatkozó Üzletszabályzatokból és Hirdetményekből.
Vedd fel a kapcsolatot a hirdetővel
+36 30 542 1
Vedd fel a kapcsolatot a hirdetővel
+36 30 542 1
UI_KIT.CHARACTER_COUNTER__COMPONENT.ACTUAL_CHARACTER__SR_ONLY UI_KIT.CHARACTER_COUNTER__COMPONENT.MAXIMUM_CHARACTER__SR_ONLY
Hasonló eladó ingatlanok Pápán
Frissítve: 12 napja
20
54 M Ft 600 000 Ft/m²
Eladó családi ház, Pápa
Feltöltve: 10 hónapja
12
47,99 M Ft 436 273 Ft/m²
Eladó családi ház, Pápa
Frissítve: 7 napja
20
45,8 M Ft 482 105 Ft/m²
Eladó családi ház, Pápa


Fedezd fel a
hasonló házakat!Még további házak Pápán 49,9 M Ft körüli értékben
Tovább a hirdetésekhez Frissítve: 12 napja
15
45,99 M Ft 353 769 Ft/m²
Eladó családi ház, Pápa
Frissítve: 7 hónapja
0
48 M Ft 685 714 Ft/m²
Eladó családi ház, Pápa, Hódoska utca 7
Frissítve: 12 napja
15
48 M Ft 436 364 Ft/m²
Eladó családi ház, Pápa


