+15 fotó
Hirdetéskód: 8862473
Referenciaszám: M321140
Frissítve: 2 napja
Pázmánd eladó családi ház 2 szobás: 79,9 millió Ft
79,9 millió Ft
845 503 Ft/m² *
* A m² árat a hirdető adta meg.
94 m²
1787 m²
2 szoba
Leírás
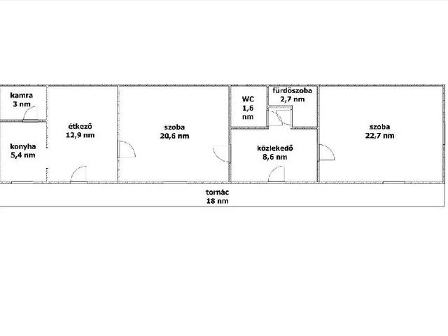
Fejér megye, Pázmánd 94,5 nm-es családi ház eladó. A vályog falazatú, felújítandó ingatlan egy 1787 nm-es telken helyezkedik el közel a település központjához. A telek két utcára nyílik, beépíthetősége 30 %. A tehermentes házban 2 szoba, konyha, étkező, kamra, fürdőszoba, külön WC található, valamint tartozik hozzá tornác, garázs, pince, szaletli, kerti sütögető és melléképületek. A fűtésről gázkonvektorok és egy hangulatos cserépkályha gondoskodik. Az összes közmű az ingatlanba bevezetve. Megvásárlásában rengeteg lehetőség rejlik, melyben ráfordítással és fantáziával egy hangulatos otthon alakíthat ki békés környezetben. Teljes körű ügyintézésben segítjük ügyfeleinket díjtalanul: kedvezményes hitel mobil bankári szolgáltatással, adásvétel teljes lebonyolításával.
Tulajdonságok
Családi ház
1
Felújítandó
Gáz (konvektor)
1960
Nem adta meg a hirdető
Vedd fel a kapcsolatot a hirdetővel
+36 20 487 4
Hitelkalkulátor
Második évtől
343 853 Ft A 13. hónaptól
7,99%
Végig fix Futamidő: 20 év Banki visszahívás
Az OTP Bank munkatársai a neked megfelelő napszakban veszik fel veled a kapcsolatot. A becslés a hirdető által megadott adatokon alapul. A jelen tájékoztatás nem minősül ajánlattételnek és nem teljes körű, az egyes feltételek a hitelbírálat eredményétől függően változhatnak. Kérjük, a részletekről tájékozódj az OTP Bank fiókjaiban vagy az OTP Bank honlapján közzétett vonatkozó Üzletszabályzatokból és Hirdetményekből.
Vedd fel a kapcsolatot a hirdetővel
+36 20 487 4
Vedd fel a kapcsolatot a hirdetővel
+36 20 487 4
UI_KIT.CHARACTER_COUNTER__COMPONENT.REMAINING_SPACE__SR_ONLYUI_KIT.CHARACTER_COUNTER__COMPONENT.MAXIMUM_CHARACTER__SR_ONLY
Hasonló eladó ingatlanok Pázmándon
Frissítve: 7 napja
18
80 M Ft 695 652 Ft/m²
Eladó családi ház, Pázmánd

Frissítve: 11 napja
18
80 M Ft 695 652 Ft/m²
Eladó családi ház, Pázmánd

Frissítve: 11 napja
18
80 M Ft 695 652 Ft/m²
Eladó családi ház, Pázmánd


Fedezd fel a
hasonló házakat!Még további házak Fejér megyében 79,9 M Ft körüli értékben
Tovább a hirdetésekhez Feltöltve: 3 napja
18
79,9 M Ft 850 000 Ft/m²
Eladó családi ház, Pázmánd

Feltöltve: 1 napja
18
79,9 M Ft 850 000 Ft/m²
Eladó családi ház, Pázmánd

Frissítve: 7 napja
15
79,9 M Ft 470 000 Ft/m²
Eladó családi ház, Iváncsa

