+17 fotó
Hirdetéskód: 8814237
Referenciaszám: 390299
Feltöltve: ma
Petrikeresztúr eladó családi ház 3 szobás: 59,99 millió Ft
59,99 millió Ft
593 960 Ft/m²
101 m²
5354 m²
3 szoba
Eladó családi ház Petrikeresztúr, 101nm, 59.990.000Ft - Csendes utcája
Teljes mértékben felújított, 5345 m2 - es területtel bíró 101 m2 - es tégla családi ház Zalaegerszegtől mindössze 18 kilométerre!
Irányára: 59.990.000 Ft
Petrikeresztúron vált eladóvá ez a saját részre igényesen felújított, azonnal költözhető állapotú családi ház, amely egy 5.354 m²-es, teljesen körbekerített területen fekszik.
A 101 m² hasznos alapterületű, porotherm téglából épült, vasbeton födémmel és Bramac tetővel ellátott otthon kiváló műszaki állapotban van, teljeskörű 10 cm vastag szigetelésének köszönhetően pedig rendkívül alacsony fenntartási költségeket biztosít.
Az épület melegéről egy korszerű, mindössze négy éve beszerelt gázkazán gondoskodik, melyből kifolyólag az átlagos havi gázfogyasztás csupán 7.500 forint körüli, az áramszámla hasonlóan alacsony összegű - mindössze 5.000 forint.
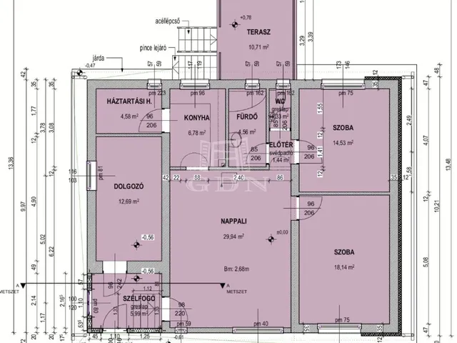
Praktikus elrendezésének köszönhetően egy tágas nappali, egy kényelmes konyha és hozzá tartozó kamra, kettő külön bejáratú szoba, egy fürdőkáddal felszerelt fürdőszoba, külön toalett, előszoba és egy dolgozó / műhely található benne.
A családi házhoz több hasznos melléképület is tartozik: egy 40 m²-es, tágas dupla garázs, egy 18 m²-es földpince, egy hangulatos, fedett kerti pihenő, valamint egy 15 m²-es fatároló.
A rendezett udvar bőtermő gyümölcsfákkal, gondozott zöldfelülettel és virágokkal díszített, a hatalmas terület pedig kiváló lehetőséget nyújt állattartásra vagy akár önellátó gazdálkodás kialakítására is.
A terület két helyrajzi számon található, így igény esetén a kisebb - 11 m - es utcafrontú belterületi rész a későbbiekben akár külön is értékesíthető vagy beépíthető.
Külön előny, hogy a vételár igény szerint magában foglal egy 2.100 m²-es akácos területet is, amely tovább növeli az ingatlan értékét és hasznosíthatóságát.
A cserépfedésű nyeregtető, a hőszigetelt műanyag nyílászárók, a biztonsági kamera mind - mind hozzájárulnak a kényelmes és biztonságos mindennapokhoz.
A településen hamarosan kiépítésre kerül a csatornahálózat is; jelenleg emésztő gondoskodik a szennyvízelvezetésről.
Petrikeresztúr tömegközlekedéssel könnyen megközelíthető, így az ingatlan ideális választás lehet akár családok számára, akár gazdálkodni vágyóknak, de igazából bárkinek, aki a város közelsége mellett szeretne nyugodt, természetközeli környezetben élni.
Az ingatlan tulajdoni lapjai per, teher -és igénymentesek, tulajdonviszonyai rendezettek.
Irányára: 59.990.000 Ft ...TOVÁBBI, TÖBBEZRES INGATLAN KÍNÁLAT: www.gdn-ingatlan.hu - GDN azonosító: 390299
Tulajdonságok
Családi ház
1
Felújított
Gázkazán
1988
11 m²
E
Vedd fel a kapcsolatot a hirdetővel
+36 30 812 9
Hitelkalkulátor
Második évtől
258 170 Ft A 13. hónaptól
7,99%
Végig fix Futamidő: 20 év Banki visszahívás
Az OTP Bank munkatársai a neked megfelelő napszakban veszik fel veled a kapcsolatot. A becslés a hirdető által megadott adatokon alapul. A jelen tájékoztatás nem minősül ajánlattételnek és nem teljes körű, az egyes feltételek a hitelbírálat eredményétől függően változhatnak. Kérjük, a részletekről tájékozódj az OTP Bank fiókjaiban vagy az OTP Bank honlapján közzétett vonatkozó Üzletszabályzatokból és Hirdetményekből.
Vedd fel a kapcsolatot a hirdetővel
+36 30 812 9
Vedd fel a kapcsolatot a hirdetővel
+36 30 812 9
UI_KIT.CHARACTER_COUNTER__COMPONENT.REMAINING_SPACE__SR_ONLYUI_KIT.CHARACTER_COUNTER__COMPONENT.MAXIMUM_CHARACTER__SR_ONLY
Hasonló eladó ingatlanok Petrikeresztúron
Frissítve: 28 napja
1
59,9 M Ft 486 992 Ft/m²
Eladó családi ház, Petrikeresztúr
Frissítve: 9 napja
20
64,49 M Ft 638 515 Ft/m²
Eladó családi ház, Petrikeresztúr
Frissítve: 29 napja
16
59,9 M Ft 593 069 Ft/m²
Eladó családi ház, Petrikeresztúr

Fedezd fel a
hasonló házakat!Még további házak Zala megyében 59,99 M Ft körüli értékben
Tovább a hirdetésekhez Frissítve: 9 napja
20
62,9 M Ft 262 083 Ft/m²
Eladó családi ház, Eszteregnye

Frissítve: 11 napja
20
55 M Ft 523 810 Ft/m²
Eladó családi ház, Zalaszentgrót
Frissítve: 5 napja
20
58 M Ft 527 273 Ft/m²
Eladó ikerház, Felsőpáhok

Töltsd fel hirdetésed ingyenesen!
Egyszerű
