+7 fotó
Hirdetéskód: 8977563
Referenciaszám: 698424209
Feltöltve: ma
Pilisborosjenő eladó családi ház 5+1 fél szobás: 190 millió Ft
190 millió Ft
1 187 500 Ft/m²
160 m²
755 m²
5+1 fél szoba
Hirdetünk ön helyett!
Az ingatlan vételárát közvetítői díj nem terheli, közvetlenül a tulajdonossal léphet kapcsolatba. Elérhetősége: Dicső Géza +36704335544
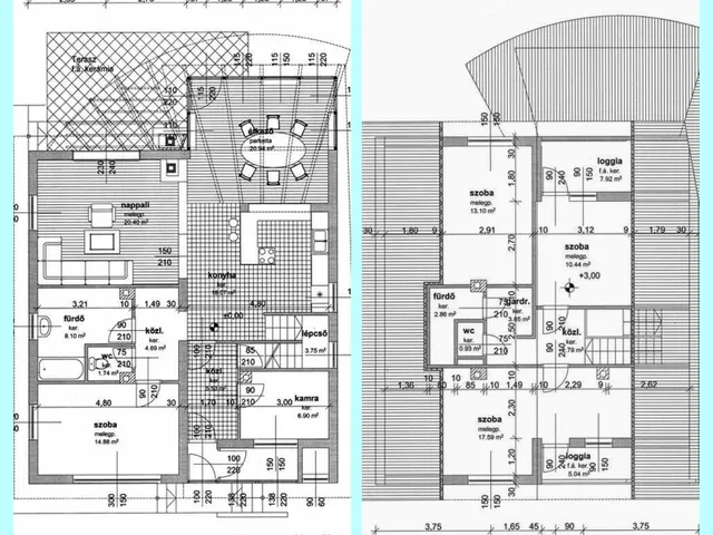
Pilisborosjenőnek Ürömhöz és Budapesthez (Péterhegy) közel eső részén, csendes aszfaltozott zsákutcában található 775 nm-es telken igazi rusztikus hangulatú, igényes családi ház eladó.
Főbb jellemzők:
180 négyzetméter lakótér gondozott kerttel, ideális nagy családnak és kikapcsolódásra.
3 Szintes épület sokoldalú tárolási és lakhatási lehetőséggel.
Nagy amerikai konyhás nappali: tágas, világos tér közös programokhoz, közvetlen kertkapcsolattal.
4 Kényelmes szoba: privát tér mindenkinek, praktikus elrendezéssel.
Kiváló elhelyezkedés Pilisborosjenőn: csendes, zöld környék, közel tömegközlekedéshez, iskolához, boltokhoz.
Energiatakarékos megoldások: H-tarifa, napelem.
Electrolux konyhagépek.
Bosch zárt égésterű kondenzációs kombikazán.
Locsolási vízmérő.
A ház 1982-ben épült, 2003-ban teljesen felújítottuk: a fűtést korszerűsítettük (gyakorlatilag mindent kicseréltünk), a nyílászárókat hőtakarékos thermo üveggel ellátott darabokra cseréltük, a földszinten kitágítottuk a nappalit összenyitva a konyhával és az étkezővel. Ezzel együtt a villamos vezetékek cseréjét, a lakótér bővítését és újra burkolását is elvégeztük. 2020-ban a cirkót zárt égésterű Bosch kondenzációs kombikazánra cseréltük.
A közel 60 nm-es, kertkapcsolatos nappali-étkező-konyha egy légterű, harmónia és meleg színek jellemzik, a barátságos otthon hangulatát tovább fokozza a szép kivitelezésű, működő kandalló. Ugyanitt H-tarifás hűtő-fűtő klíma van 2024 óta. a konyha Electrolux gépekkel: beépített hűtő, mosogatógép, gáz főzőlap, elektromos sütő. a földszinten található még 1 hálószoba, fürdőszoba, külön wc, gardrób/kamra szoba és tükrös beépített gardrób szekrények.
A felső szinten 3 hálószoba és fürdőszoba-WC található. A fürdő mellett kapott helyet egy kétszemélyes finn szauna is, mely jól illeszkedik a belső térbe. A tetőtér felett beépített, szigetelt, fűthető, parkettázott és napfényes padlástér - mely nem számít bele a hivatalos alapterületbe - gyerekeknek, kamaszoknak ideális kuckót lehet berendezni itt, de egyéb használatra is alkalmas.
A ház mellett zárt garázs (szerelőaknával) és fedett beálló; a behajtón további 1-3 gépkocsi parkolhat. a tetőn 2023-ban telepített, szaldó elszámolásos napelem dolgozik.
A kertben játékra, sportra alkalmas gyep, gyümölcsfák és kertépítész által tervezett önfenntartó pihenőkert van sütögetővel, hintaszékekkel. a telek végében kis patak fut, vize öntözésre alkalmas, de a kerti növényeket locsolási vízmérőre kötött csepegtetős automata rendszer is táplálja.
A ház alatt egy kisebb pince található, barkácsoláshoz, bortároláshoz kiváló, a felső szinten a hálószobákhoz fedett terasz tartozik.
A környezet:
Pilisborosjenő csendes zsákfalu, mégis közel a főváros. a háztól 5 perc sétára a 218-as (Árpád híd budai hídfőhöz, HÉV-hez) és a 840-es buszmegálló(az Árpád híd pesti hídfőhöz, metróhoz). Iskola 10 perc gyalog. Autóval 5 percre lidl található, 15 perc Óbuda.
A háztól 10 perc sétára erdők, mezők, futópálya, lovarda, természetvédelmi terület, kirándulóhelyek találhatók. a Teve szikla és az Egri csillagok forgatási helyszíne is kedvelt célpont.
Hirdetünk ön helyett is!
Eladná, vagy bérbe adná ingatlanát, de az ideje drágább, és se kedve, se ideje, se energiája nincs hirdetésének folyamatos frissítésére, megújítására, karbantartására?
Próbálja ki kényelmi szolgáltatásunkat:
- több, ismert és az érdeklődők által látogatott portálon
- rendszeres frissítésekkel,
- és képekkel hirdetünk ön helyett úgy, hogy az érdeklődő közvetlenül önnel kerül kapcsolatba, értékesítés esetén nem kell jutalékot vagy bármilyen sikerdíjat fizetnie.
Tulajdonságok
Családi ház
2
Felújított
Gázkazán
1982
Nem adta meg a hirdető
Van
Vedd fel a kapcsolatot a hirdetővel
+36 70 433 5
Hitelkalkulátor
Második évtől
817 673 Ft A 13. hónaptól
7,99%
Végig fix Futamidő: 20 év Banki visszahívás
Az OTP Bank munkatársai a neked megfelelő napszakban veszik fel veled a kapcsolatot. A becslés a hirdető által megadott adatokon alapul. A jelen tájékoztatás nem minősül ajánlattételnek és nem teljes körű, az egyes feltételek a hitelbírálat eredményétől függően változhatnak. Kérjük, a részletekről tájékozódj az OTP Bank fiókjaiban vagy az OTP Bank honlapján közzétett vonatkozó Üzletszabályzatokból és Hirdetményekből.
Vedd fel a kapcsolatot a hirdetővel
+36 70 433 5
Vedd fel a kapcsolatot a hirdetővel
+36 70 433 5
UI_KIT.CHARACTER_COUNTER__COMPONENT.ACTUAL_CHARACTER__SR_ONLY UI_KIT.CHARACTER_COUNTER__COMPONENT.MAXIMUM_CHARACTER__SR_ONLY
Hasonló eladó ingatlanok Pilisborosjenőn
Frissítve: 13 napja
5
175 M Ft 1 250 000 Ft/m²
Eladó ikerház, Pilisborosjenő
Frissítve: 13 napja
20
190 M Ft 1 187 500 Ft/m²
Eladó családi ház, Pilisborosjenő
Frissítve: 13 napja
10
190 M Ft 760 000 Ft/m²
Eladó családi ház, Pilisborosjenő


Fedezd fel a
hasonló házakat!Még további házak Pest megyében 190 M Ft körüli értékben
Tovább a hirdetésekhez Frissítve: 13 napja
10
205,5 M Ft 1 397 959 Ft/m²
Eladó családi ház, Pilisborosjenő
Frissítve: 13 napja
8
175 M Ft 1 377 953 Ft/m²
Eladó ikerház, Pilisborosjenő

Feltöltve: 6 hónapja
1
199,8 M Ft 1 141 713 Ft/m²
Eladó ikerház, Pilisborosjenő
