+5 fotó
Hirdetéskód: 8943956
Referenciaszám: 698423877
Feltöltve: 1 napja
Pomáz eladó családi ház 10 szobás: 242,8 millió Ft
242,8 millió Ft
1 074 336 Ft/m²
226 m²
803 m²
10 szoba
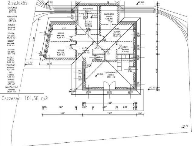
Pomázon a Meselia déli oldalában, csendes környezetben egy szintes, két önálló lakással rendelkező családi ház eladó.
Pomázon a Meselia déli oldalában, csendes környezetben egy szintes, két önálló lakással rendelkező családi ház eladó.
Az építéssel kapcsolatos paraméterek:
- Tervezett átadás: a szerződést követő egy éven belül
- hőszivattyús fűtés, padlófűtéssel, radiátorokkal
- magas minőségű hőszigetelés, ZÖLD hitelnek megfelelő energetikai besorolás
- több rétegű, műanyag nyílászárók
- választható belső burkolatok, szaniterek
- riasztó rendszer előkészítés
- 30 nm-es, az amerikai konyhás nappalihoz kapcsolódó terasz
- durva tereprendezés
- kulcsrakész átadás
Finanszírozási lehetőség:
- Zöld hitel kompatibilitás
- CSOK, hitel, illeték mentesség, Áfa visszatérítés igényelhető.
- Az alaprajz igény szerint még módosítható.
A beruházó a környék elismert építési vállalkozója, rengeteg referenciamunkával rendelkezik.
Tulajdonságok
Családi ház
1
Építés alatt
Hőszivattyú
2025
Nem adta meg a hirdető
Vedd fel a kapcsolatot a hirdetővel
02. Tóth Helga - Hirdetünk ön helyett! Körültekintő Ingatlan - Hirdetünk ön helyett! Az iroda összes hirdetése
+36 30 255 5
Hitelkalkulátor
Második évtől
1 044 901 Ft A 13. hónaptól
7,99% 8,49%
Végig fix Futamidő: 20 év Banki visszahívás
Az OTP Bank munkatársai a neked megfelelő napszakban veszik fel veled a kapcsolatot. A becslés a hirdető által megadott adatokon alapul. A jelen tájékoztatás nem minősül ajánlattételnek és nem teljes körű, az egyes feltételek a hitelbírálat eredményétől függően változhatnak. Kérjük, a részletekről tájékozódj az OTP Bank fiókjaiban vagy az OTP Bank honlapján közzétett vonatkozó Üzletszabályzatokból és Hirdetményekből.
Vedd fel a kapcsolatot a hirdetővel
02. Tóth Helga - Hirdetünk ön helyett! Körültekintő Ingatlan - Hirdetünk ön helyett! Az iroda összes hirdetése
+36 30 255 5
Vedd fel a kapcsolatot a hirdetővel
02. Tóth Helga - Hirdetünk ön helyett! Körültekintő Ingatlan - Hirdetünk ön helyett! Az iroda összes hirdetése
+36 30 255 5
UI_KIT.CHARACTER_COUNTER__COMPONENT.ACTUAL_CHARACTER__SR_ONLY UI_KIT.CHARACTER_COUNTER__COMPONENT.MAXIMUM_CHARACTER__SR_ONLY
Hasonló eladó ingatlanok Messelia városrészben
Frissítve: 7 hónapja
1
240 M Ft 369 798 Ft/m²
Eladó családi ház, Pomáz, Messelia, Víztározó utca
Feltöltve: 5 hónapja
1
220 M Ft 1 047 619 Ft/m²
Eladó családi ház, Pomáz, Messelia
Feltöltve: 5 napja
8
242,8 M Ft 1 074 336 Ft/m²
Eladó családi ház, Pomáz, Messelia

Fedezd fel a
hasonló házakat!Még további házak Pest megyében 242,8 M Ft körüli értékben
Tovább a hirdetésekhez Frissítve: 30 napja
16
220 M Ft 730 897 Ft/m²
Eladó családi ház, Pomáz
Feltöltve: 9 hónapja
1
265 M Ft 803 030 Ft/m²
Eladó családi ház, Pomáz
Feltöltve: 1 hónapja
18
239 M Ft 1 927 419 Ft/m²
Eladó családi ház, Pomáz
