+17 fotó
Hirdetéskód: 8844030
Referenciaszám: HZ027061-5117587
Feltöltve: 1 napja
Ráckeve eladó családi ház 4 szobás: 99,9 millió Ft
99,9 millió Ft
616 667 Ft/m²
162 m²
507 m²
4 szoba
Eladó ház, Ráckeve
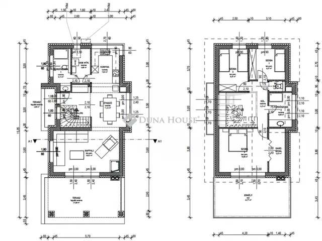
Álomotthon ahol minden nap nyaralás!Egyedülálló élmény a Ráckevei Duna-parton! 109m2-es hasznos alapterületű Önálló újépítésű nyaraló saját stéggel, örökpanorámával az emeleti teraszról!Itt minden reggel egy új kaland kezdete, és minden este egy romantikus mesébe csöppenhet bele. A természet szerelmesei és az otthon melege iránt vágyakozók egyaránt megtalálják itt számításaikat.Az ingatlan tökéletes harmóniát teremt az otthon melegségével és a modern technológia kényelmével. Szívében egy kifinomult kandalló biztosítja az otthon melegét, míg a tágas terek és a gondosan tervezett belső kialakítás minden igényt kielégít.Ingatlan Helyiségei:Két szinten helyezkednek el, mindkét szinten különböző funkciójú és kényelmet biztosító helyiségek.Földszint:Előszoba, fürdő wc-vel, amerikai konyhás nappali, mely hatalmas ablakaival igazi természetközeli élményt nyújt. A nappali teraszkapcsolatos mely a 28m2-es méretével családi összejövetelek és a pihenés színtere lehet. Ezen a szinten kapott helyet a háztartási helyiség/kamra is.Emelet:3 hálószobával és egy fürdő-wc-vel kellően kényelmes állandó lakhatásra is, de ha csak hétvégente élvezzük az otthont akkor vendégül láthatjuk a családot vagy a barátokat.A családi hálószobából nyílik egy csodálatos panorámás 23m2-es erkély, ahol a reggeli kávé igazi élmény lesz.Műszaki jellemzők:Az 507m2-es telek víz,villany és csatornahálózattal ellátott.Tégla építésBetonfödém szigetelveTerrán cserépfedés6 légkamrás színes műanyag nyílászárók 1.0-ás hőszigetelt üvegezéssel, vakolhatótokos elektromos redőnnyel. Külső színes lemezpárkény, belső műkő párkányokkal. Tetőtéri ablakok 1.0-ás 3 rétegű. Belső válaszfalajtók dekor fóliás stand-door mdf szerkezet, szín választható (tele ajtó) 80.000.-Ft-ig/db.Víz, csatorna, H-tarifás villanyóra, elektromos felszálló vezetékek a telken lévő közműhálózatra való csatlakozással. 4 db 150.000.-Ft/db értékű fan-coil amely tartalmazza a szerelési díjat is.Hőszivattyú: 1 db Hajdú típusú levegő-víz hőszivattyú, puffertárolóval, indirekt tárolóval 2.000.000.-FtKertépítés: Durva tereprendezés. viacolor járda, gépkocsibeálló 7.000.-Ft/nmKerítés: Utca fronton zsalukő kerítés deszka borítással, elektromos tolókapu, kiskapuKét ház közti kerítés: 1 sor zsalukő, táblás kerítéselemmel.Fürdőszoba: Földszinti: 1 db épített zuhany csapteleppel 100.000.-Ft, 1 db fehér mosdó, szifonnal, sarokszeleppel mosdó csaptelep 100.000.-Ft, 1db Geberit WC 100.000.-FtEmeleti fürdőszoba + WC: 1 db épített zuhany csapteleppel 100.000.-Ft, 1 db fehér mosdó, szifonnal, sarokszeleppel mosdó csaptelep 100.000.-Ft, 1db Geberit WC 100.000.-FtKerti csapHideg burkolás: A vevő a padlólapokat és csempéket kiválaszthatja 10.000.-Ft/nm ár-ig, amennyiben a burkolat ára magasabb, úgy azt a különbözetet többletként kell megfizetni.Meleg burkoló munkálatok: Választható laminált parketta elhelyezését tartalmazza az ár bruttó 10.000.-Ft/nm árig habszivaccsal, szegélyléccel. A megrendelő többféle szín közül választhatja ki a neki legjobban megfelelőt: tölgy, bükk, juhar, cseresznye stb.A belső látványtervek tájékoztató jellegűek kérésre készítünk saját elképzelés alapján.Az építtető megbízható kivitelező referencia munkákkal rendelkezik, bátran jöjjenek és nézzék meg személyesen a helyszínt.Elhelyezkedés:Álmai otthona karnyújtásnyira a Duna parttól a Somlyó szigeten helyezkedik el. Az ingatlan és a sétány között csupán egy telek helyezkedik el. Ráckeve városközpontja 10perces autóútra van.Részletes műszaki leírás és személyes megtekintés miatt keressenek bizalommal!
Érdeklődni :Mózes Krisztina 06703603119
Tulajdonságok
Családi ház
Új építésű
Hőszivattyú
2024
Nem adta meg a hirdető
Vedd fel a kapcsolatot a hirdetővel
+36 24 814 3
Hitelkalkulátor
Második évtől
429 924 Ft A 13. hónaptól
7,99% 8,49%
Végig fix Futamidő: 20 év Banki visszahívás
Az OTP Bank munkatársai a neked megfelelő napszakban veszik fel veled a kapcsolatot. A becslés a hirdető által megadott adatokon alapul. A jelen tájékoztatás nem minősül ajánlattételnek és nem teljes körű, az egyes feltételek a hitelbírálat eredményétől függően változhatnak. Kérjük, a részletekről tájékozódj az OTP Bank fiókjaiban vagy az OTP Bank honlapján közzétett vonatkozó Üzletszabályzatokból és Hirdetményekből.
Vedd fel a kapcsolatot a hirdetővel
+36 24 814 3
Vedd fel a kapcsolatot a hirdetővel
+36 24 814 3
UI_KIT.CHARACTER_COUNTER__COMPONENT.REMAINING_SPACE__SR_ONLYUI_KIT.CHARACTER_COUNTER__COMPONENT.MAXIMUM_CHARACTER__SR_ONLY
Hasonló eladó ingatlanok Ráckevén
Frissítve: 16 napja
14
99,9 M Ft 740 000 Ft/m²
Eladó családi ház, Ráckeve

Frissítve: ma
16
96 M Ft 266 667 Ft/m²
Eladó családi ház, Ráckeve

Frissítve: 13 napja
20
96 M Ft 400 000 Ft/m²
Eladó családi ház, Ráckeve, Duna közeli utca


Fedezd fel a
hasonló házakat!Még további házak Ráckevén 99,9 M Ft körüli értékben
Tovább a hirdetésekhez Frissítve: 19 napja
16
96 M Ft 266 667 Ft/m²
Eladó családi ház, Ráckeve, Keszeg sor

Frissítve: 6 napja
16
99,9 M Ft 999 000 Ft/m²
Eladó családi ház, Ráckeve
Frissítve: 10 napja
14
97,5 M Ft 716 912 Ft/m²
Eladó ikerház, Ráckeve

