

+11 fotó
Hirdetéskód: 8758080
Referenciaszám: M309015-5067671
Feltöltve: ma
Sárkeresztes eladó családi ház 4 szobás: 64,9 millió Ft
64,9 millió Ft
791 463 Ft/m²
82 m²
650 m²
4 szoba
Eladó Ház, Sárkeresztes
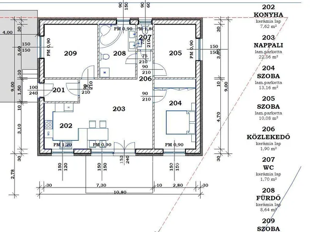
Fejér megye gyönyörű Sárkeresztes településén kínáljuk eladásra ezt az új építésű, modern családi házat, amely ideális otthon lehet két gyermekes családok számára. FALUSI CSOK igényelhető, így akár 7,5M Ft vissza nem térítendő támogatás igénybe vehető két gyermek után! A 650 nm-es telken a nettó 82 nm-es ingatlan egy tágas, fiatalos környezetet nyújt, amely kényelmet és funkcionalitást ötvöz. A ház három hálószobával, egy tágas fürdőszobával és külön WC-vel rendelkezik, így elegendő helyet biztosít a növekvő családnak. Az amerikai konyhás nappali és étkező teret teremt a közös időtöltéshez és a családi összejövetelekhez. Az ingatlan a legújabb energetikai elvárásoknak megfelelően épül, így a 15 centis grafitos szigetelés, a műanyag nyílászárók, valamint a napelem és az elektromos fűtés (hőszivattyú akár) garantálja a kedvező rezsit, amely fontos szempont lehet egy fiatal család számára. Az ingatlantól 5 perc sétára megtalálható iskola, patika, orvosi rendelő, így az elhelyezkedése kíváló! Az építkezést megbízható, leinformálható kivitelező végzi, akinek több évtizedes tapasztalata biztosítja az ingatlan minőségét és megbízhatóságát. Szerződéskötéstől számított 6-7 hónap a tervezett átadás. Ha bármilyen kérdése merülne fel az ingatlannal kapcsolatban, ne habozzon felvenni velünk a kapcsolatot, akár hétvégén is! Ügyfeleink teljes körű támogatást kapnak az adásvétel lebonyolításában, és egyedi kamatkedvezményeket biztosítunk hitelügyeikhez. Ne habozzon, ez az otthon lehet az önök családi álma! Vegye fel velünk a kapcsolatot még ma, és lépjenek közelebb álmaik otthonához!
Tulajdonságok
Családi ház
Új építésű
Elektromos
2025
Nem adta meg a hirdető
Vedd fel a kapcsolatot a hirdetővel
+36 30 259 2
Hitelkalkulátor
Második évtől
279 300 Ft A 13. hónaptól
7,99% 8,49%
Végig fix Futamidő: 20 év Banki visszahívás
Az OTP Bank munkatársai a neked megfelelő napszakban veszik fel veled a kapcsolatot. A becslés a hirdető által megadott adatokon alapul. A jelen tájékoztatás nem minősül ajánlattételnek és nem teljes körű, az egyes feltételek a hitelbírálat eredményétől függően változhatnak. Kérjük, a részletekről tájékozódj az OTP Bank fiókjaiban vagy az OTP Bank honlapján közzétett vonatkozó Üzletszabályzatokból és Hirdetményekből.
Vedd fel a kapcsolatot a hirdetővel
+36 30 259 2
Vedd fel a kapcsolatot a hirdetővel
+36 30 259 2
UI_KIT.CHARACTER_COUNTER__COMPONENT.REMAINING_SPACE__SR_ONLYUI_KIT.CHARACTER_COUNTER__COMPONENT.MAXIMUM_CHARACTER__SR_ONLY
Hasonló eladó ingatlanok Sárkeresztesen
Frissítve: 28 napja

13
64,9 M Ft 790 500 Ft/m²
Eladó családi ház, Sárkeresztes

Frissítve: 2 napja

13
64,9 M Ft 791 463 Ft/m²
Eladó családi ház, Sárkeresztes

Frissítve: 28 napja

16
64,9 M Ft 720 231 Ft/m²
Eladó családi ház, Csór


Fedezd fel a
hasonló házakat!Még további házak Fejér megyében 64,9 M Ft körüli értékben
Tovább a hirdetésekhez Frissítve: 29 napja

20
63 M Ft 503 992 Ft/m²
Eladó családi ház, Pákozd

Frissítve: 29 napja

10
68 M Ft 850 000 Ft/m²
Eladó családi ház, Székesfehérvár

Frissítve: 28 napja

16
64,9 M Ft 720 231 Ft/m²
Eladó családi ház, Csór


Töltsd fel hirdetésed ingyenesen!
Egyszerű