

+18 fotó
Hirdetéskód: 8719896
Referenciaszám: M312010
Feltöltve: 10 napja
Sátoraljaújhely eladó családi ház 3 szobás: 30,9 millió Ft
30,9 millió Ft
347 192 Ft/m² *
* A m² árat a hirdető adta meg.
89 m²
500 m²
3 szoba
Leírás
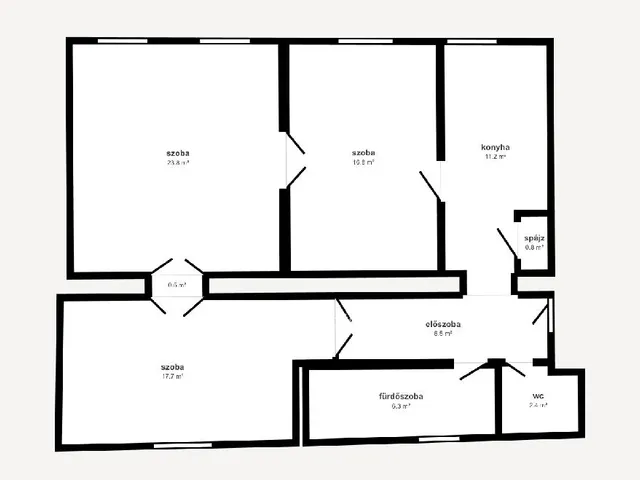
Eladó egy statikailag kifogástalan állapotú, 3 szobás családi ház Sátoraljaújhely kertvárosi részén. A kőből és téglából épült 89 nm-es ingatlanhoz egy 500 m2-es telek is tartozik. A házat 2010-ben teljeskörűen felújították, mely a következő dolgokat foglalta magában: új cserepes tetőszerkezet, lécezés , az ingatlan külső része pedig egy 8 cm vastag szigetelést kapott. A hideg és melegburkolatok (laminált padló + járólapra) szintén cserélve lettek a nyílászárókkal valamint a belső ajtókkal egyetemben. A fűtésről gázkonvektorok , illetve 2 db kiváló állapotú cserépkályha gondoskodik, míg a melegvizet villanybojler biztosítja. Az eredeti belmagasságot 2,8 méterre csökkentették, így rendkívül gazdaságossá vált az ingatlan fűtése a téli szezonban is. A rendezett, térkövezett udvaron egy különálló, téglából épült garázs is található, az utcafrontra pedig egy kovácsoltvas kapu került kialakításra. Az udvaron található egy másik, jelenleg nem lakott épület is külön helyrajzi számon, mely jelképes összegért szintén megvásárolható. Családosoknak valamint egyedülállóknak egyaránt ajánlom ezt az ingatlant, amennyiben pár percre a belvárostól, ám mégis távol a város zajától, nyugodt, kertvárosi környezetben képzelik el a mindennapjaikat. Az ingatlan megfelel az Otthon Start 3%-os hitel feltételeinek. Jöjjön és tekintsük meg együtt! Banki hátterünknek köszönhetően finanszírozási kérdésekben ( CSOK, FALUSI CSOK, OTTHON START,BABAVÁRÓ) is állunk ügyfeleink rendelkezésére. Hívása során hivatkozzon az M312010-es referenciaszámra!
Tulajdonságok
Családi ház
1
Átlagos
Gáz (konvektor)
1911
Nem adta meg a hirdető
Vedd fel a kapcsolatot a hirdetővel
Spéth Gábor György Miskolc Szemere Bertalan utca 20 - OTP Ingatlanpont Iroda Az iroda összes hirdetése
+36 20 361 5
Hitelkalkulátor
Második évtől
132 980 Ft A 13. hónaptól
7,99%
Végig fix Futamidő: 20 év Banki visszahívás
Az OTP Bank munkatársai a neked megfelelő napszakban veszik fel veled a kapcsolatot. A becslés a hirdető által megadott adatokon alapul. A jelen tájékoztatás nem minősül ajánlattételnek és nem teljes körű, az egyes feltételek a hitelbírálat eredményétől függően változhatnak. Kérjük, a részletekről tájékozódj az OTP Bank fiókjaiban vagy az OTP Bank honlapján közzétett vonatkozó Üzletszabályzatokból és Hirdetményekből.
Vedd fel a kapcsolatot a hirdetővel
Spéth Gábor György Miskolc Szemere Bertalan utca 20 - OTP Ingatlanpont Iroda Az iroda összes hirdetése
+36 20 361 5
Vedd fel a kapcsolatot a hirdetővel
Spéth Gábor György Miskolc Szemere Bertalan utca 20 - OTP Ingatlanpont Iroda Az iroda összes hirdetése
+36 20 361 5
UI_KIT.CHARACTER_COUNTER__COMPONENT.REMAINING_SPACE__SR_ONLYUI_KIT.CHARACTER_COUNTER__COMPONENT.MAXIMUM_CHARACTER__SR_ONLY
Hasonló eladó ingatlanok Sátoraljaújhelyen
Frissítve: 11 napja

20
31,5 M Ft 454 545 Ft/m²
Eladó családi ház, Sátoraljaújhely, Tokaji Ferenc utca

Frissítve: 9 napja

19
29,9 M Ft 169 886 Ft/m²
Eladó családi ház, Sátoraljaújhely

Frissítve: 4 napja

11
31 M Ft 221 429 Ft/m²
Eladó családi ház, Szentistván


Fedezd fel a
hasonló házakat!Még további házak Borsod-Abaúj-Zemplén megyében 30,9 M Ft körüli értékben
Tovább a hirdetésekhez Frissítve: 4 napja

12
31 M Ft 364 706 Ft/m²
Eladó családi ház, Szentistván

Frissítve: 2 napja

13
31,5 M Ft 420 000 Ft/m²
Eladó családi ház, Edelény
Frissítve: 10 napja

16
29 M Ft 353 659 Ft/m²
Eladó családi ház, Tokaj

Töltsd fel hirdetésed ingyenesen!
Egyszerű