

+13 fotó
Zenga
Premier
Hirdetéskód: 8755649
Referenciaszám: H508633
Feltöltve: ma
Solymár eladó családi ház 8 szobás: 230 millió Ft
230 millió Ft
851 852 Ft/m²
270 m²
562 m²
8 szoba

Friss hirdetések, amiket nem találsz meg más ingatlankereső portálon.
Fedezd fel elsőként a Zenga Premier címkés eladó ingatlanokat! További részletek A Duna House, OTP Ingatlanpont, Otthon Centrum és további hálózatok új, kizárólagos hirdetéseinek nagy részét a zenga.hu és koltozzbe.hu ingatlankeresőn láthatod legelőször, és a feltöltéstől két hétig nem érhetők el más ingatlankeresőn!
Egy otthon, ami minden részletében rólad szól.
Találd meg OTTHONOD!
Egy hely, ahol minden részlet rólad szól.
Ez az ingatlan nemcsak szép, hanem átgondolt, praktikus, és minden részletében otthonos.
Egy panorámás ház, amit szeretettel építettek, igényesen karbantartottak, és ahol a természet közelsége találkozik a kényelemmel.
Ha eleged van a város zajából, de nem akarsz lemondani a kényelmes mindennapokról, akkor ez a ház neked való!
________________________________________
Főbb adatok:
•Helyszín: Solymár, Pest vármegye
•Telek: 562 m²
•Bruttó alapterület: 316,93 m² + kb. 30 m² padlás
•Zöldfelület: 325 m² (kb. 61%)
•Építés éve: 2001
•Szerkezet: 38-as Porotherm tégla, vasbeton födém
•Tető: prémium minőségű cserép
•Fűtés: gáz cirkó + hűtő-fűtő klíma mindkét szinten
•Szintek száma: 3
•Garázs: kétállásos (40 m²), közvetlen bejárattal a házba
________________________________________
Részletes leírás:
Az ingatlan 2001-ben saját részre, kiemelten gondos kivitelezéssel épült. A ház körbe 15 cm grafitos szigetelést, új homlokzatfestést és 2017-ben modern műanyag nyílászárókat kapott alumínium redőnyökkel. A padlás szigetelt és 2018-ban tárolóként kialakítva.
Belső felújítások:
•2018: új laminált padló az emeleten, teljesen megújult fürdő és WC
•2024: új IKEA konyha beépített gépekkel, vízálló laminált parketta a nappaliban
•Új padló a lenti szobában is
A ház folyamatosan karbantartott, újszerű állapotban van, beköltözésre kész.
________________________________________
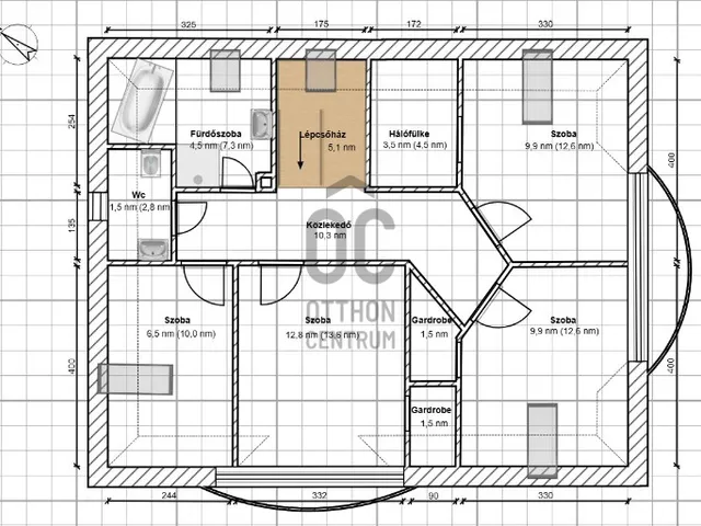
Elrendezés:
Emelet:
•3 szoba (mindegyikhez saját gardrób és erkély)
•1 félszoba
•Fürdő, külön WC, folyosó
Alsó szint:
•Amerikai konyhás nappali (teraszkapcsolattal)
•Spájz, fürdő (kád + zuhany), külön WC
•1 szoba
Szuterén:
•2 szoba és egy jelenleg tornateremként használt helyiség
•Mosókonyha, fürdő, WC, raktár
•Külön lakás is kialakítható ebből a szintből
Garázs:
Duplaállásos, 40 m²-es, a terasz alatt, közvetlen bejárattal a házba. A garázs előtt térkövezett rész, több autó is kényelmesen elfér, és a zsákutcás kialakítás miatt, csendes környék.
________________________________________
Környezet és panoráma:
A ház zsákutcában található, csak az jár erre, aki itt lakik – nyugodt, családias környék, barátságos szomszédokkal.
Örök panoráma nyílik a Les-hegyre, a környék már teljesen beépült, így ez a kilátás garantáltan megmarad.
A kert kényelmes méretű, ahol van lehetőség pihenni, kertészkedni vagy játszani.
A 40 m²-es terasz 2018-ban új burkolatot kapott, kőhatású lapokkal – innen is panorámás kilátás nyílik, tökéletes hely egy reggeli kávéhoz vagy esti borozáshoz.
________________________________________
Közlekedés és elhelyezkedés:
Az utca végéből indul a kék busz, így a tömegközlekedés kiváló, de autóval is pár perc alatt elérhető a főút vagy az M0.
A környék elragadó, nyugodt, és minden megtalálható a közelben: boltok, óvoda, iskola, túra- és bicikliutak, éttermek.
________________________________________
Ez a ház tényleg otthon – szeretettel épült, folyamatosan karbantartott, és most új tulajdonosát várja.
Ha egy olyan helyet keresel, ahol a modern kényelem és a természet közelsége tökéletes harmóniában van,
LE NE MARADJ! Győződj meg személyesen – keress bátran!
Tulajdonságok
Családi ház
Gázkazán
2001
44,7 m²
Nem adta meg a hirdető
Vedd fel a kapcsolatot a hirdetővel
+36 70 435 2
Hitelkalkulátor
Második évtől
989 815 Ft A 13. hónaptól
7,99%
Végig fix Futamidő: 20 év Banki visszahívás
Az OTP Bank munkatársai a neked megfelelő napszakban veszik fel veled a kapcsolatot. A becslés a hirdető által megadott adatokon alapul. A jelen tájékoztatás nem minősül ajánlattételnek és nem teljes körű, az egyes feltételek a hitelbírálat eredményétől függően változhatnak. Kérjük, a részletekről tájékozódj az OTP Bank fiókjaiban vagy az OTP Bank honlapján közzétett vonatkozó Üzletszabályzatokból és Hirdetményekből.
Vedd fel a kapcsolatot a hirdetővel
+36 70 435 2
Vedd fel a kapcsolatot a hirdetővel
+36 70 435 2
UI_KIT.CHARACTER_COUNTER__COMPONENT.REMAINING_SPACE__SR_ONLYUI_KIT.CHARACTER_COUNTER__COMPONENT.MAXIMUM_CHARACTER__SR_ONLY
Hasonló eladó ingatlanok Solymáron
Frissítve: 21 napja

20
209,9 M Ft 540 979 Ft/m²
Eladó családi ház, Solymár
Frissítve: 27 napja

8
239 M Ft 199 167 Ft/m²
Eladó családi ház, Solymár
Frissítve: 14 napja

1
215 M Ft 1 720 000 Ft/m²
Eladó családi ház, Solymár

Fedezd fel a
hasonló házakat!Még további házak Pest megyében 230 M Ft körüli értékben
Tovább a hirdetésekhez Frissítve: 27 napja

20
251,9 M Ft 1 259 500 Ft/m²
Eladó családi ház, Solymár

Frissítve: 12 hónapja

1
600 503 Euro
234,8 M Ft 183 434 Ft/m²
Eladó családi ház, Solymár, Bécsi út 5.
Feltöltve: 12 hónapja

1
600 503 Euro
234,8 M Ft 183 434 Ft/m²
Eladó családi ház, Solymár

Töltsd fel hirdetésed ingyenesen!
Egyszerű