+11 fotó
Hirdetéskód: 8894488
Referenciaszám: HZ072819-5152282
Frissítve: ma
Sülysáp eladó családi ház 5 szobás: 72,9 millió Ft
72,9 millió Ft
607 500 Ft/m²
120 m²
1151 m²
5 szoba
Eladó ház, Sülysáp
SÜLYSÁP KEDVELT, FREKVENTÁLT RÉSZÉN ÚJ ÉPÍTÉSŰ, 4 SZOBÁS OTTHON SAJÁT, HATALMAS KERTTEL!
ELSŐ ingatlan = maximális nyugalom és intimitás!
Sülysáp csendes utcájában, egy 1151 m²-es telken kínálok megvételre egy nettó 100 m²-es, modern kialakítású, kiváló elosztású új építésű otthont.
A ELSŐ lakáshoz 550 m² kizárólagos használatú kert tartozik itt tényleg megvalósíthatja elképzeléseit: medence, grillterasz, játszótér a gyerekeknek vagy akár mobilgarázs is kényelmesen elfér.
IDŐTÁLLÓ MŰSZAKI TARTALOM AMIRE HOSSZÚ TÁVON IS SZÁMÍTHAT
30 cm-es nútféderes tégla falazat
15 cm homlokzati szigetelés
10 cm Austrotherm padlószigetelés
25 cm ásványgyapot födémszigetelés
Antracit betoncserép fedés
6 légkamrás, 3 rétegű üvegezésű nyílászárók
Minőség, ami nem csak ma, hanem évek múlva is értéket képvisel.
MODERN, ENERGIATAKARÉKOS MEGOLDÁSOK
10 kW-os monoblokkos hőszivattyú
Teljes körű padlófűtés
Alacsony rezsi, korszerű technológia, kényelmes hőérzet.
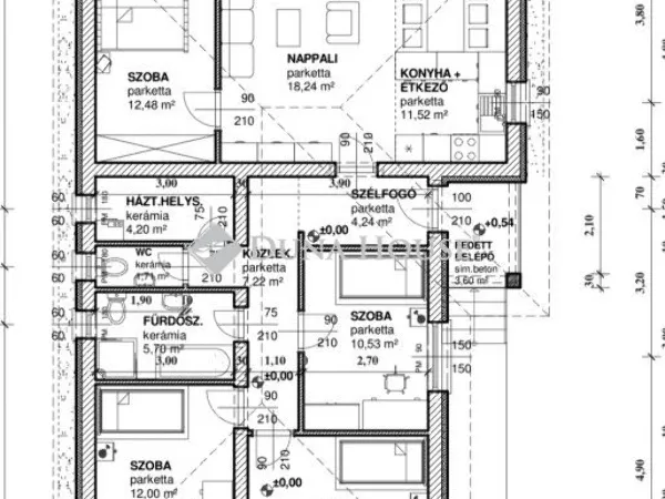
ÁTGONDOLT, CSALÁDBARÁT ELRENDEZÉS
4 külön nyíló, tágas szoba
Amerikai konyhás nappali
Fürdőszoba + külön WC
Külön háztartási helyiség
17 m²-es nyitott terasz
Világos, élhető terek, jól bútorozható alaprajz.
SZEMÉLYRE SZABHATÓ BEFEJEZÉS
A burkolatok és szaniterek az alábbi költségkereten belül választhatók:
Burkolatok: 3.000 Ft/m²-ig
Csaptelepek: 15.000 Ft/db
Kád vagy zuhany: 40.000 Ft
Beltéri ajtók: 35.000 Ft/db
Falsík mögötti WC rendszer
Igény esetén magasabb kategória is elérhető, ráfizetéssel.
KORSZERŰ ELEKTROMOS KIÉPÍTÉS
Szobánként 3-3 konnektor
Nappaliban 4 konnektor + internet + kábel TV
Konyhában 6 konnektor
Helyiségenként világítási kiállás
Riasztó- és kapumozgató előkészítés
MEGBÍZHATÓ, TAPASZTALT KIVITELEZŐ
A kivitelező Kókán több mint 20 ingatlant épített.
Referenciaházak komoly érdeklődés esetén megtekinthetők!
Várható átadás: 2026. Szeptember
Ha egy modern, energiatakarékos, saját kerttel rendelkező új otthont keres Sülysápon, ezt érdemes megnézni!
Hívjon bizalommal, nézzük meg együtt leendő új otthonát!
Független hitelügyintézővel a teljes vásárlási folyamatban segítem.
Referencia szám: HZ072819
Tulajdonságok
Családi ház
Új építésű
Hőszivattyú
2026
Nem adta meg a hirdető
Vedd fel a kapcsolatot a hirdetővel
+36 29 619 0
Hitelkalkulátor
Második évtől
313 728 Ft A 13. hónaptól
7,99% 8,49%
Végig fix Futamidő: 20 év Banki visszahívás
Az OTP Bank munkatársai a neked megfelelő napszakban veszik fel veled a kapcsolatot. A becslés a hirdető által megadott adatokon alapul. A jelen tájékoztatás nem minősül ajánlattételnek és nem teljes körű, az egyes feltételek a hitelbírálat eredményétől függően változhatnak. Kérjük, a részletekről tájékozódj az OTP Bank fiókjaiban vagy az OTP Bank honlapján közzétett vonatkozó Üzletszabályzatokból és Hirdetményekből.
Vedd fel a kapcsolatot a hirdetővel
+36 29 619 0
Vedd fel a kapcsolatot a hirdetővel
+36 29 619 0
UI_KIT.CHARACTER_COUNTER__COMPONENT.ACTUAL_CHARACTER__SR_ONLY UI_KIT.CHARACTER_COUNTER__COMPONENT.MAXIMUM_CHARACTER__SR_ONLY
Hasonló eladó ingatlanok Sülysápon
Frissítve: ma
17
79,9 M Ft 746 729 Ft/m²
Eladó családi ház, Sülysáp

Frissítve: 13 napja
11
68,99 M Ft 749 891 Ft/m²
Eladó családi ház, Sülysáp
Frissítve: ma
20
65,9 M Ft 708 602 Ft/m²
Eladó családi ház, Sülysáp


Fedezd fel a
hasonló házakat!Még további házak Sülysápon 72,9 M Ft körüli értékben
Tovább a hirdetésekhez Frissítve: 13 napja
20
73,9 M Ft 947 436 Ft/m²
Eladó családi ház, Sülysáp

Frissítve: 13 napja
17
69,9 M Ft 751 613 Ft/m²
Eladó családi ház, Sülysáp
Frissítve: 11 napja
20
79,9 M Ft 654 918 Ft/m²
Eladó családi ház, Sülysáp

