+6 fotó
Hirdetéskód: 8925995
Referenciaszám: HZ033547-5154850
Feltöltve: ma
Sülysáp eladó családi ház 5 szobás: 74,9 millió Ft
74,9 millió Ft
624 167 Ft/m²
120 m²
1079 m²
5 szoba
Eladó ház, Sülysáp
SÜLYSÁP FREKVENTÁLT RÉSZÉN ÚJ ÉPÍTÉSŰ, 4 SZOBÁS SORHÁZ SAJÁT TELEKKEL!
HÁTSÓ INGATLAN NYUGALOM ÉS INTIMITÁS!
Sülysápon, csendes utcában, egy 1079 m²-es telken kínálok megvételre új építésű, nettó 100 m²-es, kiváló elosztású családi házat.
A hátsó lakáshoz 550m² kizárólagos használatú kert tartozik, amely tökéletes választás pihenéshez, kerti sütögetéshez, medencéhez vagy akár mobilgarázs kialakításához.
MŰSZAKI TARTALOM MINŐSÉG, AMI HOSSZÚ TÁVRA SZÓL
30 cm-es nútféderes tégla falazat
Fa födém
Antracit betoncserép fedés
15 cm EPS homlokzati szigetelés
10 cm Austrotherm padlószigetelés
25 cm ásványgyapot födémszigetelés
6 légkamrás, 3 rétegű üvegezésű nyílászárók
MODERN, GAZDASÁGOS FŰTÉS
10 kW-os monoblokkos hőszivattyú
Teljes körű padlófűtés
EXTRA KÉNYELEM
17 m²-es nyitott terasz
Riasztó- és kapumozgató elektronika előkészítés
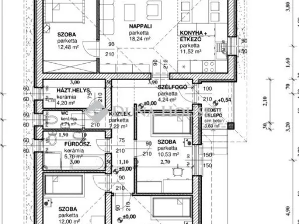
PRAKTIKUS, CSALÁDBARÁT ELRENDEZÉS
4 tágas szoba
Amerikai konyhás nappali
Fürdőszoba + külön WC
Külön háztartási helyiség
Átgondolt, élhető alaprajz
VÁLASZTHATÓ MŰSZAKI TARTALOM (KÖLTSÉGKERETEN BELÜL)
Hideg- és melegburkolatok: 3.000 Ft/m²-ig
Csaptelepek: 15.000 Ft/db
Kád vagy zuhany: 40.000 Ft
Beltéri ajtók: 35.000 Ft/db
Falsík mögötti WC rendszer
Magasabb kategória is választható, a különbözet ráfizetésével.
ELEKTROMOS KIÉPÍTÉS
Szobákban: 3-3 konnektor
Nappaliban: 4 konnektor + internet + kábel TV
Konyhában: 6 konnektor
Helyiségenként világítási kiállás
Kábel TV előkészítés
MEGBÍZHATÓ KIVITELEZŐ
A kivitelező Kókán több mint 20 ingatlant épített, referenciaházak komoly érdeklődés esetén megtekinthetők.
Várható átadás: 2026. AUGUSZTUS
Hívjon bizalommal!
Nézzük meg együtt leendő ÚJ OTTHONÁT!
Független hitelügyintézővel is segítem a vásárlást.
Érd.: Majzikné Tóth Krisztina, tel.: +36/20 927 3299, e-mail: majzikne.krisztina@dh.hu
Referencia szám: HZ033547
Tulajdonságok
Családi ház
Új építésű
Hőszivattyú
2026
Nem adta meg a hirdető
Vedd fel a kapcsolatot a hirdetővel
+36 29 769 7
Hitelkalkulátor
Második évtől
322 335 Ft A 13. hónaptól
7,99% 8,49%
Végig fix Futamidő: 20 év Banki visszahívás
Az OTP Bank munkatársai a neked megfelelő napszakban veszik fel veled a kapcsolatot. A becslés a hirdető által megadott adatokon alapul. A jelen tájékoztatás nem minősül ajánlattételnek és nem teljes körű, az egyes feltételek a hitelbírálat eredményétől függően változhatnak. Kérjük, a részletekről tájékozódj az OTP Bank fiókjaiban vagy az OTP Bank honlapján közzétett vonatkozó Üzletszabályzatokból és Hirdetményekből.
Vedd fel a kapcsolatot a hirdetővel
+36 29 769 7
Vedd fel a kapcsolatot a hirdetővel
+36 29 769 7
UI_KIT.CHARACTER_COUNTER__COMPONENT.ACTUAL_CHARACTER__SR_ONLY UI_KIT.CHARACTER_COUNTER__COMPONENT.MAXIMUM_CHARACTER__SR_ONLY
Hasonló eladó ingatlanok Sülysápon
Feltöltve: ma
9
74,9 M Ft 624 167 Ft/m²
Eladó családi ház, Sülysáp

Frissítve: 22 napja
20
73,9 M Ft 812 088 Ft/m²
Eladó ikerház, Sülysáp

Frissítve: 14 napja
20
70 M Ft 752 688 Ft/m²
Eladó családi ház, Sülysáp


Fedezd fel a
hasonló házakat!Még további házak Sülysápon 74,9 M Ft körüli értékben
Tovább a hirdetésekhez Frissítve: 22 napja
7
67,9 M Ft 738 043 Ft/m²
Eladó családi ház, Sülysáp
Frissítve: ma
20
73,9 M Ft 812 088 Ft/m²
Eladó ikerház, Sülysáp

Frissítve: 22 napja
20
79,9 M Ft 654 918 Ft/m²
Eladó családi ház, Sülysáp

