+6 fotó
Hirdetéskód: 8947680
Referenciaszám: U95
Frissítve: 8 napja
Sülysáp eladó családi ház 4 szobás: 62 millió Ft
62 millió Ft
673,9 ezer Ft/m² *
* A m² árat a hirdető adta meg.
95 m²
600 m²
4 szoba
Új építésű, energiatakarékos családi ház Sülysápon – Kinizsi Pál utca
Új építésű, energiatakarékos családi ház Sülysápon – Kinizsi Pál utca
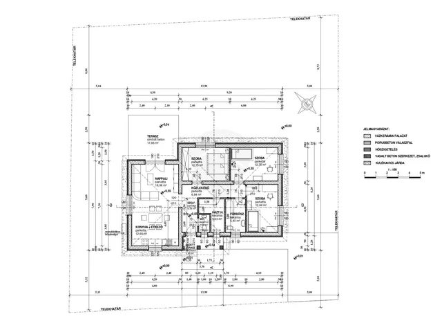
Eladó Sülysáp kedvelt részén, a Kinizsi utcában egy nettó 91,41 m²-es, amerikai konyhás nappali + 3 hálószobás, önálló családi ház. Az ingatlan egy 641 m²-es telken fekszik, és egy számos referenciával rendelkező, megbízható kivitelező valósítja meg.
Az építkezés állása és ütemezése:
Munkálatok kezdete: szerződéskötés után
Várható átadás: 9 hónappal utána
Konstrukció: 3% építési hitellel is megoldható ( itt a telket vásárolja meg a vevő )
Műszaki tartalom és szigetelés:
Az ingatlan a legkorszerűbb elvárásoknak megfelelően, kiváló energetikai besorolással épül:
-Falak: Porotherm P30 N+F tégla, betonkoszorúval.
-Tető: Fa födémes tetőszerkezet.
-Szigetelés: Homlokzat: 15 cm EPS
-Födém: 25 cm ásványgyapot
-Lábazat: 10 cm lépésálló polisztirol
-Nyílászárók: 6 légkamrás, 3 rétegű üvegezéssel ellátott műanyag thermo ablakok és ajtók.
Gépészet és rezsi:
A ház minimális fenntartási költségeit a levegő-víz hőszivattyús rendszer garantálja, amely megújuló energiát használva biztosítja a fűtést és a melegvizet.
Személyre szabható belső kialakítás:
A belső esztétikai megjelenés az Ön ízlésére van bízva! A megadott értékhatárig az ár tartalmazza a választható burkolatokat és szanitereket:
Burkolatok (hideg/meleg): 3.000 Ft/m²
Beltéri ajtók: 30.000 Ft/db
Fürdőkád: 40.000 Ft
Csaptelepek: 15.000 Ft/db
(Magasabb kategóriájú termékek választása esetén a különbözet fizetendő.)
Referenciák és bizalom:
A kivitelező korábban Sülysápon átadott, lakott ingatlanjai komoly érdeklődés esetén referenciaként megtekinthetőek. A
Finanszírozás és kedvezmények:
CSOK Plusz és Otthon Start igényelhető!
Díjmentes, bankfüggetlen hiteltanácsadás: Központunk versenyezteti a bankok ajánlatait, hogy Ön a legjobb konstrukciót kapja.
Egyedi kamatkedvezmények, hitelképesség vizsgálat és teljes körű ügyintézés.
Ne maradjon le álmai otthonáról! Amennyiben a hirdetés felkeltette érdeklődését, vagy további kérdése van, hívjon bizalommal a hét bármely napján!
Tulajdonságok
Családi ház
1
Új építésű
Geotermikus
2025
Nem adta meg a hirdető
Vedd fel a kapcsolatot a hirdetővel
+36 70 412 5
Hitelkalkulátor
Második évtől
266 820 Ft A 13. hónaptól
7,99% 8,49%
Végig fix Futamidő: 20 év Banki visszahívás
Az OTP Bank munkatársai a neked megfelelő napszakban veszik fel veled a kapcsolatot. A becslés a hirdető által megadott adatokon alapul. A jelen tájékoztatás nem minősül ajánlattételnek és nem teljes körű, az egyes feltételek a hitelbírálat eredményétől függően változhatnak. Kérjük, a részletekről tájékozódj az OTP Bank fiókjaiban vagy az OTP Bank honlapján közzétett vonatkozó Üzletszabályzatokból és Hirdetményekből.
Vedd fel a kapcsolatot a hirdetővel
+36 70 412 5
Vedd fel a kapcsolatot a hirdetővel
+36 70 412 5
UI_KIT.CHARACTER_COUNTER__COMPONENT.ACTUAL_CHARACTER__SR_ONLY UI_KIT.CHARACTER_COUNTER__COMPONENT.MAXIMUM_CHARACTER__SR_ONLY
Hasonló eladó ingatlanok Sülysápon
Frissítve: 7 napja
20
59,9 millió Ft 748,8 ezer Ft/m²
Eladó családi ház, Sülysáp

Frissítve: 5 napja
20
59,9 millió Ft 748,8 ezer Ft/m²
Eladó családi ház, Sülysáp

Frissítve: ma
20
59,9 millió Ft 748,8 ezer Ft/m²
Eladó családi ház, Sülysáp


Fedezd fel a
hasonló házakat!Még további házak Pest megyében 62 M Ft körüli értékben
Tovább a hirdetésekhez Frissítve: 8 napja
20
59,9 millió Ft 599 ezer Ft/m²
Eladó családi ház, Sülysáp

Frissítve: 5 napja
20
59,9 millió Ft 599 ezer Ft/m²
Eladó családi ház, Sülysáp

Frissítve: 5 napja
18
59,9 millió Ft 599 ezer Ft/m²
Eladó családi ház, Sülysáp

