+15 fotó
Zenga
Premier
Hirdetéskód: 8913551
Referenciaszám: M323898
Feltöltve: 10 napja
Szászvár eladó családi ház 2 szobás: 26,9 millió Ft
26,9 millió Ft
384 286 Ft/m² *
* A m² árat a hirdető adta meg.
70 m²
531 m²
2 szoba

Friss hirdetések, amiket nem találsz meg más ingatlankereső portálon.
Fedezd fel elsőként a Zenga Premier címkés eladó ingatlanokat! További részletek A Duna House, OTP Ingatlanpont, Otthon Centrum és további hálózatok új, kizárólagos hirdetéseinek nagy részét a zenga.hu és koltozzbe.hu ingatlankeresőn láthatod legelőször, és a feltöltéstől két hétig nem érhetők el más ingatlankeresőn!
Leírás
Eladó 2 szobás részben felújított ikerház Szászváron ideális választás családnak vagy befektetőknek egyaránt jó befektetés!
Baranya vármegyében, Bonyhád és Komló között elhelyezkedő Szászváron kínáljuk eladásra a 70 nm-es, 2 szobás ikerházat, amely egy 531 nm-es telekkel rendelkezik. A téglaépítésű ingatlan cserépfedésű tetővel bír, a felújítás már megkezdődött, így új tulajdonosa saját elképzelése szerint alakíthatja tovább.
A nyílászárók már korszerű műanyag hőszigetelt ablakokra lettek cserélve, a hátsó rész felé teraszajtó került beépítésre, amely lehetőséget ad egy kényelmes pihenő terasz kialakítására. Az elektromos hálózat felújított, a konvektorok cseréjéhez pedig a radiátorok már rendelkezésre állnak.
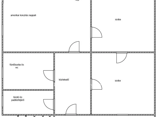
Az ingatlan praktikus elrendezéssel rendelkezik: a tágas folyosóról nyílnak a helyiségek, ami jó átláthatóságot és kényelmes közlekedést biztosít.
Alaprajzi adatok:
Folyosó: 6 nm
Utcai szoba: 18 nm
Hátsó szoba: 16 nm
Amerikai nappalis konyha: 20 nm + részben kialakított terasz
Fürdőszoba + WC: 5 nm
Tároló és padlásfeljáró: 5 nm a padlás beépítésével könnyen bővíthető a hasznos terület.
A fűtést jelenleg gázkonvektor biztosítja, így a korszerűbb fűtési megoldások, például cirkó vagy hőszivattyú, kiépítése is egyszerűen megoldható.
Szászvár község kitűnő infrastruktúrával rendelkezik: helyben található iskola, óvoda, bölcsőde, orvosi rendelő, gyógyszertár, üzletek, posta, vendéglő. A település kiváló buszmegközelítéssel bír, rendszeres járatok indulnak Komló, Dombóvár és Bonyhád irányába.
CSOK vagy támogatott 3%hitel igényléséhez is szakértő segítséget nyújtunk ügyfeleinknek, hogy a vásárlása gördülékeny és zökkenőmentes legyen.
Amennyiben felkeltette érdeklődését ez az ingatlan, kérem, keressen bizalommal a hét bármely napján! M323898
Tulajdonságok
Családi ház
1
Átlagos
Gáz (konvektor)
1964
Nem adta meg a hirdető
Vedd fel a kapcsolatot a hirdetővel
+36 20 509 7
Hitelkalkulátor
Második évtől
115 765 Ft A 13. hónaptól
7,99%
Végig fix Futamidő: 20 év Banki visszahívás
Az OTP Bank munkatársai a neked megfelelő napszakban veszik fel veled a kapcsolatot. A becslés a hirdető által megadott adatokon alapul. A jelen tájékoztatás nem minősül ajánlattételnek és nem teljes körű, az egyes feltételek a hitelbírálat eredményétől függően változhatnak. Kérjük, a részletekről tájékozódj az OTP Bank fiókjaiban vagy az OTP Bank honlapján közzétett vonatkozó Üzletszabályzatokból és Hirdetményekből.
Vedd fel a kapcsolatot a hirdetővel
+36 20 509 7
Vedd fel a kapcsolatot a hirdetővel
+36 20 509 7
UI_KIT.CHARACTER_COUNTER__COMPONENT.ACTUAL_CHARACTER__SR_ONLY UI_KIT.CHARACTER_COUNTER__COMPONENT.MAXIMUM_CHARACTER__SR_ONLY
Hasonló eladó ingatlanok Szászváron
Frissítve: 4 hónapja
1
27 M Ft 206 107 Ft/m²
Eladó családi ház, Szászvár, Bánya u.4.
Frissítve: 23 napja
8
27 M Ft 207 692 Ft/m²
Eladó családi ház, Szászvár
Frissítve: 1 hónapja
15
26,5 M Ft 132 500 Ft/m²
Eladó családi ház, Mohács

Fedezd fel a
hasonló házakat!Még további házak Baranya megyében 26,9 M Ft körüli értékben
Tovább a hirdetésekhez Frissítve: 20 napja
20
25 M Ft 201 613 Ft/m²
Eladó családi ház, Belvárdgyula

Frissítve: 21 napja
20
25 M Ft 250 000 Ft/m²
Eladó családi ház, Himesháza, Petőfi Sándor utca

Frissítve: 23 napja
11
25 M Ft 347 222 Ft/m²
Eladó családi ház, Mohács

