+17 fotó
Zenga
Premier
Hirdetéskód: 8902752
Referenciaszám: M323220
Feltöltve: ma
Szegvár eladó családi ház 1+1 fél szobás: 9,8 millió Ft
9,8 millió Ft
118 073 Ft/m² *
* A m² árat a hirdető adta meg.
83 m²
1079 m²
1+1 fél szoba

Friss hirdetések, amiket nem találsz meg más ingatlankereső portálon.
Fedezd fel elsőként a Zenga Premier címkés eladó ingatlanokat! További részletek A Duna House, OTP Ingatlanpont, Otthon Centrum és további hálózatok új, kizárólagos hirdetéseinek nagy részét a zenga.hu és koltozzbe.hu ingatlankeresőn láthatod legelőször, és a feltöltéstől két hétig nem érhetők el más ingatlankeresőn!
Leírás
Csak az OTP Ingatlanpontnál!
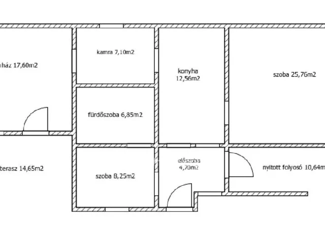
Eladásra kínálunk Szegvár településen, Csongrád-Csanád vármegye területén egy 83 m2-es kertes házat, amely csendes, forgalomtól mentes utcában helyezkedik el, mindössze egy perc sétára a Kurca folyótól. Az ingatlan nyugodt, természetközeli környezetet kínál, ideális választás mindazok számára, akik értékelik a békét, a nagy sétákat vagy akár a horgászat nyújtotta kikapcsolódást. A ház falainak 60%-át téglára cserélték, a megmaradt vályogfalakat aláfalazták, így az épület vízszigetelése kiváló állapotú. A fűtést vegyestüzelésű kazán biztosítja, ugyanakkor a gázcsonk a telekhatáron található, ami lehetőséget ad a későbbi gázfűtés kialakítására. A melegvíz-ellátásról villanybojler gondoskodik. Az 1079 m2-es telek tágas teret kínál bővítésre, kertészkedésre vagy akár további melléképületek kialakítására. Az ingatlan belső munkálatai, az új tulajdonosát várja.
Az Otthon Start Hitelprogram keretében az OTP Bankcsoport teljes körű ügyintézéssel áll az eladók és a vevők rendelkezésére. A kínálatunkból választott ingatlan finanszírozásához kedvezményes hitelkonstrukciókat biztosítunk, valamint lehetőséget kínálunk az OTP Bank által közvetített Babaváró, CSOK PLUSZ, Falusi CSOK és egyéb kölcsönök ügyintézésére is. Igény esetén megbízható ügyvédi közreműködést biztosítunk az adásvételi szerződés megkötéséhez, és segítséget nyújtunk az adásvételhez kapcsolódó további ügyek intézésében. Irodáink Szentesen a Petőfi utca 12. szám alatt (a buszmegálló felől), valamint Csongrádon a Fő utca 54. szám alatt várják a személyes érdeklődőket. Akár hétvégén is hívható vagyok, és amennyiben kényelmesebb, SMS-ben is elér, készséggel visszahívom.
Tulajdonságok
Családi ház
1
Felújítandó
Egyéb kazán
1960
10,7 m²
Nem adta meg a hirdető
Vedd fel a kapcsolatot a hirdetővel
+36 30 535 2
Hitelkalkulátor
Második évtől
42 175 Ft A 13. hónaptól
7,99%
Végig fix Futamidő: 20 év Banki visszahívás
Az OTP Bank munkatársai a neked megfelelő napszakban veszik fel veled a kapcsolatot. A becslés a hirdető által megadott adatokon alapul. A jelen tájékoztatás nem minősül ajánlattételnek és nem teljes körű, az egyes feltételek a hitelbírálat eredményétől függően változhatnak. Kérjük, a részletekről tájékozódj az OTP Bank fiókjaiban vagy az OTP Bank honlapján közzétett vonatkozó Üzletszabályzatokból és Hirdetményekből.
Vedd fel a kapcsolatot a hirdetővel
+36 30 535 2
Vedd fel a kapcsolatot a hirdetővel
+36 30 535 2
UI_KIT.CHARACTER_COUNTER__COMPONENT.ACTUAL_CHARACTER__SR_ONLY UI_KIT.CHARACTER_COUNTER__COMPONENT.MAXIMUM_CHARACTER__SR_ONLY
Hasonló eladó ingatlanok Szegváron
Frissítve: 1 hónapja
7
9,3 M Ft 102 198 Ft/m²
Eladó családi ház, Szegvár, Kiss utca 5.
Frissítve: 6 napja
8
9,9 M Ft 126 923 Ft/m²
Eladó családi ház, Székkutas
Frissítve: 6 napja
12
9 M Ft 115 384 Ft/m²
Eladó családi ház, Óföldeák

Fedezd fel a
hasonló házakat!Még további házak Csongrád megyében 9,8 M Ft körüli értékben
Tovább a hirdetésekhez Frissítve: 6 napja
6
8,99 M Ft 224 750 Ft/m²
Eladó családi ház, Mórahalom
Frissítve: 6 napja
7
9,5 M Ft 287 878 Ft/m²
Eladó családi ház, Újszentiván
Frissítve: 6 napja
8
9,59 M Ft 114 166 Ft/m²
Eladó családi ház, Baks

