

+18 fotó
Hirdetéskód: 8747114
Referenciaszám: 53-1673
Frissítve: ma
Székesfehérvár eladó családi ház 5 szobás: 125 millió Ft
125 millió Ft
* A m² árat a hirdető adta meg.
173 m²
2300 m²
5 szoba
Székesfehérvár, Rába utca, 173 m²-es, családi ház, 5 szobás
Irodánk eladásra kínál Székesfehérvár Feketehegyen 173 m2-es földszintes 5 szobás energiahatékony (alacsony rezsivel rendelkező) szigetelt családi házat hatalmas (2300 m2-es) természetközeli telken garázzsal és medencével, amelyhez Otthon Start Program (3% hitel) igényelhető!
Az ingatlan rendkívül csendes és intim, de egyben kiváló közlekedéssel és infrastruktúrával rendelkezik (tömegközlekedés, orvos, iskola, orvos stb. a közelben).
Az épület 2022-ben átalakításra/bővítésre került. Cserélve lett a villamoshálózat, a víz és csatornarendszer is.
Falazat porotherm30 téglából, 20 cm hőszigeteléssel készült. 3 rétegű üvegek, elektromos redőnnyel és rovarhálóval ellátott nyílászárók Tető cserépfedéssel.
Fűtés és a melegvíz: kombi gázkazán termosztáttal + hűtő-fűtő klímák. Nappaliban egy épített cserépkályha biztosítja az alternatív fűtést.
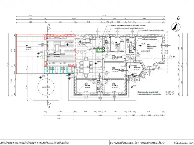
Az Ingatlan nettó területe 151 m2 + 44m2 terasz = 173m2 (terasz 50%-ával számolva), amelynek részei:
1. amerikai konyhás tágas nappali étkezővel
2. télikert
3. előszoba
4. 4 hálószoba
5. 2 fürdőszoba + 2 wc
6. Gardrób
Kertben minden szükséges paraméter adott: garázs/ műhely/ nyárikonyha/veteményes/gyümölcsfák, ahol akár önellátó gazdálkodás is lehetséges.
Egy kis természetközeli magánbirodalom városi környezetben.
Szeressen bele és többé nem akar máshová költözni!
Tulajdonságok
Családi ház
Újszerű
Egyéb
1992
Nem adta meg a hirdető
Nincs
Vedd fel a kapcsolatot a hirdetővel
dr. Kovács Csaba Balla Ingatlan - Székesfehérvár és Velencei-tó környékére Az iroda összes hirdetése
+36 30 903 3
Hitelkalkulátor
Második évtől
537 943 Ft A 13. hónaptól
7,99%
Végig fix Futamidő: 20 év Banki visszahívás
Az OTP Bank munkatársai a neked megfelelő napszakban veszik fel veled a kapcsolatot. A becslés a hirdető által megadott adatokon alapul. A jelen tájékoztatás nem minősül ajánlattételnek és nem teljes körű, az egyes feltételek a hitelbírálat eredményétől függően változhatnak. Kérjük, a részletekről tájékozódj az OTP Bank fiókjaiban vagy az OTP Bank honlapján közzétett vonatkozó Üzletszabályzatokból és Hirdetményekből.
Vedd fel a kapcsolatot a hirdetővel
dr. Kovács Csaba Balla Ingatlan - Székesfehérvár és Velencei-tó környékére Az iroda összes hirdetése
+36 30 903 3
Vedd fel a kapcsolatot a hirdetővel
dr. Kovács Csaba Balla Ingatlan - Székesfehérvár és Velencei-tó környékére Az iroda összes hirdetése
+36 30 903 3
UI_KIT.CHARACTER_COUNTER__COMPONENT.REMAINING_SPACE__SR_ONLYUI_KIT.CHARACTER_COUNTER__COMPONENT.MAXIMUM_CHARACTER__SR_ONLY
Hasonló eladó ingatlanok Székesfehérváron
Frissítve: 26 napja

20
119,5 M Ft 678 977 Ft/m²
Eladó ikerház, Székesfehérvár

Frissítve: 26 napja

20
120 M Ft 692 441 Ft/m²
Eladó családi ház, Székesfehérvár

Frissítve: 26 napja

20
120 M Ft 875 912 Ft/m²
Eladó családi ház, Székesfehérvár


Fedezd fel a
hasonló házakat!Még további házak Székesfehérváron 125 M Ft körüli értékben
Tovább a hirdetésekhez Frissítve: 7 napja

20
120 M Ft 693 642 Ft/m²
Eladó családi ház, Székesfehérvár

Frissítve: ma

20
119,5 M Ft 678 977 Ft/m²
Eladó ikerház, Székesfehérvár

Frissítve: 7 napja

20
119,5 M Ft 678 977 Ft/m²
Eladó ikerház, Székesfehérvár


Töltsd fel hirdetésed ingyenesen!
Egyszerű