+17 fotó
Hirdetéskód: 8809860
Referenciaszám: 390318
Feltöltve: 2 napja
Székesfehérvár eladó családi ház 2+1 fél szobás: 69,9 millió Ft
69,9 millió Ft
932 000 Ft/m²
75 m²
681 m²
2+1 fél szoba
Eladó családi ház Székesfehérvár, 75nm, 69.900.000Ft - Vezér utcáknál
Vásárláson gondolkodik? Ne habozzon!
Használja ki az IGÉNYBE VEHETŐ lehetőségeket! Fix 3 % hitel igényelhető!
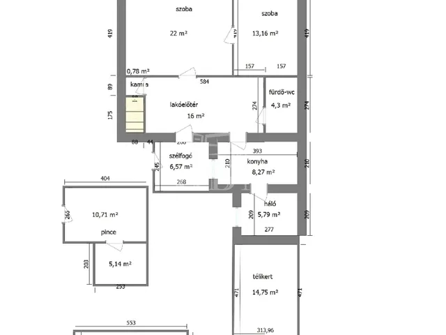
H-004679. Vezér utcák, központi részen, teljes közművel ellátott önálló, 681 m2-es sarok telken, karbantartott 76m2-es 2,5 szobás családi ház, garázzsal eladó.
A közelben orvos, iskola, óvoda, Bevásárló központok, üzletek, Ipari park, megtalálhatóak. Buszmegálló pár percre.
Elosztását tekintve:
A ház: kb 76 m2 hasznos alapterületű, kialakításra került egy tágas előtér, konyha ,étkező, 2,5 szoba, 1 fürdő, wc, kamra, garázs és tárolók-ólak.
Az ház 1970-es évek elején épült, beton lábazat, tégla falazattal, cserépfedéssel. A meleg vízellátásról gáz, a fűtésről gázkonvektorok valamint a nagyméretű cserépkályha gondoskodnak. A burkolatokat tekintve a szobában parketta, a közlekedőben, valamint a konyhában és a vizes helyiségekben járólap, található. A nyílászárók részben cserélve lettek műanyag típusúak, rajtuk redőny és szúnyogháló található.
A telek körbekerített, található még egy garázs, és kb 40m2 melléképület. Az ingatlan az egyik utcafrontról személyi bejárattal rendelkezik, a másik oldalon gépkocsi bejárat és a garázs. Az udvar hátsó részén gazdasági épületek gyümölcsfák és veteményes található.
Eladási irányár: 69.900.000,- Ft
A házak adottságainak, fekvésének köszönhetően alkalmas lakhatáson kívül, vállalkozásra, üzleti vagy befektetési célra, hiszen akár bérbe adható, vagy üzlet, szolgáltatás (pl: fodrász, kozmetika, irodai tevékenység….) kialakítható.
A ház a kényelmes otthont biztosít a lakók számára, mind a belső lakrészben, mind a kert, udvar, illetve a terasz területén. A vásárláshoz a jelenleg időszerű családok otthonteremtésére vonatkozó támogatás igénybe vehető (Otthon Start fix 3 % hitel , Jelzáloghitel, Babaváró, Piaci hitel……)
Ha felkeltette érdeklődését, hívjon bizalommal,(hétvégén is) éljen ingyenes, személyre szabott hitelügyintézés szolgáltatásunkkal. Segítünk továbbá adásvételhez szükséges ügyvédi közreműködésben, energetikai tanúsítvány, valamint értékbecslés elkészítésében.
For English details please send us a message or an e-mail, thank you. ...TOVÁBBI, TÖBBEZRES INGATLAN KÍNÁLAT: www.gdn-ingatlan.hu - GDN azonosító: 390318
Tulajdonságok
Családi ház
1
Jó állapotú
Gáz (konvektor)
1964
Nem adta meg a hirdető
Vedd fel a kapcsolatot a hirdetővel
+36 30 503 0
Hitelkalkulátor
Második évtől
300 818 Ft A 13. hónaptól
7,99%
Végig fix Futamidő: 20 év Banki visszahívás
Az OTP Bank munkatársai a neked megfelelő napszakban veszik fel veled a kapcsolatot. A becslés a hirdető által megadott adatokon alapul. A jelen tájékoztatás nem minősül ajánlattételnek és nem teljes körű, az egyes feltételek a hitelbírálat eredményétől függően változhatnak. Kérjük, a részletekről tájékozódj az OTP Bank fiókjaiban vagy az OTP Bank honlapján közzétett vonatkozó Üzletszabályzatokból és Hirdetményekből.
Vedd fel a kapcsolatot a hirdetővel
+36 30 503 0
Vedd fel a kapcsolatot a hirdetővel
+36 30 503 0
UI_KIT.CHARACTER_COUNTER__COMPONENT.REMAINING_SPACE__SR_ONLYUI_KIT.CHARACTER_COUNTER__COMPONENT.MAXIMUM_CHARACTER__SR_ONLY
Hasonló eladó ingatlanok Székesfehérváron
Frissítve: 11 napja
11
64,9 M Ft 795 246 Ft/m²
Eladó családi ház, Székesfehérvár

Frissítve: 11 napja
14
69 M Ft 436 709 Ft/m²
Eladó családi ház, Székesfehérvár, Mártírok útja

Frissítve: 2 napja
15
69 M Ft 436 709 Ft/m²
Eladó családi ház, Székesfehérvár


Fedezd fel a
hasonló házakat!Még további házak Székesfehérváron 69,9 M Ft körüli értékben
Tovább a hirdetésekhez Frissítve: 11 napja
11
64,9 M Ft 795 246 Ft/m²
Eladó családi ház, Székesfehérvár

Frissítve: 26 napja
20
69 M Ft 428 571 Ft/m²
Eladó családi ház, Székesfehérvár
Frissítve: 6 napja
17
65 M Ft 451 389 Ft/m²
Eladó családi ház, Székesfehérvár


Töltsd fel hirdetésed ingyenesen!
Egyszerű
