+17 fotó
Zenga
Premier
Hirdetéskód: 8862975
Referenciaszám: M320656
Feltöltve: 3 napja
Szentes eladó családi ház 4+1 fél szobás: 44,5 millió Ft
44,5 millió Ft
419 812 Ft/m² *
* A m² árat a hirdető adta meg.
106 m²
963 m²
4+1 fél szoba

Friss hirdetések, amiket nem találsz meg más ingatlankereső portálon.
Fedezd fel elsőként a Zenga Premier címkés eladó ingatlanokat! További részletek A Duna House, OTP Ingatlanpont, Otthon Centrum és további hálózatok új, kizárólagos hirdetéseinek nagy részét a zenga.hu és koltozzbe.hu ingatlankeresőn láthatod legelőször, és a feltöltéstől két hétig nem érhetők el más ingatlankeresőn!
Leírás
Tetőtér beépítéses családi ház eladó Szentesen a Kertvárosban - kizárólag az OTP Ingatlanpontnál!!!
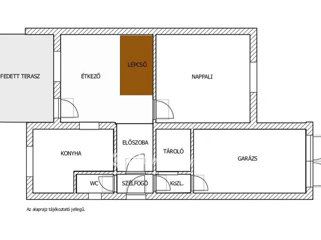
A kiváló szerkezeti állapotú ház hasznos alapterülete 106m2, amelyből a földszinti lakótér 55, míg a tetőtéri hasznos (190cm belmagasságot meghaladó) alapterület 51m2. Az étkezőhöz kapcsolódik egy tágas, 14m2-es fedett terasz, valamint egy 15,6m2-es garázs is rendelkezésre áll. A földszinten nappali, étkező, konyha, míg a tetőtérben 3 hálószoba került kialakításra.
A téli melegről padlófűtés gondoskodik, a nyári hőségben pedig klímák biztosítják a kellemes hőmérsékletet. A nyílászárók, burkolatok még az eredetiek, a leendő tulajdonos saját ízlésének megfelelően alakíthatja ki a belső tereket.
A telken megtalálható egy melléképület is, ami tároló funkciót lát el. A nagyméretű telek alkalmas lehet konyhakert kialakítására is, a növények öntözését fúrt kútról tudjuk megoldani.
A Kurca pár lépésre van az ingatlantól, a kertvárosban üzletek, óvoda, általános iskola étterem egyaránt megtalálhatók.
Amennyiben felkeltette érdeklődését, keressen bizalommal!
Az OTP Ingatlanpont teljes körű ügyintézéssel áll az eladók és vevők rendelkezésére. A kínálatunkból választott ingatlan finanszírozásához kedvezményes hitelkonstrukciót biztosítunk. Az OTP Banknál elérhető Babaváró, falusi CSOK, CSOK Plusz hitel és egyéb kölcsönök intézését díjmentesen vállaljuk. Az adásvételi szerződés megkötéséhez igény szerint ügyvédet biztosítunk. Irodáink Szentes, Petőfi utca 12. a buszmegálló felől, és Csongrád, Fő utca 54. szám alatt várjuk a személyes érdeklődőket. Válasszuk ki együtt az Önnek legmegfelelőbb ajánlatot banki sorban állás nélkül!
Tulajdonságok
Családi ház
2
Felújítandó
Gázkazán
1987
14 m²
Nem adta meg a hirdető
Vedd fel a kapcsolatot a hirdetővel
+36 70 402 4
Hitelkalkulátor
Második évtől
191 508 Ft A 13. hónaptól
7,99%
Végig fix Futamidő: 20 év Banki visszahívás
Az OTP Bank munkatársai a neked megfelelő napszakban veszik fel veled a kapcsolatot. A becslés a hirdető által megadott adatokon alapul. A jelen tájékoztatás nem minősül ajánlattételnek és nem teljes körű, az egyes feltételek a hitelbírálat eredményétől függően változhatnak. Kérjük, a részletekről tájékozódj az OTP Bank fiókjaiban vagy az OTP Bank honlapján közzétett vonatkozó Üzletszabályzatokból és Hirdetményekből.
Vedd fel a kapcsolatot a hirdetővel
+36 70 402 4
Vedd fel a kapcsolatot a hirdetővel
+36 70 402 4
UI_KIT.CHARACTER_COUNTER__COMPONENT.REMAINING_SPACE__SR_ONLYUI_KIT.CHARACTER_COUNTER__COMPONENT.MAXIMUM_CHARACTER__SR_ONLY
Hasonló eladó ingatlanok Kertváros városrészben
Frissítve: 7 napja
20
45 M Ft 250 000 Ft/m²
Eladó családi ház, Szentes

Frissítve: 5 hónapja
1
44,9 M Ft 415 741 Ft/m²
Eladó családi ház, Szentes, Stégsor 18
Frissítve: 19 napja
20
43,9 M Ft 430 392 Ft/m²
Eladó családi ház, Szentes

Fedezd fel a
hasonló házakat!Még további házak Csongrád megyében 44,5 M Ft körüli értékben
Tovább a hirdetésekhez Frissítve: 6 napja
20
44 M Ft 440 000 Ft/m²
Eladó családi ház, Szentes

Frissítve: 8 hónapja
1
45 M Ft 173 077 Ft/m²
Eladó családi ház, Szentes
Frissítve: ma
13
43 M Ft 191 111 Ft/m²
Eladó családi ház, Szentes
