+17 fotó
Hirdetéskód: 8579875
Referenciaszám: M305685
Frissítve: 22 napja
Szentes eladó családi ház 6 szobás: 99 millió Ft
99 millió Ft
651,3 ezer Ft/m² *
* A m² árat a hirdető adta meg.
152 m²
2014 m²
6 szoba
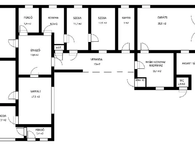
Leírás
Szentes városközpontjához közel, a Kisér elején, 2014 m2-es telken eladó egy sokoldalúan hasznosítható ipari ingatlan, amely kiváló választás telephelynek, raktárnak, műhelynek vagy lakás + vállalkozás kombinációjához. Nyilvántartás szerint lakóház, udvar megjelölésű, tehermentes.
Polgári elegancia modern kényelemmel, különleges otthon várja új tulajdonosát!
Ez a teljes körűen felújított, 152 m2-es lakóépület a klasszikus polgári építészet időtálló báját ötvözi a mai kor elvárásaival. A tágas, világos terek (4 szoba, nappali, étkező, iroda), a nagy belmagasság és az otthon melegét adó kandalló a századfordulós hangulatot idézik, míg a korszerű műszaki megoldások (hő- és vízszigetelt aljzat, teljes közműfelújítás, víz, szennyvíz, villany, 3 fázis, gáz, hőszigetelt, redőnyös nyílászárók) biztosítják a kényelmet és gazdaságos fenntarthatóságot.
A két fürdőszoba, két konyha, valamint a klíma és a választható fűtési rendszerek (gázkazán és vegyes tüzelésű kazán) tovább növelik a funkcionalitást, így ez az otthon ideális választás nagyobb családok vagy akár két generáció számára is.
A nyári konyhából keresztül jutunk a fűthető, 35 m2-es garázsba, 2,7 méteres belmagassággal és széles, üvegezett ipari ajtóval, amelyhez külön gázóra is tartozik. A műhely mögött egy 256 m2-es, fedett csarnok kapott helyet, amely ideális raktározásra, gyártási tevékenységre, géptárolásra vagy egyéb ipari felhasználásra. A csarnok előtt nagy, betonozott munkaterület található, amely megkönnyíti az árumozgatást és logisztikát.
Az udvar hátsó részében szerelőaknás 75 m2-es műhely áll, amely felett egy külön bejáratú, 72 m2-es, modern tetőtéri lakás került kialakításra. A lakás amerikai konyhás nappalival, külön hálószobával, sarokkádas fürdőszobával és saját gázkazánnal rendelkezik, így kiváló lehetőség szolgálati lakásnak, irodának vagy vendéglakásnak.
Az utcafronton nagy teherbírású, térköves parkoló került kialakításra, így az ingatlan ipari és üzleti célú hasznosítása már meglévő infrastruktúrával biztosított.
Ez a sokoldalú ingatlan ideális választás lehet mindazoknak, akik saját vállalkozásuknak keresnek telephelyet, műhelyt vagy raktárt, és szeretnék mindezt lakhatási lehetőséggel egy helyen megoldani. Az ipari adottságok, a rendezett környezet és a kiváló megközelíthetőség ritka kombinációt kínálnak Szentes egyik legjobb elhelyezkedésű részén.
Az OTP Ingatlanpont kedvezményes pénzügyi konstrukciókkal áll ügyfelei rendelkezésére! VIP-szolgáltatást nyújtunk az OTP-hiteltermékek ügyintézésében. Jogi és pénzügyi segítséget nyújtanak szakértőink, hogy az adásvétel folyamata gördülékeny legyen. Amennyiben a vételár a kérdés, és úgy gondolja még nincs meg az összeg a leendő új otthonra? Lehet, hogy még is rendelkezésére áll a vételár csak még Ön nem is tudja? Tisztában van valóban az anyagi lehetőségeivel? Az áthidaló megoldásokkal? Esetleg csak az az akadály, hogy nem adta el még a saját ingatlanját? Nem gond, a tulajdonosaink, eladóink szívesen megvárják Önt, segítünk a gyors értékesítésben is. Ne maradjon le a vételről, ha már megtalálta a megfelelő új otthont! Szolgáltatásunk ingyenes, kizárólag sikeres értékesítés esetén van megbízási díj fizetési kötelezettség. A vevők is nálunk vannak és lehet az Ön ingatlanjára várnak?! Tudjon meg többet, hívjon bizalommal!
Eladó ingatlanja van? Nincs vevője? Hívjon segítek az értékesítésben!
Kedvező hitelajánlatokkal ("Otthon Start Program", Babaváró hitel, CSOK, piaci hitel, és szabadfelhasználású hitel) várjuk jelentkezését. Számos konstrukció közül választhatnak. Irodáink Szentes, Petőfi utca 12. (a buszmegálló felől) és Csongrád, Fő utca 54. szám alatt várja a személyes érdeklődőket. ***VÁLASSZUK KI EGYÜTT AZ ÖNNEK LEGMEGFELELŐBB AJÁNLATOT! BANKI SORBAN ÁLLÁS NÉLKÜL! ***
Tulajdonságok
Családi ház
1
Átlagos
Gázkazán
1940
Nem adta meg a hirdető
Vedd fel a kapcsolatot a hirdetővel
+36 30 223 3
Hitelkalkulátor
Második évtől
426 051 Ft A 13. hónaptól
7,99%
Végig fix Futamidő: 20 év Banki visszahívás
Az OTP Bank munkatársai a neked megfelelő napszakban veszik fel veled a kapcsolatot. A becslés a hirdető által megadott adatokon alapul. A jelen tájékoztatás nem minősül ajánlattételnek és nem teljes körű, az egyes feltételek a hitelbírálat eredményétől függően változhatnak. Kérjük, a részletekről tájékozódj az OTP Bank fiókjaiban vagy az OTP Bank honlapján közzétett vonatkozó Üzletszabályzatokból és Hirdetményekből.
Vedd fel a kapcsolatot a hirdetővel
+36 30 223 3
Vedd fel a kapcsolatot a hirdetővel
+36 30 223 3
UI_KIT.CHARACTER_COUNTER__COMPONENT.ACTUAL_CHARACTER__SR_ONLY UI_KIT.CHARACTER_COUNTER__COMPONENT.MAXIMUM_CHARACTER__SR_ONLY
Hasonló eladó ingatlanok Kisér városrészben
Frissítve: 3 napja
20
99 millió Ft 651,3 ezer Ft/m²
Eladó családi ház, Szentes

Frissítve: 22 napja
17
99 millió Ft 618,8 ezer Ft/m²
Eladó családi ház, Szentes

Frissítve: 3 napja
20
95 millió Ft 513,5 ezer Ft/m²
Eladó családi ház, Szentes


Fedezd fel a
hasonló házakat!Még további házak Csongrád megyében 99 M Ft körüli értékben
Tovább a hirdetésekhez Frissítve: ma
6
108 millió Ft 931 ezer Ft/m²
Eladó családi ház, Szeged, Tápé

Frissítve: 22 napja
8
94,99 millió Ft 780,9 ezer Ft/m²
Eladó családi ház, Szeged, Alsóváros
Frissítve: 8 napja
20
99 millió Ft 1,09 millió Ft/m²
Eladó ikerház, Szeged, Thököly utca

