

+18 fotó
Hirdetéskód: 8728625
Referenciaszám: M311515-5050313
Feltöltve: 3 napja
Szentes eladó családi ház 3+1 fél szobás: 55 millió Ft
55 millió Ft
470 085 Ft/m²
117 m²
539 m²
3+1 fél szoba
Eladó Ház, Szentes
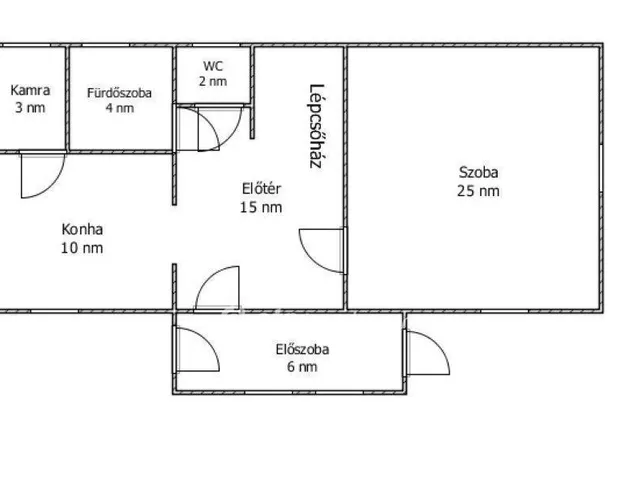
Kétszintes családi ház eladó Szentesen. A 117 nm-es, nappali + 3 szobával és 2 fürdőszobával rendelkező tégla építésű ház kertvárosi környezetben helyezkedik el egy 539 nm-es telken. Az előszobán keresztül a nagy előtéren áthaladva jutunk a hatalmas, világos nappaliba. A földszinten van a konyha, a kamra és egy fürdőszoba, valamint egy WC helyiség. A hűtő-fűtő klímát az előtérben helyezték el. Az emeleten további 3 külön bejáratú szoba és egy fürdőszoba kapott helyet. A jó állapotú ház fűtését gázkazán, a meleg vizet gázbojler biztosítja, ablakai 3 rétegű műanyag nyílászárók. A ház szigetelése 5 cm-es nikecell, rajta nemesvakolat. A szobák padlóburkolata laminált padló, a többi helyiség hidegburkolattal fedett. A melléképületben van egy fűtött konyha meleg víz ellátással, egy félkész fürdőszoba és a garázs. A nagy garázsban a parkoló autó mellett még nagy mennyiségű holmi tárolására is van lehetőség. A melléképület felett beépíthető tetőtér van. Az udvaron még további 2 autó számára van fedett kocsibeálló. Az ingatlan tehermentes, hitelezhető! Amennyiben az OTP Ingatlanpont kínálatából választ, számíthat szakmai támogatásunkra a teljes vételi folyamat során az adásvételi szerződés megkötésétől a hitel-ügyintézésen át az ingatlan átadásáig. Az OTP Ingatlanpont kedvezményes pénzügyi konstrukciókkal áll ügyfelei rendelkezésére, és VIP-szolgáltatást nyújt az OTP-hiteltermékek , valamint CSOK+-ügyintézésben. Kedvező hitelajánlatokkal (BABAVÁRÓ hitel, piaci hitel, és szabadfelhasználású hitel) várjuk jelentkezését. Számos konstrukció közül választhatnak. Irodáink Szentes, Petőfi utca 12. A buszmegálló felől, és Csongrád, Fő utca 54. szám alatt várja a személyes érdeklődőket. ***VÁLASSZUK KI EGYÜTT AZ ÖNNEK LEGMEGFELELŐBB AJÁNLATOT! BANKI SORBAN ÁLLÁS NÉLKÜL! ***
Referencia szám: M311515-ZE
Tulajdonságok
Családi ház
Jó állapotú
Gázkazán
1997
Nem adta meg a hirdető
Vedd fel a kapcsolatot a hirdetővel
+36 70 402 4
Hitelkalkulátor
Második évtől
236 695 Ft A 13. hónaptól
7,99%
Végig fix Futamidő: 20 év Banki visszahívás
Az OTP Bank munkatársai a neked megfelelő napszakban veszik fel veled a kapcsolatot. A becslés a hirdető által megadott adatokon alapul. A jelen tájékoztatás nem minősül ajánlattételnek és nem teljes körű, az egyes feltételek a hitelbírálat eredményétől függően változhatnak. Kérjük, a részletekről tájékozódj az OTP Bank fiókjaiban vagy az OTP Bank honlapján közzétett vonatkozó Üzletszabályzatokból és Hirdetményekből.
Vedd fel a kapcsolatot a hirdetővel
+36 70 402 4
Vedd fel a kapcsolatot a hirdetővel
+36 70 402 4
UI_KIT.CHARACTER_COUNTER__COMPONENT.REMAINING_SPACE__SR_ONLYUI_KIT.CHARACTER_COUNTER__COMPONENT.MAXIMUM_CHARACTER__SR_ONLY
Hasonló eladó ingatlanok Szentesen
Frissítve: 10 napja

20
60 M Ft 352 942 Ft/m²
Eladó családi ház, Szentes

Frissítve: 9 napja

20
58 M Ft 394 558 Ft/m²
Eladó családi ház, Szentes
Frissítve: 17 napja

14
55 M Ft 275 000 Ft/m²
Eladó családi ház, Szentes


Fedezd fel a
hasonló házakat!Még további házak Szentesen 55 M Ft körüli értékben
Tovább a hirdetésekhez Frissítve: 17 napja

20
50 M Ft 320 513 Ft/m²
Eladó családi ház, Szentes

Frissítve: 10 napja

20
54,9 M Ft 392 143 Ft/m²
Eladó családi ház, Szentes

Frissítve: ma

17
59 M Ft 245 833 Ft/m²
Eladó családi ház, Szentes


Töltsd fel hirdetésed ingyenesen!
Egyszerű