

+18 fotó
Zenga
Premier
Hirdetéskód: 8737082
Referenciaszám: M314069
Feltöltve: ma
Szentes eladó családi ház 1+2 fél szobás: 59 millió Ft
59 millió Ft
226 054 Ft/m² *
* A m² árat a hirdető adta meg.
261 m²
919 m²
1+2 fél szoba

Friss hirdetések, amiket nem találsz meg más ingatlankereső portálon.
Fedezd fel elsőként a Zenga Premier címkés eladó ingatlanokat! További részletek A Duna House, OTP Ingatlanpont, Otthon Centrum és további hálózatok új, kizárólagos hirdetéseinek nagy részét a zenga.hu és koltozzbe.hu ingatlankeresőn láthatod legelőször, és a feltöltéstől két hétig nem érhetők el más ingatlankeresőn!
Leírás
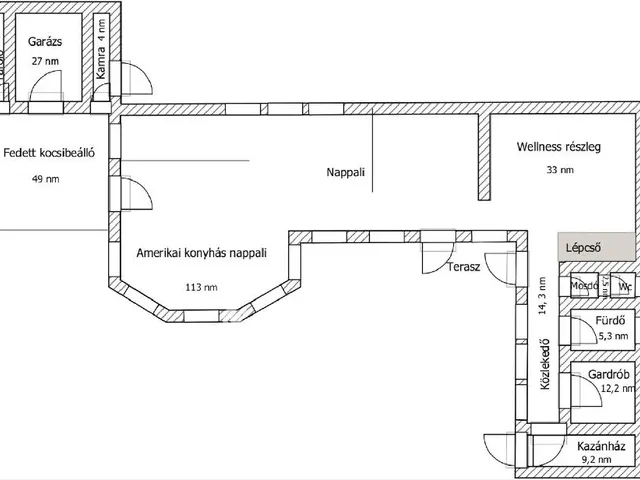
Kizárólag az OTP Ingatlanpont kínálatában! Eladó mediterrán stílusú, 261 nm-es családi ház Szentesen, a kórház közelében. Szentes egyik kedvelt, csendes részén eladó egy tágas, világos és mediterrán hangulatú családi ház, amely 2000-ben épült téglából, hőszigetelt falazattal. Az épületben különleges exkluzív látszó belső tetőszerkezet látható. Aminek stílusa visszaköszön a külső homlokzaton, nyílászárókon és az udvaron egyaránt. A természetes fa mennyezet és díszítések különleges, meleg atmoszférát teremtenek, a hatalmas terek pedig igazi otthonérzetet nyújtanak. A galérián két félszoba található, a házban külön WC és fürdőszoba szolgálja a kényelmet. A nappali és az étkező egy légtérben, napfényes és hangulatos, a kandalló pedig igazi ékköve a térnek. A jelenleg 919 nm-es udvar parkosított, füvesített és rendezett. Tervben van a telek szétválasztása lehetőleg külön helyrajzi számon, mert a telek másik végében is van egy ház, ami viszont nem eladó, így a leendő vásárló majd kb. 500 m2 telekrészt kap. A szétválasztást követően mindkét ház saját elkerített udvarral és saját utcafronttal fog rendelkezni. A házhoz tartozik garázs, kamra, tárolóhelység és 2 fedett kocsibeálló. Könnyen megközelíthető, a környéken minden fontos szolgáltatás elérhető (bolt, iskola, buszmegálló, orvosi rendelő stb.). Tökéletes választás azoknak, akik nagy, napfényes tereket, a természetes anyagokat és a mediterrán hangulatot kedvelik. A jakuzzi és szauna révén akár luxus wellness otthonként is funkcionálhat. Legújabb szolgáltatásként ajánlom minden kedves ügyfelem részére az OTP Bank által közvetített Babaváró, CSOK PLUSZ, Otthon Start Hitelprogram vagy egyéb kölcsönök intézését. Az OTP Ingatlanpont kedvezményes pénzügyi konstrukciókkal áll ügyfelei rendelkezésére! VIP-szolgáltatást nyújtunk az OTP-hiteltermékek ügyintézésében. Jogi és pénzügyi segítséget nyújtanak szakértőink, hogy az adásvétel folyamata gördülékeny legyen. Amennyiben a vételár a kérdés, és úgy gondolja még nincs meg az összeg a leendő új otthonra? Lehet, hogy még is rendelkezésére áll a vételár csak még Ön nem is tudja? Tisztában van valóban az anyagi lehetőségeivel? Az áthidaló megoldásokkal? Esetleg csak az az akadály, hogy nem adta el még a saját ingatlanját? Nem gond, a tulajdonosaink, eladóink szívesen megvárják Önt, segítünk a gyors értékesítésben is. Ne maradjon le a vételről, ha már megtalálta a megfelelő új otthont! Szolgáltatásunk ingyenes, kizárólag sikeres értékesítés esetén van megbízási díj fizetési kötelezettség. A vevők is nálunk vannak és lehet az Ön ingatlanjára várnak?! Tudjon meg többet, hívjon bizalommal! Eladó ingatlanja van? Nincs vevője? Hívjon segítek az értékesítésben! Kedvező hitelajánlatokkal (BABAVÁRÓ hitel, piaci hitel, és szabadfelhasználású hitel) várjuk jelentkezését. Számos konstrukció közül választhatnak. Irodáink Szentes, Petőfi utca 12. (a buszmegálló felől) és Csongrád, Fő utca 54. szám alatt várja a személyes érdeklődőket. ***VÁLASSZUK KI EGYÜTT AZ ÖNNEK LEGMEGFELELŐBB AJÁNLATOT! BANKI SORBAN ÁLLÁS NÉLKÜL! ***
Tulajdonságok
Családi ház
2
Átlagos
Gázkazán
2000
Nem adta meg a hirdető
Vedd fel a kapcsolatot a hirdetővel
+36 70 429 5
Hitelkalkulátor
Második évtől
253 909 Ft A 13. hónaptól
7,99%
Végig fix Futamidő: 20 év Banki visszahívás
Az OTP Bank munkatársai a neked megfelelő napszakban veszik fel veled a kapcsolatot. A becslés a hirdető által megadott adatokon alapul. A jelen tájékoztatás nem minősül ajánlattételnek és nem teljes körű, az egyes feltételek a hitelbírálat eredményétől függően változhatnak. Kérjük, a részletekről tájékozódj az OTP Bank fiókjaiban vagy az OTP Bank honlapján közzétett vonatkozó Üzletszabályzatokból és Hirdetményekből.
Vedd fel a kapcsolatot a hirdetővel
+36 70 429 5
Vedd fel a kapcsolatot a hirdetővel
+36 70 429 5
UI_KIT.CHARACTER_COUNTER__COMPONENT.REMAINING_SPACE__SR_ONLYUI_KIT.CHARACTER_COUNTER__COMPONENT.MAXIMUM_CHARACTER__SR_ONLY
Hasonló eladó ingatlanok Szentesen
Frissítve: 13 napja

20
60 M Ft 352 942 Ft/m²
Eladó családi ház, Szentes

Frissítve: 12 napja

20
58 M Ft 394 558 Ft/m²
Eladó családi ház, Szentes
Frissítve: 20 napja

14
55 M Ft 275 000 Ft/m²
Eladó családi ház, Szentes


Fedezd fel a
hasonló házakat!Még további házak Szentesen 59 M Ft körüli értékben
Tovább a hirdetésekhez Frissítve: 13 napja

20
54,9 M Ft 392 143 Ft/m²
Eladó családi ház, Szentes

Frissítve: 7 napja

20
64 M Ft 293 578 Ft/m²
Eladó családi ház, Szentes
Frissítve: 3 napja

17
59 M Ft 245 833 Ft/m²
Eladó családi ház, Szentes


Töltsd fel hirdetésed ingyenesen!
Egyszerű