+17 fotó
Zenga
Premier
Hirdetéskód: 8850184
Referenciaszám: M320027
Feltöltve: ma
Szentes eladó családi ház 4+1 fél szobás: 34,9 millió Ft
34,9 millió Ft
283 740 Ft/m² *
* A m² árat a hirdető adta meg.
123 m²
701 m²
4+1 fél szoba

Friss hirdetések, amiket nem találsz meg más ingatlankereső portálon.
Fedezd fel elsőként a Zenga Premier címkés eladó ingatlanokat! További részletek A Duna House, OTP Ingatlanpont, Otthon Centrum és további hálózatok új, kizárólagos hirdetéseinek nagy részét a zenga.hu és koltozzbe.hu ingatlankeresőn láthatod legelőször, és a feltöltéstől két hétig nem érhetők el más ingatlankeresőn!
Leírás
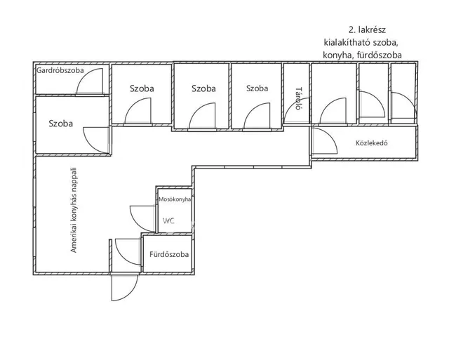
*** Csak az OTP Ingatlanpont kínálatában eladó Szentesen, közel a városközponthoz egy 701 nm-es telken elfekvő 125 nm-es, amerikai konyhás + 4 szobás családi ház, ahol a felújítási munkálatok egy része megtörtént, befejezése az új tulajdonosra vár. Milyen jó, hogy ÖN a saját ízlésére formálhatja! Hatalmas terek, kényelmes méretű helyiségek várják! Új, hőszigetelt műanyag nyílászárók vannak beépítve. A gázkazánnal történő fűtési rendszer kiépítése is megtörtént. A házhoz épített 25 nm-es külön bejáratú lakrészben egy szoba, konyha és fürdőszoba alakítható ki.
FONTOS! Készültségi állapotát tekintve hitelfelvételre nem alkalmas, csak készpénzes vásárlóknak ajánljuk! Amennyiben mégis hitelt szeretne a vevő, úgy csakis extra ingatlanfedezet bevonásával oldható meg! Amennyiben az OTP Ingatlanpont kínálatából választ, számíthat szakmai támogatásunkra a teljes vételi folyamat során az adásvételi szerződés megkötésétől a hitel-ügyintézésen át az ingatlan átadásáig. Ajánlom minden kedves ügyfelem részére az OTP Bank által közvetített Babaváró, CSOK PLUSZ, Otthon Start Hitelprogram vagy egyéb kölcsönök intézését. Az OTP Ingatlanpont kedvezményes pénzügyi konstrukciókkal áll ügyfelei rendelkezésére, és VIP-szolgáltatást nyújt az OTP-hiteltermékek, ügyintézésben. Kedvező hitelajánlatokkal (BABAVÁRÓ hitel, piaci hitel, és szabadfelhasználású hitel) várjuk jelentkezését. Számos konstrukció közül választhatnak. Irodáink Szentes, Petőfi u. 12. a buszmegálló felől és Csongrád, Fő u. 54. szám alatt várja a személyes érdeklődőket. ***VÁLASSZUK KI EGYÜTT AZ ÖNNEK LEGMEGFELELŐBB AJÁNLATOT! BANKI SORBAN ÁLLÁS NÉLKÜL! ***
Tulajdonságok
Családi ház
1
Felújítandó
Gázkazán
1960
Nem adta meg a hirdető
Vedd fel a kapcsolatot a hirdetővel
+36 70 677 4
Hitelkalkulátor
Második évtől
150 194 Ft A 13. hónaptól
7,99%
Végig fix Futamidő: 20 év Banki visszahívás
Az OTP Bank munkatársai a neked megfelelő napszakban veszik fel veled a kapcsolatot. A becslés a hirdető által megadott adatokon alapul. A jelen tájékoztatás nem minősül ajánlattételnek és nem teljes körű, az egyes feltételek a hitelbírálat eredményétől függően változhatnak. Kérjük, a részletekről tájékozódj az OTP Bank fiókjaiban vagy az OTP Bank honlapján közzétett vonatkozó Üzletszabályzatokból és Hirdetményekből.
Vedd fel a kapcsolatot a hirdetővel
+36 70 677 4
Vedd fel a kapcsolatot a hirdetővel
+36 70 677 4
UI_KIT.CHARACTER_COUNTER__COMPONENT.REMAINING_SPACE__SR_ONLYUI_KIT.CHARACTER_COUNTER__COMPONENT.MAXIMUM_CHARACTER__SR_ONLY
Hasonló eladó ingatlanok Szentesen
Feltöltve: 11 hónapja
1
31,5 M Ft 370 588 Ft/m²
Eladó családi ház, Szentes
Frissítve: 19 napja
20
35 M Ft 388 889 Ft/m²
Eladó családi ház, Szentes

Frissítve: 19 napja
14
37,5 M Ft 258 621 Ft/m²
Eladó családi ház, Szentes, Sáfrán Mihály utca


Fedezd fel a
hasonló házakat!Még további házak Csongrád megyében 34,9 M Ft körüli értékben
Tovább a hirdetésekhez Frissítve: 23 napja
20
32,9 M Ft 396 386 Ft/m²
Eladó családi ház, Szentes

Frissítve: 24 napja
10
36,9 M Ft 194 211 Ft/m²
Eladó családi ház, Szentes, Kisér utca

Frissítve: 2 napja
20
32,9 M Ft 396 386 Ft/m²
Eladó családi ház, Szentes

