+17 fotó
Hirdetéskód: 8975455
Referenciaszám: M320027-5198880
Feltöltve: ma
Szentes eladó családi ház 4+1 fél szobás: 30,9 millió Ft
30,9 millió Ft
251 220 Ft/m²
123 m²
701 m²
4+1 fél szoba
Eladó Ház, Szentes
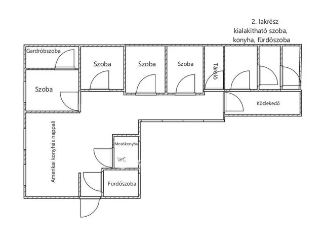
*** Csak az OTP Ingatlanpont kínálatában eladó Szentesen, közel a városközponthoz egy 701 nm-es telken elfekvő 150 nm-es, amerikai konyhás + 4 szobás családi ház, ahol a felújítási munkálatok egy része megtörtént, befejezése az új tulajdonosra vár. Milyen jó, hogy ÖN a saját ízlésére formálhatja! Hatalmas terek, kényelmes méretű helyiségek várják! Új, hőszigetelt műanyag nyílászárók vannak beépítve. A gázkazánnal történő fűtési rendszer kiépítése is megtörtént. A házhoz épített 25 nm-es külön bejáratú lakrészben egy szoba, konyha és fürdőszoba alakítható ki.
FONTOS! Készültségi állapotát tekintve hitelfelvételre nem alkalmas, csak készpénzes vásárlóknak ajánljuk! Amennyiben mégis hitelt szeretne a vevő, úgy csakis extra ingatlanfedezet bevonásával oldható meg! Amennyiben az OTP Ingatlanpont kínálatából választ, számíthat szakmai támogatásunkra a teljes vételi folyamat során az adásvételi szerződés megkötésétől a hitel-ügyintézésen át az ingatlan átadásáig. Ajánlom minden kedves ügyfelem részére az OTP Bank által közvetített Babaváró, CSOK PLUSZ, Otthon Start Hitelprogram vagy egyéb kölcsönök intézését. Az OTP Ingatlanpont kedvezményes pénzügyi konstrukciókkal áll ügyfelei rendelkezésére, és VIP-szolgáltatást nyújt az OTP-hiteltermékek, ügyintézésben. Kedvező hitelajánlatokkal (BABAVÁRÓ hitel, piaci hitel, és szabadfelhasználású hitel) várjuk jelentkezését. Számos konstrukció közül választhatnak. Irodáink Szentes, Petőfi u. 12. a buszmegálló felől és Csongrád, Fő u. 54. szám alatt várja a személyes érdeklődőket. ***VÁLASSZUK KI EGYÜTT AZ ÖNNEK LEGMEGFELELŐBB AJÁNLATOT! BANKI SORBAN ÁLLÁS NÉLKÜL! ***
Érdeklődni: Szlovák Ibolya +36704550993
Referencia szám: M320027-ZE
Tulajdonságok
Családi ház
Felújítandó
Gázkazán
1960
Nem adta meg a hirdető
Vedd fel a kapcsolatot a hirdetővel
+36 70 455 0
Hitelkalkulátor
Második évtől
132 980 Ft A 13. hónaptól
7,99%
Végig fix Futamidő: 20 év Banki visszahívás
Az OTP Bank munkatársai a neked megfelelő napszakban veszik fel veled a kapcsolatot. A becslés a hirdető által megadott adatokon alapul. A jelen tájékoztatás nem minősül ajánlattételnek és nem teljes körű, az egyes feltételek a hitelbírálat eredményétől függően változhatnak. Kérjük, a részletekről tájékozódj az OTP Bank fiókjaiban vagy az OTP Bank honlapján közzétett vonatkozó Üzletszabályzatokból és Hirdetményekből.
Vedd fel a kapcsolatot a hirdetővel
+36 70 455 0
Vedd fel a kapcsolatot a hirdetővel
+36 70 455 0
UI_KIT.CHARACTER_COUNTER__COMPONENT.ACTUAL_CHARACTER__SR_ONLY UI_KIT.CHARACTER_COUNTER__COMPONENT.MAXIMUM_CHARACTER__SR_ONLY
Hasonló eladó ingatlanok Szentesen
Frissítve: 2 napja
11
28,5 M Ft 375 000 Ft/m²
Eladó családi ház, Szentes
Feltöltve: 1 éve
1
31,5 M Ft 370 588 Ft/m²
Eladó családi ház, Szentes
Frissítve: 11 napja
12
29,5 M Ft 230 469 Ft/m²
Eladó családi ház, Szentes

Fedezd fel a
hasonló házakat!Még további házak Szentesen 30,9 M Ft körüli értékben
Tovább a hirdetésekhez Frissítve: 11 napja
13
29,8 M Ft 259 130 Ft/m²
Eladó családi ház, Szentes
Frissítve: 11 napja
19
31 M Ft 238 462 Ft/m²
Eladó családi ház, Szentes

Frissítve: 11 napja
20
32,9 M Ft 396 386 Ft/m²
Eladó családi ház, Szentes

