+13 fotó
Zenga
Premier
Hirdetéskód: 8880116
Referenciaszám: M320790
Feltöltve: ma
Szigethalom eladó családi ház 5+5 fél szobás: 54,9 millió Ft
54,9 millió Ft
217 858 Ft/m² *
* A m² árat a hirdető adta meg.
252 m²
688 m²
5+5 fél szoba

Friss hirdetések, amiket nem találsz meg más ingatlankereső portálon.
Fedezd fel elsőként a Zenga Premier címkés eladó ingatlanokat! További részletek A Duna House, OTP Ingatlanpont, Otthon Centrum és további hálózatok új, kizárólagos hirdetéseinek nagy részét a zenga.hu és koltozzbe.hu ingatlankeresőn láthatod legelőször, és a feltöltéstől két hétig nem érhetők el más ingatlankeresőn!
Leírás
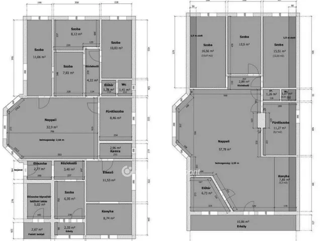
Kétgenerációs, nagy alapterületű családi ház eladó Szigethalmon ? kiváló elhelyezkedéssel!
Szigethalmon, a buszállomás közvetlen közelében kínálunk megvételre egy kétgenerációs kialakításra alkalmas, teljes körűen felújítandó családi házat, amely kiváló lehetőség befektetőknek, nagycsaládosoknak vagy akár munkásszálló / bérbeadás céljára is.
Az ingatlan kétszintes, összesen 252 nm alapterületű, 10 szobával, így rendkívül sokoldalúan alakítható. A 688 nm-es telek megfelelő méretet biztosít további fejlesztésekhez, parkoláshoz vagy kert kialakításához.
Főbb paraméterek:
- kiváló lokáció, buszállomás közelében
- két szintes, 252 nm lakóterület
- 10 szoba
- 688 nm-es telek
- kétgenerációs vagy többfunkciós használatra alkalmas
- teljesen felújítandó állapot
- közművek jelenleg kikötve
Az ingatlan elhelyezkedése miatt kiváló közlekedéssel rendelkezik, a mindennapi élethez szükséges infrastruktúra gyorsan elérhető. A nagy alapterület és a sok szoba komoly értéknövelési potenciált rejt magában egy átgondolt felújítást követően.
A kínálatunkból választott ingatlan finanszírozásához kedvezményes hitel- és lízingkonstrukciókat kínálunk. Az adásvételi szerződés megkötéséhez igény szerint megbízható ügyvédi közreműködést biztosítunk, és segítséget nyújtunk az adásvételhez kapcsolódó ügyek intézéséhez. Amennyiben felkeltettem érdeklődését, keressen bizalommal, akár hétvégén is.
Referenciaszám: M320790
Tulajdonságok
Családi ház
2
Felújítandó
Nincs fűtés
1997
Nem adta meg a hirdető
Vedd fel a kapcsolatot a hirdetővel
Hackenberger Rita Szigetszentmiklós Tököli út 19.B - OTP Ingatlanpont Iroda Az iroda összes hirdetése
+36 70 423 8
Hitelkalkulátor
Második évtől
236 265 Ft A 13. hónaptól
7,99%
Végig fix Futamidő: 20 év Banki visszahívás
Az OTP Bank munkatársai a neked megfelelő napszakban veszik fel veled a kapcsolatot. A becslés a hirdető által megadott adatokon alapul. A jelen tájékoztatás nem minősül ajánlattételnek és nem teljes körű, az egyes feltételek a hitelbírálat eredményétől függően változhatnak. Kérjük, a részletekről tájékozódj az OTP Bank fiókjaiban vagy az OTP Bank honlapján közzétett vonatkozó Üzletszabályzatokból és Hirdetményekből.
Vedd fel a kapcsolatot a hirdetővel
Hackenberger Rita Szigetszentmiklós Tököli út 19.B - OTP Ingatlanpont Iroda Az iroda összes hirdetése
+36 70 423 8
Vedd fel a kapcsolatot a hirdetővel
Hackenberger Rita Szigetszentmiklós Tököli út 19.B - OTP Ingatlanpont Iroda Az iroda összes hirdetése
+36 70 423 8
UI_KIT.CHARACTER_COUNTER__COMPONENT.REMAINING_SPACE__SR_ONLYUI_KIT.CHARACTER_COUNTER__COMPONENT.MAXIMUM_CHARACTER__SR_ONLY
Hasonló eladó ingatlanok Szigethalmon
Frissítve: 3 napja
20
54,9 M Ft 1 220 000 Ft/m²
Eladó sorház, Szigethalom

Frissítve: 4 napja
20
55,1 M Ft 655 952 Ft/m²
Eladó családi ház, Szigethalom

Frissítve: 19 napja
1
59,9 M Ft 1 497 500 Ft/m²
Eladó családi ház, Szigethalom

Fedezd fel a
hasonló házakat!Még további házak Pest megyében 54,9 M Ft körüli értékben
Tovább a hirdetésekhez Frissítve: 16 napja
20
55,1 M Ft 655 953 Ft/m²
Eladó családi ház, Szigethalom

Feltöltve: 30 napja
13
60 M Ft 500 000 Ft/m²
Eladó családi ház, Szigethalom
Feltöltve: 2 hónapja
11
59,9 M Ft 921 538 Ft/m²
Eladó sorház, Szigethalom
