+17 fotó
Hirdetéskód: 8790818
Referenciaszám: 389752
Feltöltve: 2 napja
Szigetszentmárton eladó családi ház 3 szobás: 148,5 millió Ft
148,5 millió Ft
475 962 Ft/m²
312 m²
1218 m²
3 szoba
Eladó családi ház Szigetszentmárton, 312nm, 148.500.000Ft - Ráckevei út
Eladó önálló családi ház vendéglátóegységgel!
Szigetszentmártonban kínálunk megvételre egy nettó 312 nm alapterületű önálló családi házat 1218 nm-es telken.
Az ingatlan jelenleg ételbárként üzemel, tulajdoni lap szerint : kivett lakóház, udvar, tároló, cukrászműhely, cukrászda besorolású és kialakítású.
Ebből adódóan kíváló lehet más tipusú vállalkozás üzemeltetésére is, továbbá a tetőtéri lakás kiadása is bevételt generálhat.
Azonban átalakítással tágas, több generáció együttélésére alkalmas családi ház lehet.
Az ingatlan 1993-ban Porotherm téglából épült, 5 cm-es külső szigeteléssel.
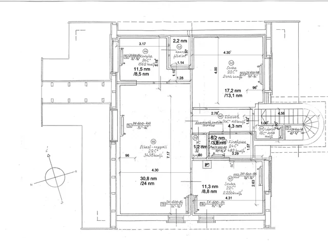
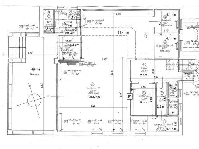
A földszinten melynek hasznos alapterülete: 106,6 nm + 40 nm terasz, és a pinceszinten 103,2 nm működik az ételbár, a tetőtérben egy 82,3 nm alapterületű lakás van kialakítva.
A lakás alapterülete 82,3 nm.
Beosztása-
- előszoba,
- nappali+ étkező,
- konyha,
- kamra,
- hálószoba,
- hálószoba,
- fürdőszoba,
- WC.
A lakásrészben 2021-ben történt felújítás:
- új burkolatok, fürdőszoba, konyhabútor új ajtókat kapott, új főzőlap,
sütő, elszívó,
- új klíma, új villanybojler,
- az eredeti fa, dupla thermo üvegezésű nyílászárókat átfestették.
A lakásnak külön mérőórái vannak.
2021-ben a termelő részben végzett felújítások:
- új műanyag nyílászárók, részleges padlófelújítás,
- hűtőkamra ajtaját cserélték, új aggregátor,
A fűtést és melegvizet gázkazán biztosítja radiátoros hőleadással.
- ipari gázóra és ipari áram van.
- az ingatlanban 2 db hűtő-fűtő klíma működik.
A telken található még egy 60 nm-es épület, 2 autónak garázs+ tároló, tetőszerkezetét 2020-ban felújították.
Az udvar térkövezett, több autónak beállási lehetőséget biztosítva.
Az ingatlannak két utcáról van bejárata.
Amivel segítjük az Ön ingatlanvásárlását:
- ingyenes hitelügyintézés,
- jogi háttér,
- földhivatali ügyintézés,
- energetikai tanúsítvány,
- a vevő számára az ingatlanközvetítés ingyenes.
Irodánk 30 éves szakmai tapasztalattal áll ügyfelei rendelkezésére!
Várom szíves megkeresését! ...TOVÁBBI, TÖBBEZRES INGATLAN KÍNÁLAT: www.gdn-ingatlan.hu - GDN azonosító: 389752
Tulajdonságok
Családi ház
3
Jó állapotú
Gáz (héra)
1993
70 m²
Nem adta meg a hirdető
Vedd fel a kapcsolatot a hirdetővel
+36 70 269 5
Hitelkalkulátor
Második évtől
639 076 Ft A 13. hónaptól
7,99%
Végig fix Futamidő: 20 év Banki visszahívás
Az OTP Bank munkatársai a neked megfelelő napszakban veszik fel veled a kapcsolatot. A becslés a hirdető által megadott adatokon alapul. A jelen tájékoztatás nem minősül ajánlattételnek és nem teljes körű, az egyes feltételek a hitelbírálat eredményétől függően változhatnak. Kérjük, a részletekről tájékozódj az OTP Bank fiókjaiban vagy az OTP Bank honlapján közzétett vonatkozó Üzletszabályzatokból és Hirdetményekből.
Vedd fel a kapcsolatot a hirdetővel
+36 70 269 5
Vedd fel a kapcsolatot a hirdetővel
+36 70 269 5
UI_KIT.CHARACTER_COUNTER__COMPONENT.REMAINING_SPACE__SR_ONLYUI_KIT.CHARACTER_COUNTER__COMPONENT.MAXIMUM_CHARACTER__SR_ONLY
Hasonló eladó ingatlanok Szigetszentmártonban
Feltöltve: 8 hónapja
1
150 M Ft 652 174 Ft/m²
Eladó családi ház, Szigetszentmárton, Erdősor utca 203
Feltöltve: 5 hónapja
16
149,9 M Ft 832 778 Ft/m²
Eladó családi ház, Szigetszentmárton

Frissítve: 26 napja
20
159 M Ft 1 325 000 Ft/m²
Eladó családi ház, Szigetszentmárton


Fedezd fel a
hasonló házakat!Még további házak Pest megyében 148,5 M Ft körüli értékben
Tovább a hirdetésekhez Frissítve: 7 napja
20
159 M Ft 1 325 000 Ft/m²
Eladó családi ház, Szigetszentmárton

Frissítve: 27 napja
15
159 M Ft 1 325 000 Ft/m²
Eladó családi ház, Szigetszentmárton

Frissítve: 2 napja
20
150 M Ft 576 923 Ft/m²
Eladó családi ház, Szigetszentmárton


Töltsd fel hirdetésed ingyenesen!
Egyszerű
