+9 fotó
Hirdetéskód: 8799970
Referenciaszám: 345806
Frissítve: 13 napja
Szigetszentmiklós eladó családi ház 5 szobás: 129 millió Ft
129 millió Ft
941 606 Ft/m² *
* A m² árat a hirdető adta meg.
137 m²
700 m²
5 szoba
Eladó Ház, Szigetszentmiklós 129.000.000 Ft
Szigetszentmiklós közkedvelt részén, rendezett családi házas övezetben, zsákutcában épülő az M0 autóút mindössze néhány perces elérésével eladó három darab magas műszaki tartalommal épülő, 137 m²-es, önálló családi ház, 700 m²-es, teljesen körbekerített telekkel.
A környék csendes, kulturált, nem Bucka része — ideális választás azoknak, akik nyugalmat szeretnének, de fontos számukra a gyors és kényelmes közlekedés Budapest irányába.
Minőségi szerkezet és korszerű építési megoldások
A ház stabil, 30 cm-es Porotherm téglafallal és 15 cm hőszigeteléssel készül, amelyhez modern, 3 rétegű műanyag nyílászárók, redőnyök, szúnyoghálók és párkányok tartoznak.
A fa födém 30 cm szigetelést kap, a tetőn betoncserép biztosít tartósságot és esztétikus megjelenést.
Energiatakarékos, jövőbe mutató gépészet
• Hőszivattyús padlófűtés a teljes házban
• Energiatakarékos villanybojler a meleg vízhez
• Klímaberendezés a kellemes hőérzetért
• Riasztórendszer előkészítéssel az extra biztonságért
Átgondolt alaprajz – tágas terek, kényelmes otthon
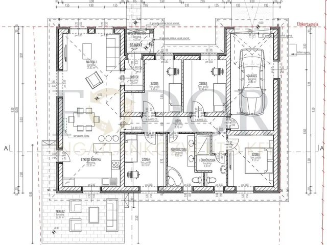
A 137 m²-es ház amerikai konyhás nappalival, négy külön nyíló hálószobával és két fürdőszobával készül, így kiválóan alkalmas nagyobb családok számára is.
A gépkocsit saját garázs várja, elektromos kapuval.
Az ár tartalmazza a következő extrákat is:
• elektromos garázskapu és nagykapu
• kaputelefon
• hidegburkolat választható 10 000 Ft/m² értékben
• melegburkolat választható 6 000 Ft/m² értékben
• térkövezett járda és parkoló a garázs előtt
Jogilag rendezett, céges kivitelezéssel
Ár: Az ingatlan ára 129 MFt
A leírás és az alaprajz kizárólag tájékoztató jelleggel készült
IRODÁNK INGYENES HITELÜGYINTÉZÉSSEL, TANÁCSADÁSSAL, SZÁMOS BANK
AJÁNLATÁVAL, OTTHON START HITELLEL ÉS ÚJ CSOK PLUSZ FOLYÓSÍTÁSÁVAL VÁRJA ÜGYFELEIT.
Az ár kulcsrakész állapotra vonatkozik.
Tervezett átadás: 2025 II. negyedév.
Tulajdonságok
Családi ház
1
Új építésű
2025
Nem adta meg a hirdető
Vedd fel a kapcsolatot a hirdetővel
+36 30 308 7
Hitelkalkulátor
Második évtől
555 157 Ft A 13. hónaptól
7,99% 8,49%
Végig fix Futamidő: 20 év Banki visszahívás
Az OTP Bank munkatársai a neked megfelelő napszakban veszik fel veled a kapcsolatot. A becslés a hirdető által megadott adatokon alapul. A jelen tájékoztatás nem minősül ajánlattételnek és nem teljes körű, az egyes feltételek a hitelbírálat eredményétől függően változhatnak. Kérjük, a részletekről tájékozódj az OTP Bank fiókjaiban vagy az OTP Bank honlapján közzétett vonatkozó Üzletszabályzatokból és Hirdetményekből.
Vedd fel a kapcsolatot a hirdetővel
+36 30 308 7
Vedd fel a kapcsolatot a hirdetővel
+36 30 308 7
UI_KIT.CHARACTER_COUNTER__COMPONENT.REMAINING_SPACE__SR_ONLYUI_KIT.CHARACTER_COUNTER__COMPONENT.MAXIMUM_CHARACTER__SR_ONLY
Hasonló eladó ingatlanok Szigetszentmiklóson
Frissítve: 1 napja
20
139,99 M Ft 619 425 Ft/m²
Eladó családi ház, Szigetszentmiklós

Frissítve: 12 napja
20
135 M Ft 843 750 Ft/m²
Eladó családi ház, Szigetszentmiklós, Fenyő u8tca közeli utca

Frissítve: 12 napja
12
135 M Ft 750 000 Ft/m²
Eladó családi ház, Szigetszentmiklós, Szigetszentmiklós kertvárosi részén


Fedezd fel a
hasonló házakat!Még további házak Szigetszentmiklóson 129 M Ft körüli értékben
Tovább a hirdetésekhez Frissítve: 13 napja
20
139,99 M Ft 619 425 Ft/m²
Eladó családi ház, Szigetszentmiklós, Föveny köz

Frissítve: 1 napja
20
139,99 M Ft 619 425 Ft/m²
Eladó családi ház, Szigetszentmiklós

Frissítve: 12 napja
20
120 M Ft 857 143 Ft/m²
Eladó családi ház, Szigetszentmiklós, Központ Közeli utca

