+12 fotó
Hirdetéskód: 8919210
Referenciaszám: M321687-5168161
Frissítve: 16 napja
Szikszó eladó családi ház 2 szobás: 32,9 millió Ft
32,9 millió Ft
506,2 ezer Ft/m²
65 m²
720 m²
2 szoba
Eladó Ház, Szikszó
Kizárólag az OTP kínálatában
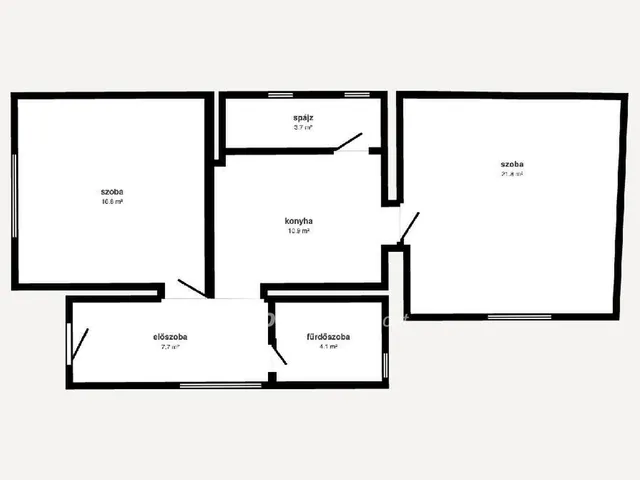
Eladásra kínálunk Szikszó nyugodt utcájában egy 79 nm-es téglából és szilikátból épült felújított családi házat , mely egy 720 nm-es telken helyezkedik el. Az ingatlanban redőnnyel felszerelt műanyag nyílászárók kerültek beépítésre, továbbá a fürdőszoba, szennyvízhálózat-,valamint villamoshálózat korszerűsítése is megtörtént. Az ingatlan fűtéséről hűtő-fűtő inverteres klímák, továbbá szintén az utóbbi években cserélt gázkonvektorok gondoskodnak, a meleg vizet pedig villanybojler biztosítja. Az ingatlan egyedülállóknak illetve pároknak is egyaránt ideális választás lehet a környék infrastruktúrája miatt. Buszmegálló, boltok, óvoda, iskola , kórház mind elérhető távolságban találhatók, továbbá a HELL közelsége miatt befektetési szempontból is egy értékálló beruházás. Hívjon és tekintsük meg együtt, akár hétvégén is! OTP Banki hátterünknek köszönhetően finanszírozási igényekben (pl. Otthon Start Program, Babaváró, Falusi CSOK, CSOK Plusz, Lakáshitel, Személyi kölcsön stb.), illetve biztosítások tekintetében is díjmentesen, soron kívüli ügyintézéssel segítem ügyfeleim! Igény esetén adásvételi szerződéshez ügyvédet biztosítunk. Referenciaszám: M321687
Referencia szám: M321687
Tulajdonságok
Családi ház
Jó állapotú
Gáz (konvektor)
1982
Nem adta meg a hirdető
Vedd fel a kapcsolatot a hirdetővel

Dandásné Fábián Klaudia
OTPip - Miskolc Corvin utca 1-3 - OTP Ingatlanpont Iroda
Az iroda összes hirdetése +36 30 340 6
Hitelkalkulátor
Második évtől
141 587 Ft A 13. hónaptól
7,99%
Végig fix Futamidő: 20 év Banki visszahívás
Az OTP Bank munkatársai a neked megfelelő napszakban veszik fel veled a kapcsolatot. A becslés a hirdető által megadott adatokon alapul. A jelen tájékoztatás nem minősül ajánlattételnek és nem teljes körű, az egyes feltételek a hitelbírálat eredményétől függően változhatnak. Kérjük, a részletekről tájékozódj az OTP Bank fiókjaiban vagy az OTP Bank honlapján közzétett vonatkozó Üzletszabályzatokból és Hirdetményekből.
Vedd fel a kapcsolatot a hirdetővel

Dandásné Fábián Klaudia
OTPip - Miskolc Corvin utca 1-3 - OTP Ingatlanpont Iroda
Az iroda összes hirdetése +36 30 340 6
Vedd fel a kapcsolatot a hirdetővel

Dandásné Fábián Klaudia
OTPip - Miskolc Corvin utca 1-3 - OTP Ingatlanpont Iroda
Az iroda összes hirdetése +36 30 340 6
UI_KIT.CHARACTER_COUNTER__COMPONENT.ACTUAL_CHARACTER__SR_ONLY UI_KIT.CHARACTER_COUNTER__COMPONENT.MAXIMUM_CHARACTER__SR_ONLY
Hasonló eladó ingatlanok Szikszón
Frissítve: 10 napja
17
34 millió Ft 323,8 ezer Ft/m²
Eladó családi ház, Szikszó

Frissítve: 16 napja
15
32,9 millió Ft 506,2 ezer Ft/m²
Eladó családi ház, Szikszó

Frissítve: 16 napja
15
32,9 millió Ft 506,2 ezer Ft/m²
Eladó családi ház, Szikszó


Fedezd fel a
hasonló házakat!Még további házak Szikszón 32,9 M Ft körüli értékben
Tovább a hirdetésekhez Frissítve: 16 napja
15
32,9 millió Ft 506,2 ezer Ft/m²
Eladó családi ház, Szikszó

Frissítve: 16 napja
15
35,9 millió Ft 552,3 ezer Ft/m²
Eladó családi ház, Szikszó

Frissítve: 1 hónapja
19
36 millió Ft 310,3 ezer Ft/m²
Eladó családi ház, Szikszó
