+12 fotó
Hirdetéskód: 8935207
Referenciaszám: M321687-5178396
Feltöltve: ma
Szikszó eladó családi ház 2 szobás: 32,9 millió Ft
32,9 millió Ft
506 154 Ft/m²
65 m²
720 m²
2 szoba
Eladó Ház, Szikszó
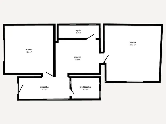
Eladásra kínálunk Szikszó nyugodt utcájában egy 79 nm-es téglából és szilikátból épült felújított családi házat , mely egy 720 nm-es telken helyezkedik el. Az ingatlanban redőnnyel felszerelt műanyag nyílászárók kerültek beépítésre, továbbá a fürdőszoba, szennyvízhálózat-,valamint villamoshálózat korszerűsítése is megtörtént. Az ingatlan fűtéséről hűtő-fűtő inverteres klímák, továbbá szintén az utóbbi években cserélt gázkonvektorok gondoskodnak, a meleg vizet pedig villanybojler biztosítja. Az ingatlan egyedülállóknak illetve pároknak is egyaránt ideális választás lehet a környék infrastruktúrája miatt. Buszmegálló, boltok, óvoda, iskola , kórház mind elérhető távolságban találhatók, továbbá a HELL közelsége miatt befektetési szempontból is egy értékálló beruházás. Hívjon és tekintsük meg együtt, akár hétvégén is! OTP Banki hátterünknek köszönhetően finanszírozási igényekben (pl. Otthon Start Program, Babaváró, Falusi CSOK, CSOK Plusz, Lakáshitel, Személyi kölcsön stb.), illetve biztosítások tekintetében is díjmentesen, soron kívüli ügyintézéssel segítem ügyfeleim! Igény esetén adásvételi szerződéshez ügyvédet biztosítunk. Referenciaszám: M321687
Tulajdonságok
Családi ház
Jó állapotú
Gáz (konvektor)
1982
Nem adta meg a hirdető
Vedd fel a kapcsolatot a hirdetővel
+36 20 315 3
Hitelkalkulátor
Második évtől
141 587 Ft A 13. hónaptól
7,99%
Végig fix Futamidő: 20 év Banki visszahívás
Az OTP Bank munkatársai a neked megfelelő napszakban veszik fel veled a kapcsolatot. A becslés a hirdető által megadott adatokon alapul. A jelen tájékoztatás nem minősül ajánlattételnek és nem teljes körű, az egyes feltételek a hitelbírálat eredményétől függően változhatnak. Kérjük, a részletekről tájékozódj az OTP Bank fiókjaiban vagy az OTP Bank honlapján közzétett vonatkozó Üzletszabályzatokból és Hirdetményekből.
Vedd fel a kapcsolatot a hirdetővel
+36 20 315 3
Vedd fel a kapcsolatot a hirdetővel
+36 20 315 3
UI_KIT.CHARACTER_COUNTER__COMPONENT.ACTUAL_CHARACTER__SR_ONLY UI_KIT.CHARACTER_COUNTER__COMPONENT.MAXIMUM_CHARACTER__SR_ONLY
Hasonló eladó ingatlanok Szikszón
Frissítve: 1 napja
17
34 M Ft 323 810 Ft/m²
Eladó családi ház, Szikszó

Frissítve: 9 napja
15
32,9 M Ft 506 154 Ft/m²
Eladó családi ház, Szikszó

Frissítve: 8 napja
15
32,9 M Ft 506 154 Ft/m²
Eladó családi ház, Szikszó


Fedezd fel a
hasonló házakat!Még további házak Szikszón 32,9 M Ft körüli értékben
Tovább a hirdetésekhez Feltöltve: 16 napja
17
31 M Ft 402 598 Ft/m²
Eladó sorház, Szikszó

Frissítve: 6 napja
15
32,9 M Ft 506 154 Ft/m²
Eladó családi ház, Szikszó

Frissítve: 15 napja
17
31 M Ft 402 597 Ft/m²
Eladó sorház, Szikszó

