+13 fotó
Zenga
Premier
Hirdetéskód: 8766885
Referenciaszám: M316260
Feltöltve: 1 napja
Tab eladó családi ház 4 szobás: 46,9 millió Ft
46,9 millió Ft
271 099 Ft/m² *
* A m² árat a hirdető adta meg.
173 m²
752 m²
4 szoba

Friss hirdetések, amiket nem találsz meg más ingatlankereső portálon.
Fedezd fel elsőként a Zenga Premier címkés eladó ingatlanokat! További részletek A Duna House, OTP Ingatlanpont, Otthon Centrum és további hálózatok új, kizárólagos hirdetéseinek nagy részét a zenga.hu és koltozzbe.hu ingatlankeresőn láthatod legelőször, és a feltöltéstől két hétig nem érhetők el más ingatlankeresőn!
Leírás
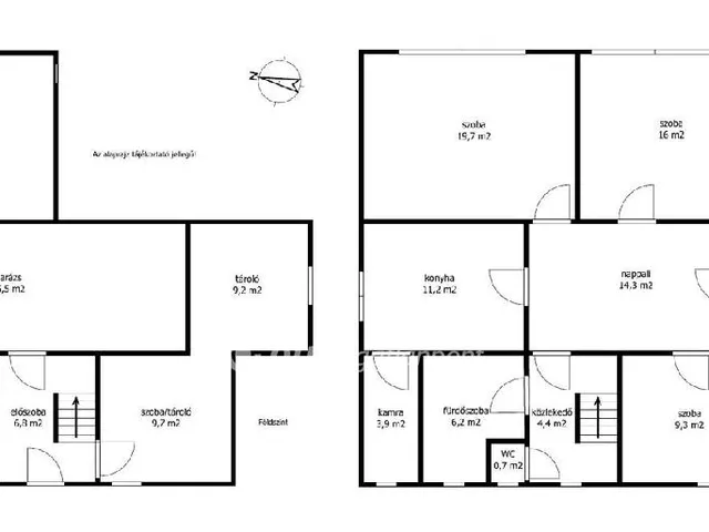
Somogy megye, Tab, 173 m2 családi ház, 752 m2 telek eladó. Az ingatlan a település lakóövezetében helyezkedik el, csendes, nyugodt környezetben. A két szintes épület emelete nappali + 3 szobás, földszintje könnyen lakótérré alakítható, a tetőtér további lehetőségeket nyújt. Az ingatlan értékét tovább növeli a gyümölcsfákkal teli kert, illetve a vezetékes vízzel, WC-vel, ipari árammal ellátott melléképület. A ház központi fűtését cirko gázkazán és fatüzelésű kazán is biztosítja, de lehetőség van kályhával, illetve cserépkályhával való fűtésre is. A két szint kívülről és belülről is elérhető, összenyitva vagy külön-külön is használható, így akár többgenerációs családoknak is kiválóan alkalmas. Parkolni garázsban, a zárt udvaron, valamint közterületen ingyenesen lehet. A kisváros kiváló infrastruktúrával rendelkezik, iskolák, egészségház, művelődési ház, uszoda, játszóterek, sportcsarnok, munkalehetőségek teszik kedvelt, jól élhető településsé. Az ingatlan hitelképes, igény esetén egyedi partnerkedvezményt biztosítunk, illetve a település besorolása alapján falusi CSOK is igényelhető. Otthon Start Hitelprogram. Bővebb információért keressen telefonon!
Tulajdonságok
Családi ház
2
Felújítandó
Gázkazán
1976
Nem adta meg a hirdető
Vedd fel a kapcsolatot a hirdetővel
+36 70 316 3
Hitelkalkulátor
Második évtől
201 836 Ft A 13. hónaptól
7,99%
Végig fix Futamidő: 20 év Banki visszahívás
Az OTP Bank munkatársai a neked megfelelő napszakban veszik fel veled a kapcsolatot. A becslés a hirdető által megadott adatokon alapul. A jelen tájékoztatás nem minősül ajánlattételnek és nem teljes körű, az egyes feltételek a hitelbírálat eredményétől függően változhatnak. Kérjük, a részletekről tájékozódj az OTP Bank fiókjaiban vagy az OTP Bank honlapján közzétett vonatkozó Üzletszabályzatokból és Hirdetményekből.
Vedd fel a kapcsolatot a hirdetővel
+36 70 316 3
Vedd fel a kapcsolatot a hirdetővel
+36 70 316 3
UI_KIT.CHARACTER_COUNTER__COMPONENT.REMAINING_SPACE__SR_ONLYUI_KIT.CHARACTER_COUNTER__COMPONENT.MAXIMUM_CHARACTER__SR_ONLY
Hasonló eladó ingatlanok Tabon
Frissítve: 3 napja
18
49,9 M Ft 804 839 Ft/m²
Eladó családi ház, Tab

Frissítve: 7 napja
20
50 M Ft 333 333 Ft/m²
Eladó családi ház, Porrogszentkirály

Frissítve: 19 napja
15
44,5 M Ft 556 250 Ft/m²
Eladó családi ház, Karád


Fedezd fel a
hasonló házakat!Még további házak Somogy megyében 46,9 M Ft körüli értékben
Tovább a hirdetésekhez Frissítve: 19 napja
15
45,2 M Ft 565 000 Ft/m²
Eladó családi ház, Látrány

Frissítve: 7 napja
20
49,5 M Ft 430 435 Ft/m²
Eladó családi ház, Kaposmérő, Kossuth Lajos utca

Frissítve: 3 napja
11
49,9 M Ft 1 108 889 Ft/m²
Eladó sorház, Balatonlelle


Töltsd fel hirdetésed ingyenesen!
Egyszerű
