+17 fotó
Hirdetéskód: 8982141
Referenciaszám: M326822-5208462
Feltöltve: 1 napja
Takácsi eladó családi ház 3 szobás: 19,9 millió Ft
19,9 millió Ft
165,8 ezer Ft/m²
120 m²
1600 m²
3 szoba
Eladó Ház, Takácsi
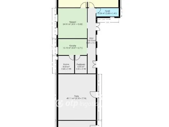
Eladásra kínálunk Veszprém vármegyében, Takácsi településen egy 120 m2 alapterületű, tégla falazatú, felújítandó családi házat, amely 1600 m2-es telken helyezkedik el. Az ingatlan 2 szoba + nappali elrendezésű, helyiségei között megtalálható továbbá a fürdőszoba WC-vel, folyosó, kamra, valamint tároló és padlásfeljáró, ami praktikus kialakítást biztosít a mindennapi használathoz.
A ház a 1960-as években épült, parasztház jellegű kialakítással rendelkezik, részben műanyag, részben fa nyílászárókkal felszerelve. A fűtésről cserépkályha, valamint a nappaliban elhelyezett klíma gondoskodik, a tetőszerkezet pedig korához képest jó állapotú, állószékes szerkezetű, 40 cm kőzetgyapot szigeteléssel ellátva. Az ingatlanhoz két nagy méretű, tégla falazatú istálló is tartozik, amely kiváló lehetőséget biztosít gazdálkodásra, tárolásra vagy akár műhely kialakítására.
Takácsi Pápa közvetlen közelében található, így a városi szolgáltatások - üzletek, iskola, egészségügyi ellátás- rövid idő alatt elérhetők, míg a 83-as főút gyors kapcsolatot biztosít Győr és Veszprém irányába. A települést csendes, nyugodt környezet és rendezett lakókörnyezet jellemzi, amely ideális választás családok vagy természetközeli életet keresők számára. Kedvező elhelyezkedésének és a tágas teleknek köszönhetően az ingatlan kiváló lehetőség saját otthon kialakítására vagy befektetési célra egyaránt.
Referencia szám: M326822
Tulajdonságok
Családi ház
Átlagos
Egyéb
1960
Nem adta meg a hirdető
Vedd fel a kapcsolatot a hirdetővel
+36 70 601 6
Hitelkalkulátor
Második évtől
85 641 Ft A 13. hónaptól
7,99%
Végig fix Futamidő: 20 év Banki visszahívás
Az OTP Bank munkatársai a neked megfelelő napszakban veszik fel veled a kapcsolatot. A becslés a hirdető által megadott adatokon alapul. A jelen tájékoztatás nem minősül ajánlattételnek és nem teljes körű, az egyes feltételek a hitelbírálat eredményétől függően változhatnak. Kérjük, a részletekről tájékozódj az OTP Bank fiókjaiban vagy az OTP Bank honlapján közzétett vonatkozó Üzletszabályzatokból és Hirdetményekből.
Vedd fel a kapcsolatot a hirdetővel
+36 70 601 6
Vedd fel a kapcsolatot a hirdetővel
+36 70 601 6
UI_KIT.CHARACTER_COUNTER__COMPONENT.ACTUAL_CHARACTER__SR_ONLY UI_KIT.CHARACTER_COUNTER__COMPONENT.MAXIMUM_CHARACTER__SR_ONLY
Hasonló eladó ingatlanok Takácsiban
Frissítve: 3 napja
20
18 millió Ft 156,5 ezer Ft/m²
Eladó családi ház, Takácsi

Frissítve: 17 napja
18
18 millió Ft 150 ezer Ft/m²
Eladó családi ház, Takácsi

Frissítve: 17 napja
13
18 millió Ft 150 ezer Ft/m²
Eladó egyéb ház, Takácsi

Fedezd fel a
hasonló házakat!Még további házak Veszprém megyében 19,9 M Ft körüli értékben
Tovább a hirdetésekhez Feltöltve: 14 napja
20
19,9 millió Ft 165,8 ezer Ft/m²
Eladó családi ház, Takácsi

Feltöltve: 13 napja
20
19,9 millió Ft 165,8 ezer Ft/m²
Eladó családi ház, Takácsi

Frissítve: 17 napja
17
19,9 millió Ft 326,2 ezer Ft/m²
Eladó családi ház, Kemeneshőgyész
