

+18 fotó
Hirdetéskód: 8728633
Referenciaszám: M310942-5022864
Frissítve: ma
Tápiószőlős eladó családi ház 1+2 fél szobás: 12,99 millió Ft
12,99 millió Ft
240 556 Ft/m²
54 m²
700 m²
1+2 fél szoba
Eladó Ház, Tápiószőlős
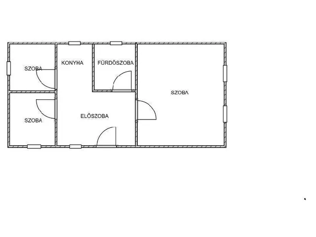
Budapesttől egy órára, 70 km-re, Pest vármegye, Tápiószőlős településen 54,7 nm-es, felújítandó családi ház eladó. A tégla falazatú ingatlan 1999-ben épült. A házban egy szoba, 2 félszoba, konyha, fürdő/WC található. Az otthon melegéről jelenleg kályha gondoskodik, de a gáz is bevezetésre került. A közelben iskola, óvoda, boltok és egészségház is van. Cegléd autóval, vagy közvetlen buszjárattal 15 percre távolságra. A vásárlás finanszírozásában az OTP kedvező hitelkonstrukcióival tud segíteni, kedvezőbb kamatozású OTP Bank hitelhez juthat, ha az OTP Ingatlanpont kínálatából vásárol. Az adás-vétel lebonyolításához korrekt ügyvédi közreműködést tudunk ajánlani.
Referencia szám: M310942-ZE
Tulajdonságok
Családi ház
Felújítandó
Egyéb
1999
Nem adta meg a hirdető
Vedd fel a kapcsolatot a hirdetővel
+36 70 402 4
Hitelkalkulátor
Második évtől
55 903 Ft A 13. hónaptól
7,99%
Végig fix Futamidő: 20 év Banki visszahívás
Az OTP Bank munkatársai a neked megfelelő napszakban veszik fel veled a kapcsolatot. A becslés a hirdető által megadott adatokon alapul. A jelen tájékoztatás nem minősül ajánlattételnek és nem teljes körű, az egyes feltételek a hitelbírálat eredményétől függően változhatnak. Kérjük, a részletekről tájékozódj az OTP Bank fiókjaiban vagy az OTP Bank honlapján közzétett vonatkozó Üzletszabályzatokból és Hirdetményekből.
Vedd fel a kapcsolatot a hirdetővel
+36 70 402 4
Vedd fel a kapcsolatot a hirdetővel
+36 70 402 4
UI_KIT.CHARACTER_COUNTER__COMPONENT.REMAINING_SPACE__SR_ONLYUI_KIT.CHARACTER_COUNTER__COMPONENT.MAXIMUM_CHARACTER__SR_ONLY
Hasonló eladó ingatlanok Tápiószőlősön
Frissítve: 22 napja

15
13 M Ft 265 306 Ft/m²
Eladó családi ház, Tápiószőlős

Frissítve: 21 napja

20
12,99 M Ft 237 478 Ft/m²
Eladó családi ház, Tápiószőlős

Frissítve: 27 napja

20
12,99 M Ft 240 556 Ft/m²
Eladó családi ház, Tápiószőlős


Fedezd fel a
hasonló házakat!Még további házak Pest megyében 12,99 M Ft körüli értékben
Tovább a hirdetésekhez Frissítve: 27 napja

20
12,99 M Ft 240 556 Ft/m²
Eladó családi ház, Tápiószőlős

Frissítve: 6 napja

8
14 M Ft 350 000 Ft/m²
Eladó családi ház, Albertirsa

Frissítve: 22 napja

12
13,9 M Ft 198 571 Ft/m²
Eladó családi ház, Jászkarajenő


Töltsd fel hirdetésed ingyenesen!
Egyszerű